
Casa Tarumã



Casa Tarumã, ubicada cerca de un pequeño lago que desemboca en el río Tarumã, en la ciudad de Manaos, fue diseñada basándose en varios principios de sustentabilidad pasiva para garantizar el confort térmico de sus usuarios: una implantación adecuada, aleros generosos, dimensionamiento de aberturas y su orientación para maximizar la ventilación cruzada, así como la preservación de los sistemas ecológicos locales.
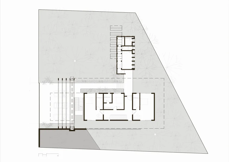
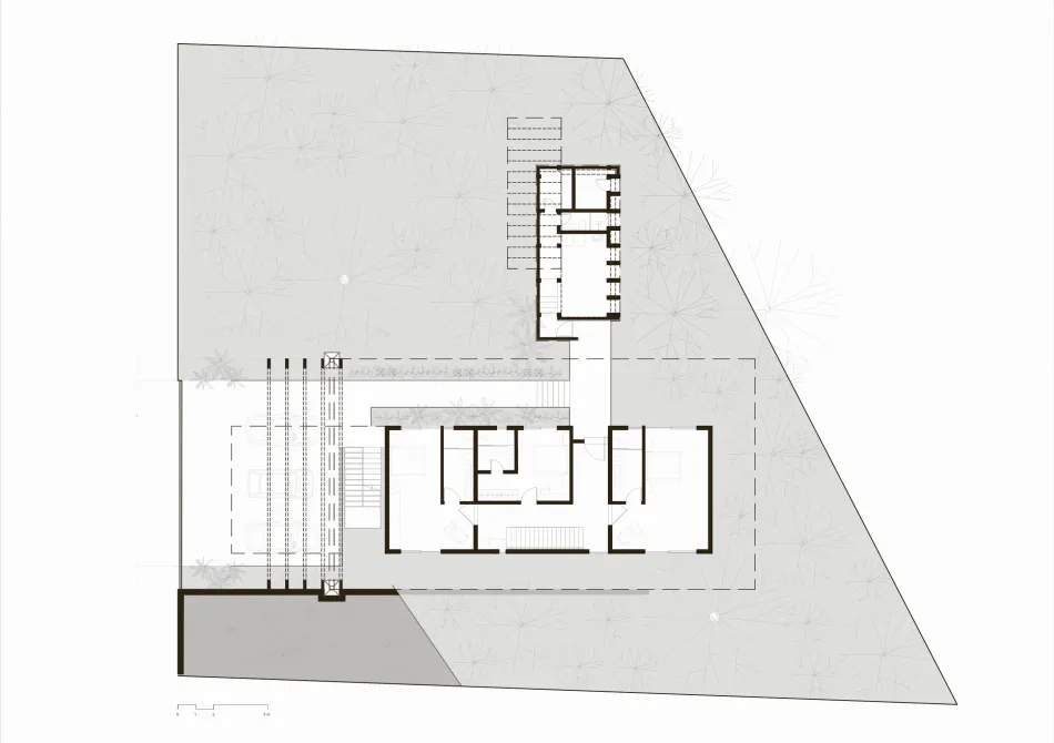
Con el fin de preservar gran parte del bosque y minimizar la deforestación, la principal estrategia arquitectónica fue la inserción del volumen principal en un corte inclinado del terreno, invirtiendo la tipología de vivienda clásica. En Casa Tarumã, las habitaciones están ubicadas en la planta baja y los espacios de vida internos, el espacio de vida al aire libre y la piscina están ubicados en el piso superior.





Para optimizar las relaciones entre los espacios externos e internos y para optimizar la exposición a los factores climáticos, la casa se dividió en dos volúmenes: uno alargado y otro en forma de mirador, accesible a través de pasillos estrechos. El volumen alargado alberga funciones que necesitan ser protegidas del sol y la lluvia, como la sala, el comedor y las suites, mientras que el volumen mirador alberga funciones que no necesitan ser protegidas del sol, como la bodega, las instalaciones de lavandería en el piso inferior y, la piscina y la plataforma de observación, en el piso superior.


Concebida como una estructura independiente del resto de la casa, la cubierta de acero corten del volumen principal tiene dos canales de agua con tiro de aire en la parte trasera, lo que permite la fructificación de los vientos y la creación de un colchón de aire entre la cubierta y los ambientes, protegiendo el confort térmico del volumen habitable de la planta superior de la vivienda. El techo recibió un parapeto invertido en el lado oeste para mayor protección del sol ecuatorial y privacidad de la casa. El ancho reducido del volumen principal se planeó para garantizar la ventilación cruzada en todos los ambientes. Con sus ventanas corredizas en dos lados, la sala de estar acristalada en el piso superior permite una integración total con la sala de estar cubierta, la piscina y la naturaleza.
Parafraseando a la Hoja de Ruta de Armando de Holanda, “se proponía una arquitectura sombría, abierta, continua, vigorosa, acogedora y cautivadora que, al ponernos en armonía con el entorno tropical, nos invita a vivirlo plenamente”.
Fotos: Joana França
PROYECTO
Laurent Troost
Equipo: Laurent Troost, Raquel Brasil dos Reis, Amanda Perreira, Fernanda Martins
INFORMACIÓN
Superficie construida: 403,73 m²
Proyecto: 2019-2020
Trabajo: 2019-2020


















EGGER presenta su Colección Decorativa 26+, un espacio para nuevas sensaciones.

Se inauguró la 20° edición de Estilo Pilar con su nueva propuesta Boutique





















