
Manifiestamente ecológica



Un árbol no se tala ahora con la misma liviandad que antes. Mucho más allá de los vaticinios apocalípticos sobre la salud del planeta, la rama mejor posicionada de la arquitectura actual tiende a articularse con la naturaleza más que a devastarla, a concretarse en ella de diversas formas; las más habituales: por mímesis o por método.
La cosmovisión de las sociedades primitivas y de la mayor parte de las civilizaciones no occidentales desde siempre integraron lo ético, lo moral y lo estético. Desde hace ya algunos años, podemos contar con el orgullo de habernos plegado a esa filosofía armónica. El resultado son casas como esta: la casa Manifesto.






Vale aclarar: como toda novedad, cuando los emprendimientos con cierta traza ecológica comenzaron a hacer furor en estas tierras, las casas eran caras y no del todo agraciadas. Hoy por hoy, podemos hablar de una revolución categórica en cuanto a estructuras y valores. Valores: el sistema modular (prefabricado) acorta los plazos de obra –la casa que usted ve fue construida en 90 días- y, por lo tanto, hay una sustancial disminución de los costos y del impacto ambiental. Estructuras: se enriquecen potencialmente y su estilo de impronta diferencial va cotizando dentro del conjunto en el que surge.
Para levantar esta casa, ubicada en la región metropolitana de Santiago de Chile, se han reutilizado tres contenedores marítimos. Un contenedor dividido en dos partes separadas funciona como soporte estructural de los dos contenedores de la primera planta. El espacio ganado por esta separación (la superficie de la casa alcanza los 160m² con tan sólo tres contenedores de 90 m.) luce paredes de vidrio que, más allá de permitir el aprovechamiento de la luz natural hasta su último fulgor y refrendar un sistema de ventilación ad honoren del clima, logran que la casa no se cierre; su límite no parece ser el parque ordenado que marca la amplia entrada, sino el horizonte. A su vez, el amplio portal formado por un sobretecho enmarcado en las vidriadas superficies, crea, por el simple recurso de hallarse levemente desplazado hacia un costado, dos áreas aterrazadas de usos múltiples entre los que no es difícil imaginar el simple disfrute de la contemplación.






No es estéril subrayar la estrecha vinculación entre lo estético y lo ecológico en esta construcción. Baste saber que la piel de la fachada – con toda la belleza y la fragilidad sólo aparente de una casita de fósforos pergeñada para una maqueta escolar - se compone de una a base de lamas de madera horizontales fijas (de bosque sostenible) y otra de pallets móviles que se pueden abrir de manera individual para controlar la radiación solar. Una cámara de aire entre esta piel y el contenedor se asocia con este sistema para que, en verano, la casa se vista y extienda su piel para protegerse del sol creando un efecto de refrigeración natural; en invierno, en cambio, la casa será desvestida para permitir la incidencia del sol, ya sea sobre la chapa del contenedor o sobre los ventanales, obteniendo calefacción también natural y en ambos casos pasiva.
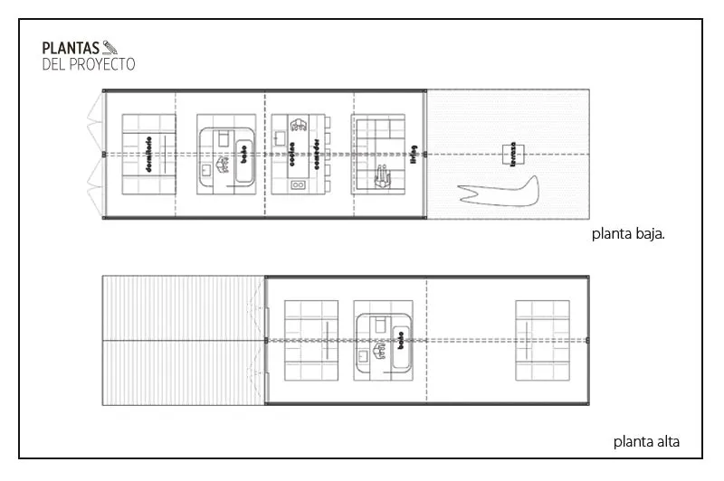
Manifesto consta de un área social con salón-comedor, cocina, habitación, baño y expansiones en planta baja; suite, estar, dos habitaciones con baño compartido y terrazas en segunda planta.
El blanco de paredes y cielorrasos que otorga amplitud y luminosidad a las estancias, es en realidad un revestimiento de paneles ecológicos de yeso aplicado sobre un aislamiento de celulosa reciclada colocado sobre el interior de la chapa del contenedor (con esto sumado a los paneles solares, la casa logra un 70 % de autonomía energética). De aspecto modernísimo, este revestimiento se conjuga con los muebles de estilo sixtie del área social y los detalles en colores fuertes (sillas del comedor, alfombras, un sillón) para aportar un interesante contraste con el aspecto rústico de la fachada, responsable este último de la integración de la casa al entorno.
La suite se inclina ya hacia lo pop con el cuadriculado en blanco y negro de su baño integrado, en el que se destaca el estilo Luis XV del espejo y la grifería.
En general, toda la decoración de la casa es a la vez moderna y cálida, y se ha conseguido mediante el reciclaje y la reutilización de materiales de lo más diversos.
Así, podemos aseverar sin temor a equivocarnos, que hasta el último pormenor de Manifesto, es manifiestamente ecológico.•
Texto: Ma. Soledad Franco
Foto: Antonio Corcuera
[ INFORMACIÓN ]
Tipo de proyecto: Casa unifamiliar
Ubicación: Curacaví, Región Metropolitana de Santiago, Chile.
Superficie construida: 160 m²
Año de construcción: 2009
[ PROYECTO ]
Infiniski Manifesto House
Arquitecto: James & Mau
www.jamesandmau.com
Constructor: Infiniski - www.infiniski.com
Decoración/muebles: Cómodo Studio




























EGGER presenta su Colección Decorativa 26+, un espacio para nuevas sensaciones.

Se inauguró la 20° edición de Estilo Pilar con su nueva propuesta Boutique















