
La casa de tus sueños



Para ser más específicos, más que una casa, la construcción (407 metros cubiertos) ideada por Nicolás Bruno responde al estilo de lo que acostumbramos a llamar chalet. El chalet, desde su origen Suizo hasta la actualidad, ha mostrado su capacidad plástica adaptándose a países, épocas y gustos, y pese a las notables diferencias que pueden existir entre un chalet estilo francés y uno inglés, por ejemplo, cualquiera puede reconocerlos por sus techos en pendiente, en general de tejas, y sus aleros.
El chalet suele ser la casa con la que se sueña, lo cual se demuestra porque es la primera que los chicos dibujan.
En Argentina, el chalet estilo californiano fue el favorito de la clase media y alta hacia 1930 y es por eso que, con sus ajustes, domina en nuestra costa atlántica extendiéndose en barrios urbanos residenciales y en ambientes rurales.






En este caso, la fachada de ladrillos a la vista, con sus chimeneas y los empinados techos de tejas francesas negras esmaltadas, las aberturas revestidas en blanco y las puertas de madera, aluden, sin embargo, al estilo inglés, mientras que los detalles de revestimientos en piedra listón natural (que se pueden encontrar tanto en el exterior como en el interior de la casa) le dan un toque personal y abiertamente moderno.
Por otra parte, de la misma forma en que en su versión original el chalet es una vivienda perfectamente adaptada al clima, al relieve y a la sociedad en la que surge, la obra de Nicolás Bruno responde principalmente a una búsqueda espacial íntimamente relacionada con el entorno. Por eso, además de hallarse en perfecta sintonía con la exquisita urbanización de Pinamar, se determinó su orientación para que se aprovechara lo mejor del lote y, las vistas al vecino campo de golf, primaron en el diseño y localización de los espacios.
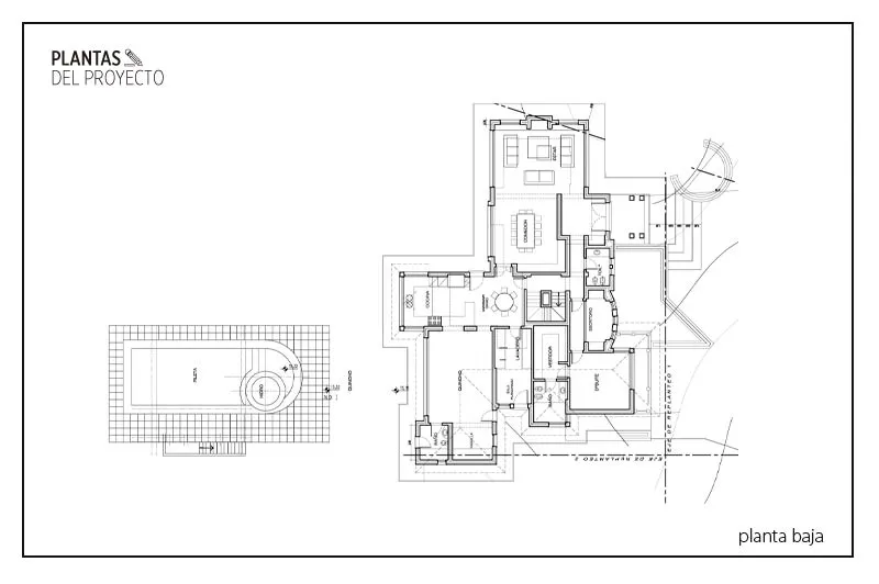
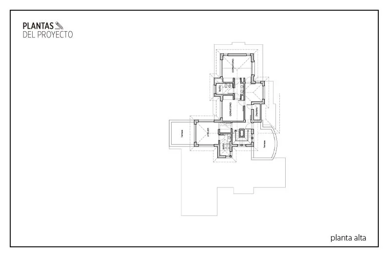
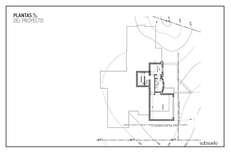
La vivienda se desarrolla en tres niveles. El primero es subterráneo y comprende un amplio garaje, habitaciones de servicio y un depósito; en la planta baja se extienden la cocina y el comedor diario, un quincho realmente imponente con parrilla y baño, el comedor principal y el estar, la suite principal, un escritorio y un lavadero y, por supuesto, la pileta; por último, en la planta alta, encontramos dos dormitorios en suite y un atelier con terraza (concretización del sueño de la dueña, que es artista plástica).






La cocina y el comedor diario forman un único y espacioso ambiente indiviso en el que prima la madera. En el área destinada a preparar los alimentos, el mobiliario se ha confeccionado a medida en cedro. Por lo demás, las mesadas son de granito y la calidez del cedro sólo es interrumpida por los electrodomésticos de acero inoxidable. También el juego de mesas y sillas es de madera, al igual que en el comedor principal que, por su parte, compone una sola área con el estar.
En el estar, el hogar revestido en piedra se erige en protagonista de la escena. Alrededor de él se distribuyen cómodos sillones de líneas clásicas. La paleta del blanco domina en ellos, en los pisos de porcelanato y en las cortinas que adornan los considerables ventanales. Para no interrumpir las vistas al campo, la iluminación artificial se resolvió con spots. Toda la decoración está complementada por carpinterías a medida, mesas, aparadores y otros detalles, todo en madera de la mejor.
El quincho es un recinto privilegiado, no sólo por su tamaño, sino porque su aire decididamente rústico empalma a las mil maravillas con su función: allí se hace el asado para toda la familia y los amigos. La rueda de carro a modo de lámpara es un hallazgo que rememora la que pendía de los antiguos cascos de estancia. Los techos, la barra que enmarca la parrilla, la mesa y las sillas son, de nuevo, de madera. Devolviéndonos a nuestro siglo, por las puertas ventanas de cristal, se cuela la moderna pileta y el verde césped bien cuidado.
Enlaza con el nivel superior una escalera revestida en porcelanato con listones y baranda de madera. Allí se encuentran las habitaciones en suite que, al igual que la suite principal de la planta baja, desprenden un aire tranquilo de lujosa austeridad sin ostentar el confort supremo que sus comodidades prodigarán a quienes duerman en ellas. Los baños vuelven a la madera y a los revestimientos cerámicos con guardas.
Hasta el último detalle de la casa parece soñado.•
Paisajismo: Ivana Gervasio
Para que el azul y el rojo sean los colores protagonistas, se colocaron agapanthus para que sus flores escaparan afuera del cantero, lavandas stoechas “Papilon” y festucas glauca en el hueco que enmarca parte del frente de la casa, dándole terminación a las ventanas con piedras blancas. En la parte superior del cantero las nandinas firepower, dando un rojo fuego en el otoño, los cotoneaster rastreros con sus bolillitas rojas en invierno y nuevamente las lavandas que continúan en todo el diseño. Teniendo en cuenta qué plantas funcionan bien en la zona marítima, en los laterales linderos la Photinia fraseri da el límite, y en el frente, jazmines amarillos para continuar el color que dan las acacias marítimas que ya estaban en el lugar.•
Fotos: Diego Medina | www.dcfotografia.com.ar
Texto: María Soledad Franco
[ INFORMACIÓN ]
Tipo de proyecto: Vivienda unifamiliar
Ubicación: Pinamar
Superficie terreno: 1500 m²
Superficie construida: 407 m²
Año de construcción: 2010/2011
[ Proyecto ]
Arq. Nicolás Bruno
Av. Constitución 489. Ed. Farallón. L2.PB. Pinamar.
Tel/fax: (02254) 483571/493512
www.nicolasbrunoarq.com.ar
[email protected]
























EGGER presenta su Colección Decorativa 26+, un espacio para nuevas sensaciones.

Se inauguró la 20° edición de Estilo Pilar con su nueva propuesta Boutique

















































