
Entre el bosque y el lago, una casa-puente que une generaciones, naturaleza y vida social.
**una vivienda del estudio palmero vucovich que emege entre la vegetaciónnatural de un country de la zona norte de córdoba, argentina.
Casas19 de octubre de 2021 Espacio&Confort



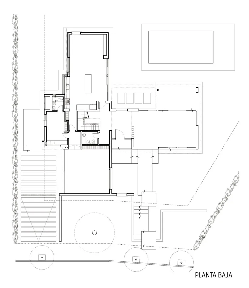
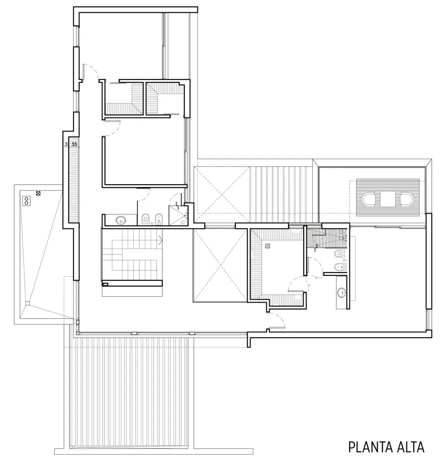
Con un retirado e introvertido frente, la obra ofrece un recorrido entre el verde hasta llegar al ingreso principal.
Opuestamente, sus contrafrentes se abren con grandes ventanales hacia el gran jardín del lote, permitiendo que todos los ambientes reciban mucha iluminación, ventilación y se perciba una agradable conexión interior-exterior con la naturaleza circundante.




































Fotos: Sergio Panigo
PROYECTO
Palmero Vucovich
www.palmerovucovich.com/
Fan Page Facebook: @PalmeroVucovich
Perfil Instagram: @palmerovucovich
Arquitectos a Cargo: Marcelo Palmero, Ángel Vucovich
Equipo de Diseño: Marcelo Palmero, Ángel Vucovich
INFORMACIÓN
Ubicación: Country El Bosque, Córdoba
Año finalización construcción: 2013
Superficie construida: 500 m2













Entre el bosque y el lago, una casa-puente que une generaciones, naturaleza y vida social.

Una vivienda de Fran Silvestre Arquitectos que convierte la sombra en refugio y la luz en paisaje.

La casa diseñada por MORA HUGHES arquitectos en Mendoza combina estética nórdica, la calidez de la madera y la música que marca el pulso de cada encuentro.

Estuvimos con la Arq Carolina Esnaola recorriendo una obra que realizó en el Quimilar. Un patio interno que divide el ambiente principal y llena de luz la casa.







Invertir en infraestructura es clave para la productividad, la equidad social y el crecimiento del país. Extracto de la entrevista a Martín Russo, de LFR Constructora.

Distribuidora Galuss, firma especializada en soluciones lumínicas para proyectos profesionales, anuncia la incorporación de dos marcas icónicas del diseño internacional: Luceplan y Artemide.

Tendencias, tecnologías e Innovación en Real Estate y Arquitectura. Jornada de capacitación para desarrollador, inmobiliarios y arquitectos.

El mercado inmobiliario argentino comienza a dar señales nítidas de reactivación tras años de volatilidad. La nueva fase se explica por la convergencia de cuatro vectores macroeconómicos: baja de tasas, dólar estable, riesgo país en descenso y financiamiento más accesible para el sector público y las empresas. Este “combo” no sólo mejora las expectativas: abarata el costo del capital, sanea balances y vuelve a poner en marcha la inversión privada.

En noviembre, la celebración del diseño continuó con la apertura de la tradicional muestra de arquitectura y diseño en sus ediciones Casa FOA Uruguay, Carrasco Boating y Casa FOA Chile, edición Zoco.










