
Entre el bosque y el lago, una casa-puente que une generaciones, naturaleza y vida social.
**brooklyn, estados unidos. mesh architectures diseñó la restauración de unacasa unifamiliar llena de detalles del siglo xix, rescatando su carpinteríaantigua, al tiempo que llevó la casa a los estándares de una casa pasiva.
Casas28 de diciembre de 2021 Espacio&Confort



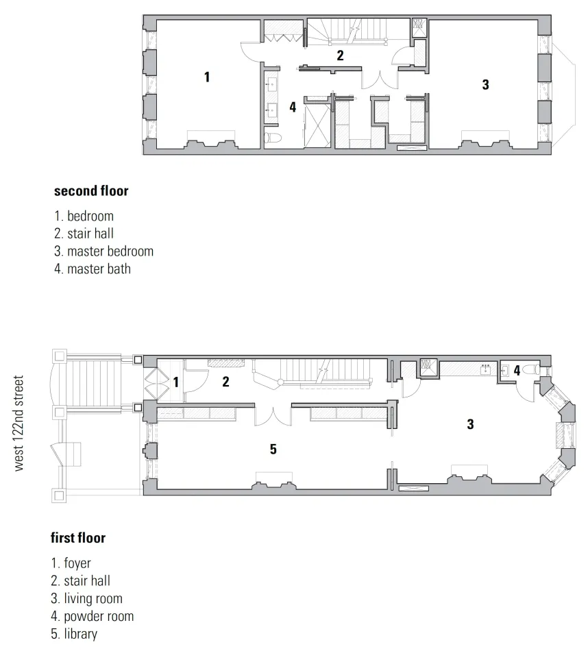
Esta casa, en medio del histórico Harlem, se había convertido en una vivienda dividida para tres familias. Los propietarios, un profesor universitario y consultor corporativo con cuatro hijos, deseaban restaurarla a una vivienda unifamiliar, mientras reparaban la extensa carpintería original alrededor de las ventanas, puertas, escaleras y chimeneas. Al mismo tiempo, querían introducir elementos modernos de transición cuando fuera apropiado. Después de conocer el estándar de la casa pasiva que reduce drásticamente el uso de energía a través del aislamiento, el sellado de aire y la calefacción y refrigeración eficientes, al tiempo que proporciona aire fresco constante, también se convirtió en parte del programa.






















Entre el bosque y el lago, una casa-puente que une generaciones, naturaleza y vida social.

Una vivienda de Fran Silvestre Arquitectos que convierte la sombra en refugio y la luz en paisaje.

La casa diseñada por MORA HUGHES arquitectos en Mendoza combina estética nórdica, la calidez de la madera y la música que marca el pulso de cada encuentro.

Estuvimos con la Arq Carolina Esnaola recorriendo una obra que realizó en el Quimilar. Un patio interno que divide el ambiente principal y llena de luz la casa.







Un recubrimiento acrílico antideslizante, versátil y resistente, pensado para prevenir accidentes.

Invertir en infraestructura es clave para la productividad, la equidad social y el crecimiento del país. Extracto de la entrevista a Martín Russo, de LFR Constructora.

Distribuidora Galuss, firma especializada en soluciones lumínicas para proyectos profesionales, anuncia la incorporación de dos marcas icónicas del diseño internacional: Luceplan y Artemide.

Tendencias, tecnologías e Innovación en Real Estate y Arquitectura. Jornada de capacitación para desarrollador, inmobiliarios y arquitectos.

El mercado inmobiliario argentino comienza a dar señales nítidas de reactivación tras años de volatilidad. La nueva fase se explica por la convergencia de cuatro vectores macroeconómicos: baja de tasas, dólar estable, riesgo país en descenso y financiamiento más accesible para el sector público y las empresas. Este “combo” no sólo mejora las expectativas: abarata el costo del capital, sanea balances y vuelve a poner en marcha la inversión privada.










