
Entre el bosque y el lago, una casa-puente que une generaciones, naturaleza y vida social.
City Bell. Aquí te mostramos una formidable obra de la Arq. Mercedes Klappenbach que ya fue parte de nuestro programa de tv.
Casas28 de enero de 2023 Espacio&Confort



El primer condicionante que tuvo este proyecto fue el factor tiempo. La casa, que tiene unos 300 m², había que hacerla rápido, en más o menos en 8 o 10 meses. A partir de esto se pensó hacer la casa con perfiles, con una tecnología mixta de obra en seco con obra húmeda. Los perfiles se utilizaron como estructura y las paredes se construyeron de mampostería tradicional. De esta manera se pudo llegar a los tiempos requeridos por sus futuros moradores.










El segundo punto a resolver fue la implantación de la vivienda en el terreno ya que si bien contaba con la mejor orientación, hacia esta, una cortina de eucaliptos existente en el perímetro del barrio le generaba sombra. Entonces se realizó un minucioso estudio mediante maquetas para ver como proyectaba el sol a distintas horas en distintas momentos del año.
A partir del resultado de esto se decidió volcar toda la volumetría de la obra en paralelo a la línea de árboles y que la casa se abra hacia el otro lado del lote. Al llegar por la calle, un gran plano de travertino nos recibe marcándonos el ingreso. Este muro, también sirve de resguardo de las miradas curiosas otorgándole la privacidad necesaria tanto a los ambientes como a la pileta y el jardín que de otra manera quedarían expuestos.




















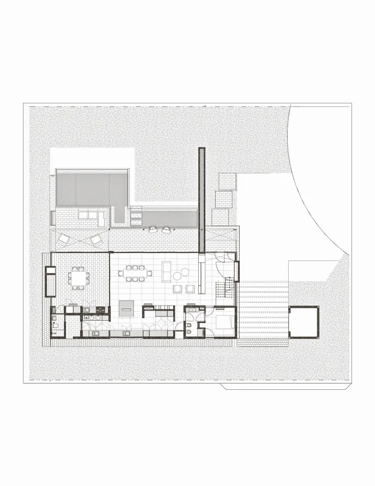
Luego de atravesar un camino aterrazado junto a un bello cantero, al ingresar nos recibe un hall con una pequeña doble altura en la que la escalera y el entrepiso de perfiles y vidrio de gran diseño, se lleva todas las miradas.
La distribución de los espacios es la tradicional. La planta baja contiene la parte pública. Luego del ingreso, tras pasar un mueble de doble cara que nos esconde el resto de la casa, nos encontramos con el gran living – comedor. Un espacio totalmente vidriado y abierto hacia el parque y la pileta que expande hacia una galería semicubierta. Junto al comedor y en directa relación con la cocina, una galería con parrilla y cerramiento vidriado es el lugar ideal para grandes reuniones.
Un volumen forrado en madera oscura arma la separación entre lo privado y lo público en esta planta y se repite en la planta alta, separando las habitaciones de los servicios. Este contiene una habitación de servicio, dos baños, la cocina, el lavadero y un lugar de tendido de ropa.
La cocina está integrada al comedor mediante una isla – desayunador pero también cuenta con un espacio más privado que puede servir para cocinar o elaborar ricas recetas evitando la mirada de los invitados.







En la planta alta encontramos la parte privada. Sobre el contrafrente están todos los servicios: 2 baños y el gran vestidor del dormitorio principal y completan este nivel los tres dormitorios, uno en suite.
En cuanto a la materialidad y la paleta de colores utilizada en el exterior predomina el negro, dado tanto por el revestimiento elegido para sus muros como por los perfiles y las aberturas de PVC y el toque de distinto y distinguido lo da el muro de travertino: un material muy utilizado por el estudio en todas sus obras que dan una terminación perfecta a cualquier espacio.
En los interiores, finamente decorados por las diseñadoras Victoria Maiztegui y Aleja Canamasas se siguió trabajando con los mismos tonos que en el exterior, predominando el negro y el blanco de la cielorrasos y para darle algo de calidez se armaron cielorrasos envarillados de madera. Blanco, negro, travertino y madera se repiten en casi todos los espaciosos y confortables ambientes de una casa única, formidable.
Fotos: Lean Arlo y Heber Guruciaga
PROYECTO
Arq. Mercedes Klappenbach
www.mercedesklappenbach.com
Ig: @mercedesklappenbach
INTERIORISMO
DI. Victoria Maiztegui - 221 621 8532
DI. Aleja Canamasas - 221 595 1555
Ig: @victoriamaiztegui | @alejandra.canamasas

















Entre el bosque y el lago, una casa-puente que une generaciones, naturaleza y vida social.

Una vivienda de Fran Silvestre Arquitectos que convierte la sombra en refugio y la luz en paisaje.

La casa diseñada por MORA HUGHES arquitectos en Mendoza combina estética nórdica, la calidez de la madera y la música que marca el pulso de cada encuentro.

Estuvimos con la Arq Carolina Esnaola recorriendo una obra que realizó en el Quimilar. Un patio interno que divide el ambiente principal y llena de luz la casa.







Un recubrimiento acrílico antideslizante, versátil y resistente, pensado para prevenir accidentes.

Invertir en infraestructura es clave para la productividad, la equidad social y el crecimiento del país. Extracto de la entrevista a Martín Russo, de LFR Constructora.

Distribuidora Galuss, firma especializada en soluciones lumínicas para proyectos profesionales, anuncia la incorporación de dos marcas icónicas del diseño internacional: Luceplan y Artemide.

Tendencias, tecnologías e Innovación en Real Estate y Arquitectura. Jornada de capacitación para desarrollador, inmobiliarios y arquitectos.

El mercado inmobiliario argentino comienza a dar señales nítidas de reactivación tras años de volatilidad. La nueva fase se explica por la convergencia de cuatro vectores macroeconómicos: baja de tasas, dólar estable, riesgo país en descenso y financiamiento más accesible para el sector público y las empresas. Este “combo” no sólo mejora las expectativas: abarata el costo del capital, sanea balances y vuelve a poner en marcha la inversión privada.










