
Robustez y transparencia



En el Barrio Privado Fincas de Hudson, el encargo de una vivienda unifamiliar permanente incluía como premisa grandes espacios de planta libre y ambientes con una marcada permeabilidad visual que propicien las vistas largas jugando un poco con la idea de límite difuso entre interior-exterior.
El terreno situado en un cul-de-sac presentaba el desafío de optimizar al máximo los indicadores reglamentarios del barrio para poder generar el programa del encargo, una vivienda de espacios confortables que permitiera generar eventos, reuniones y festejos con amigos y familia; así como también dar contención y espacio para las actividades individuales de cada habitante de la casa.
La orientación noreste-sudoeste del lote se aprovechó para generarle ventilaciones cruzadas a los ambientes y también permitir que los mismos capten la luz solar en las caras mejor orientadas y, concibiendo más ciega y con menos superficies vidriadas la cara sur, siendo ésta la más desfavorable en términos climátic



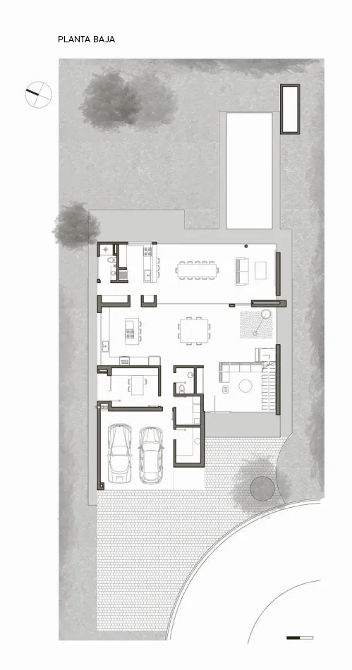
En la planta baja tenemos el corazón social de la casa. Atravesando la puerta de acceso, nos encontramos con este, un estar de recepción seguido de un amplio espacio que contiene la cocina-comedor. Hacia el contrafrente unas puertas-ventanas vidriadas corredizas nos vinculan con un ambiente de idénticas dimensiones que conforma la galería, ésta repite un vidriado de apertura casi total que permite en verano un ambiente abierto hacia el verde y la piscina.



En planta alta tenemos el sector privado de la vivienda, al que llegamos a través de una circulación central que nos lleva a los dormitorios en los laterales y al gimnasio en el remate del recorrido. En el ala derecha se encuentra un dormitorio en suite con baño y vestidor y, en el ala izquierda, la suite principal que cuenta con dos vestidores individuales y baño compartimentado. Los dos dormitorios están orientados al este para captar el sol de la mañana y ambos cuentan con salida a la terraza.
En cuanto al equipamiento técnico la casa cuenta con sistema de climatización VRV Inverter, losa radiante, generador de electricidad a gas de corte automático, riego por aspersión, ablandador de agua, sistema de agua sanitaria presurizada, mampostería doble muro con rotura de puente térmico y carpinterías de alta prestación con DVH.
Fotos: Hernán Dominguez
PROYECTO
Arq. Leonardo Vega
Cál. de estructuras: Ing. Marcelo Gómez
Constructora: MK Obras
www.mkobras.com
INFORMACIÓN
Barrio Privado Fincas de Hudson
Superficie: 415 m²
Año 2021


















EGGER presenta su Colección Decorativa 26+, un espacio para nuevas sensaciones.

Se inauguró la 20° edición de Estilo Pilar con su nueva propuesta Boutique

























