
Chapeau



El estilo francés es conocido en nuestro país. Lo podemos ver en todo su esplendor en gran parte de los edificios públicos levantados en Buenos Aires y en la ciudad de La Plata por la elite dirigente hacia 1880, y en las casas que esa misma elite construyó para sí como marca de distinción. Poco a poco una clase media incipiente lo haría suyo y, para el extranjero, se volvería una característica tan propia de la capital de la república como el tango. El estilo clásico francés se dio en la Argentina no como una mera adaptación, sino con características propias, ya que la llamada piedra París, uno de sus materiales insoslayables, no existía aquí, y fueron los inmigrantes italianos que trabajaban en la construcción quienes pergeñaron la mezcla que sirvió como símil.






La casa que hoy nos ocupa exhibe desde su fachada todos los rasgos propios de este estilo: muros almohadillados de aspecto bien macizo con acabado de piedra París, notables y vistosas molduras, los infaltables techos de fuertes pendientes con pizarras formando mansardas, con remates y chimeneas, y aberturas que emulan las simetrías versallescas en sus formas y al hierro en tanto material.
La fachada destila sobriedad y elegancia por sobre cualquier otra característica, y a esto contribuye el enorme jardín (la superficie del lote es aproximadamente de 834 m² y la superficie cubierta de 275 m²) también de aires europeos, que se extiende por delante y por detrás hasta dar la impresión de ser una continuación del campo de golf (de uso común del country) con el que limita. Por supuesto los tiempos han cambiado y el jardín de invierno en el que solían culminar las casas de este estilo ha sido suplantado por una maravillosa piscina.
En lo que respecta al interior, también es tributario de una morfología clásica y está organizado de acuerdo a funciones bien diferenciadas, pero los responsables del proyecto se arriesgaron con una ambientación moderna y pusieron en escena los últimos adelantos técnicos que la arquitectura es capaz de brindar en aras del confort de los moradores de la casa. El resultado, sin embargo, es del todo armonioso. Veamos cómo se llegó a él.






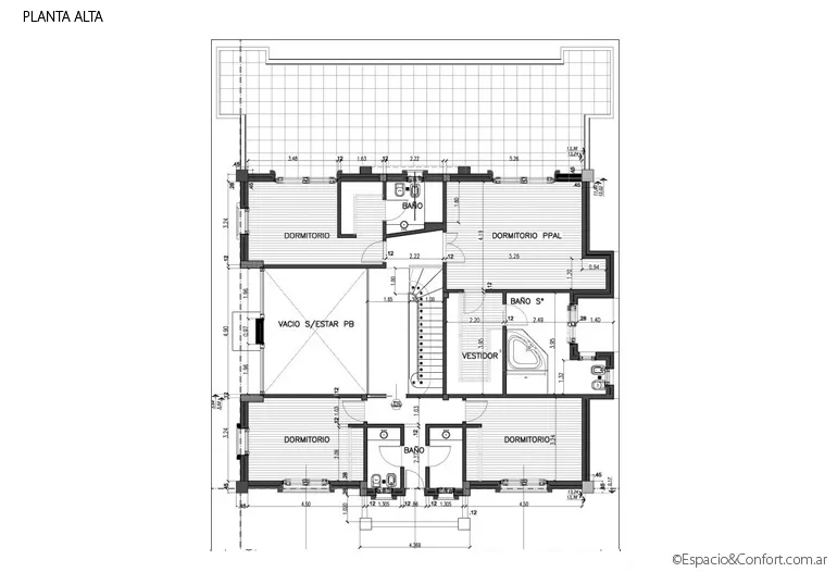
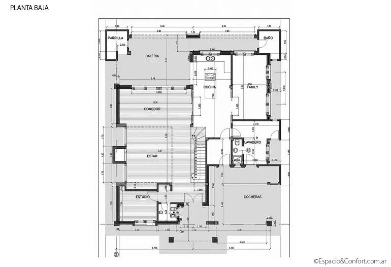
En la P.B. se han desplegado los espacios sociales, que a través de amplias aberturas pueden oficiar como componentes de lo cotidiano o aislarse de ellos. Así, atravesando la trabajada puerta de hierro que señorea la entrada principal, se ingresa directamente en un estar de doble altura con comedor integrado de dimensiones colosales que se conecta con una cocina (también con comedor integrado además de lavadero) de cuyas dimensiones puede decirse lo mismo. Completan las dependencias de esta planta los baños, un garaje para dos autos, la gran galería (que ha sido tratada como un ambiente más, configurando un área semicubierta transicional entre interior y exterior), la piscina, el solárium y el mentado parque. Una escalera de mármol, cuyo lugar protagónico en el estar es innegable y se halla recalcada gracias al hecho de apoyarse sobre la única pared de piedras de la estancia, conduce al primer nivel. Allí se disponen los ambientes íntimos: una master suite con vestidor y amplia terraza balcón, una suite secundaria y dos semi suites. El segundo nivel es un enorme playroom, un espacio de uso social, que incluye home theather, pool, bar y estar.
Hasta aquí la disposición clásica. Para llevarla a lo moderno se han escogido, entre otros recursos, los contrastes tonales y los materiales de última generación. Por ejemplo, los pisos de porcelanato de la P.B. en tonos claros, van a contrastar con los muebles. Este efecto se produce en la cocina con las sillas negras, pero sobre todo, con la vistosa isla rojo rubí ubicada en el centro. En el comedor principal el efecto se repite con los sillones de cuero también negro y de líneas netas, aunque el plato fuerte sea quizá el juego de mesas y sillas que, al igual que la lámpara que pende sobre ellos, citan, sin dejar de ser modernísimos, la típica araña y el mobiliario de los salones parisinos. Del mismo modo, la nobleza del mármol de la escalera se equilibra con acrílico y metal. Los pisos en la planta superior son de madera al igual que algunos de los muebles. La luz de la casa y sus blancas paredes permiten optar otra vez por el negro para vestir los aposentos y las lámparas vuelven a dar ese innegable touche bien S XXI. Los baños, con su grifería de alta gama, ponen en evidencia por sí solos la incorporación sin sobresaltos de los últimos adelantos en materiales al legado de la École de Beaux Arts.En fin, en esta casa (a la que bien podríamos llamar palacete) se logró combinar la elegancia y la distinción del estilo francés de antaño con la dinámica y el confort de la vida moderna.
Fotos: Leandro Arévalo
Texto: Ma. Soledad Franco
PROYECTO
Estudio Adler Muchnik
2 de mayo 2803- Lanús Oeste
4225-0968 / 4241-2665
A. Moreau de Justo 740
Cel. (011) 15 6119-2091
(011) 15 6119-2090


























EGGER presenta su Colección Decorativa 26+, un espacio para nuevas sensaciones.

Se inauguró la 20° edición de Estilo Pilar con su nueva propuesta Boutique






































