
Entre el bosque y el lago, una casa-puente que une generaciones, naturaleza y vida social.
**" …enraizada en un predio entre dos arroyos, rodeada de vistas de magnabelleza que solo el paisaje andino puede ofrecer…" asi podria definirse, paracomenzar, esta residencia de vacaciones.
Casas07 de agosto de 2012 Espacio&Confort



Las miradas desde este hábitat soñado se posan en el Cerro Catedral, la Sierra Ventana, el campo de golf, un cañadón con arroyos y una exuberante vegetación autóctona. Una casa como auténtico mirador, que simula emerger del paisaje.
Su proyecto se singulariza no sólo porque la misma está orientada a los cuatro puntos cardinales del lugar sino, también, por su impactante diseño arquitectónico. Una solución calculada, que incluye detalles de diseño estético-formal de gran simpleza y creatividad.










Fotos: Laila Sartoni - cedidas por el estudio
Texto: Dis. de Interiores Ana Thorschmidt
[ INFORMACIÓN ]
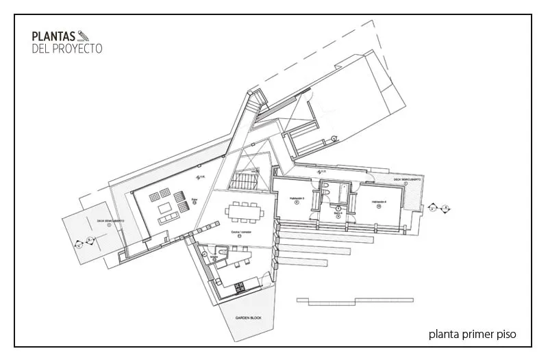
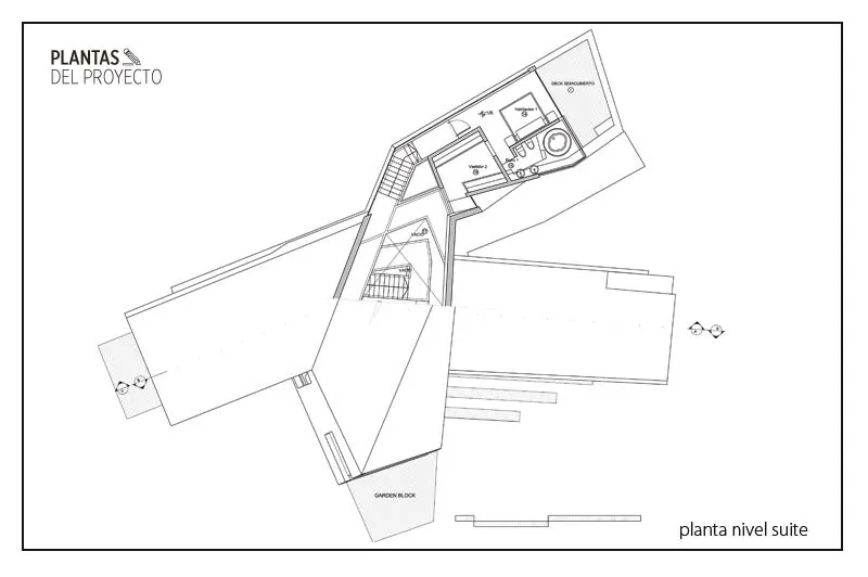
Tipo: Vivienda Unifamiliar.
Ubicación: San Carlos de Bariloche. Río Negro.
Patagonia Argentina.
Realización: 2008 - 2010
Superficie: 396 m²
[ PROYECTO ]
G2 Estudio
www.g2estudio.com.ar
Darío Gallego, Hugo Gallego, Ariel Capalbo
En Buenos Aires: Superi 1423 | 011.4552.1581
En Bariloche: Arelauquen G&CC | 0294.447.6245











Entre el bosque y el lago, una casa-puente que une generaciones, naturaleza y vida social.

Una vivienda de Fran Silvestre Arquitectos que convierte la sombra en refugio y la luz en paisaje.

La casa diseñada por MORA HUGHES arquitectos en Mendoza combina estética nórdica, la calidez de la madera y la música que marca el pulso de cada encuentro.

Estuvimos con la Arq Carolina Esnaola recorriendo una obra que realizó en el Quimilar. Un patio interno que divide el ambiente principal y llena de luz la casa.







Invertir en infraestructura es clave para la productividad, la equidad social y el crecimiento del país. Extracto de la entrevista a Martín Russo, de LFR Constructora.

Distribuidora Galuss, firma especializada en soluciones lumínicas para proyectos profesionales, anuncia la incorporación de dos marcas icónicas del diseño internacional: Luceplan y Artemide.

Tendencias, tecnologías e Innovación en Real Estate y Arquitectura. Jornada de capacitación para desarrollador, inmobiliarios y arquitectos.

El mercado inmobiliario argentino comienza a dar señales nítidas de reactivación tras años de volatilidad. La nueva fase se explica por la convergencia de cuatro vectores macroeconómicos: baja de tasas, dólar estable, riesgo país en descenso y financiamiento más accesible para el sector público y las empresas. Este “combo” no sólo mejora las expectativas: abarata el costo del capital, sanea balances y vuelve a poner en marcha la inversión privada.

En noviembre, la celebración del diseño continuó con la apertura de la tradicional muestra de arquitectura y diseño en sus ediciones Casa FOA Uruguay, Carrasco Boating y Casa FOA Chile, edición Zoco.










