
Aliada de su entorno



Interpretar las necesidades y demandas de los propietarios fue uno de los desafíos de los arquitectos a cargo del proyecto de esta vivienda: la idea fue construir una casa cálida, compacta, que rompa los esquemas constructivos de los proyectos más modernos y racionalistas.
Ante esta demanda, teniendo en cuenta un entorno colindante con la zona de Pereyra declarada por la UNESCO como reserva de la biosfera, se presenta al estudio un propietario que además, manifiesta el deseo de vivir en una casa que conviva sin problemas con este ambiente natural. Donde a veces, dependiendo de la temporada, el sol debe penetrar a través de las hojas de los árboles y en otras, las mismas hojas que caen de ellos inundan toda la superficie de colores cobres, ocres y cenizas, incluso los techos, si es que éstos no pueden desprenderse rápidamente de ellas.





En este sentido, una de las premisas del estudio Santos + Marrero fue la necesidad de trabajar con techos de buena pendiente. “Rápidamente decidimos sumar los libres escurrimientos y la casa ya estaba más amiga de su entorno natural”, explican desde el estudio. Como material para el techo, se eligió chapa a la vista.
La madera natural y la piedra fueron otros de los materiales seleccionados que, junto a los amplios ventanales de vidrio y Profilit que dan al parque, otorgan calidez y luminosidad a los espacios.
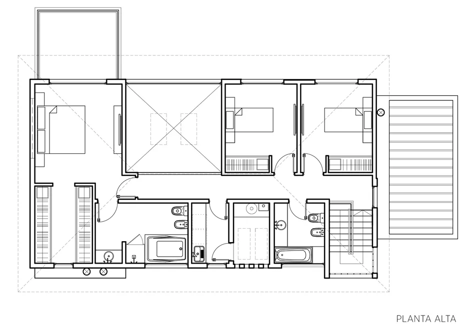
En cuanto a la distribución de los ambientes, se optó por una disposición tradicional donde lo público corresponde a la planta baja, y los espacios privados a la planta alta.
El planteo de la casa en cuanto a su dinámica espacio-funcional es muy simple: una única relación entre los ambientes sociales de planta baja, que se vinculan visualmente; estar, comedor, cocina, quincho, piscina, obligando a una segunda mirada para poder descubrir qué es afuera y qué es adentro.





Una escalera de madera conecta la planta baja con los ambientes más privados, en un doble nivel que se nutre también de luz natural cenital. Por su parte, los dormitorios en planta alta no pierden la relación con el medio, y suman el cambio de perspectiva modificada que habilita la altura. Allí se disponen tres habitaciones muy luminosas (una de ellas en suite y con vestidor).
Se trata de una casa que no desperdicia sus metros cuadrados, que es sutil en sus dimensiones, y que se aprovecha de la ausencia de límites físicos y visuales; que logra controlar la luz gracias a una coherente implantación respecto de su orientación y decisión de la ubicación de sus usos. Colaboran también en este control de luz y temperatura la vegetación que rodea la vivienda, como excelente regulador natural y además, rompiendo la monotonía visual con las distintas estaciones. Así,se logró un proyecto que resguarda la intimidad desde la calle para abrirse en relación a su dominio más cuidado.





Una casa que, fiel a la filosofía y a las premisas constructivas del estudio, más allá de cualquier estilo elegido, se materializa con elementos de naturaleza noble y amigable con el uso en familia y el disfrute con amigos, que invita a compartir reuniones en cada uno de sus espacios y que es, además, aliada de su entorno.
Foto: Leandro Arévalo
[ INFORMACIÓN ]
Ubicación: Fincas de Hudson, Berazategui
Año: 2015 - Superficie del terreno: 455,35 m²
Superficie construida: 253 m²
[ PROYECTO ]
Estudio Santos+Marrero & Asociados
Arq. Gustavo Santos / Arq. Javier Marrero / Arq. Cintia Giménez
Dirección: Gustavo Santos, Javier Marrero
Colaboradores: Arq. Andrea Manteiga / Ariel Pariente / Fernando Gadaleta
www.santosmarrero.com.ar




























EGGER presenta su Colección Decorativa 26+, un espacio para nuevas sensaciones.

Se inauguró la 20° edición de Estilo Pilar con su nueva propuesta Boutique





















