
Rompiendo esquemas



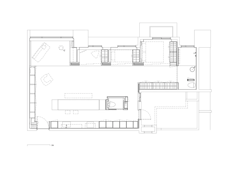
Esta casa de 90 m² rompe con los esquemas convencionales al presentar una distribución abierta, con armarios ocultos y una franja de ventanas sobre las que se arman los dormitorios. En el corazón de esta vivienda se encuentra una mesada de 3,5 metros, una verdadera ancla multifuncional que sirve como mesa para diversas actividades.
Los espacios junto a las ventanas, bañadas por una constante luz del norte durante el día, se transforman en íntimos dormitorios cuando se cierran por la noche. El diseño del espacio sanitario y sus componentes juega con volúmenes geométricos y composiciones visuales enmarcadas. La mesada y los muebles, con su apariencia abstracta, evocan la presencia de losas de piedra, bloques de madera y arcilla, tratados como auténticas obras de arte escultóricas dentro del ambiente.











Dentro de esta casa, no existe una división espacial definida. Esto permite a los habitantes dar rienda suelta a su imaginación y adaptar los espacios según sus necesidades. Los propietarios, una joven pareja con un niño pequeño y un recién nacido, deseaban un hogar libre de las restricciones de lo convencional y definir su propio estilo de vida.
"En esta etapa de nuestras vidas, queríamos simplificar los espacios dedicados al descanso, la comida y la higiene a lo esencial", comentan los dueños. "Anhelábamos tener más espacio para que nuestros hijos pudieran correr libremente y disfrutar de una gran mesa donde todos pudiéramos reunirnos y compartir tiempo juntos. Siempre tuvimos en mente vivir en una suerte de galería moderna, un apartamento sencillo, tranquilo y lleno de luz, donde los espacios se adaptaran a nuestra imaginación y los llenáramos de vida para los años venideros".
Esta casa atípica y su singular enfoque de la vida urbana te invitan a explorar nuevas formas de vivir, donde la libertad y la imaginación encuentran su hogar en cada rincón.
Fotos: Kyle Yu Fotografía
PROYECTO
Marty Chou Arquitectura
www.martychou.com
INFORMACIÓN
Ubicación: Taipéi, Taiwán
Finalización: 20201
















EGGER presenta su Colección Decorativa 26+, un espacio para nuevas sensaciones.

Se inauguró la 20° edición de Estilo Pilar con su nueva propuesta Boutique

















