
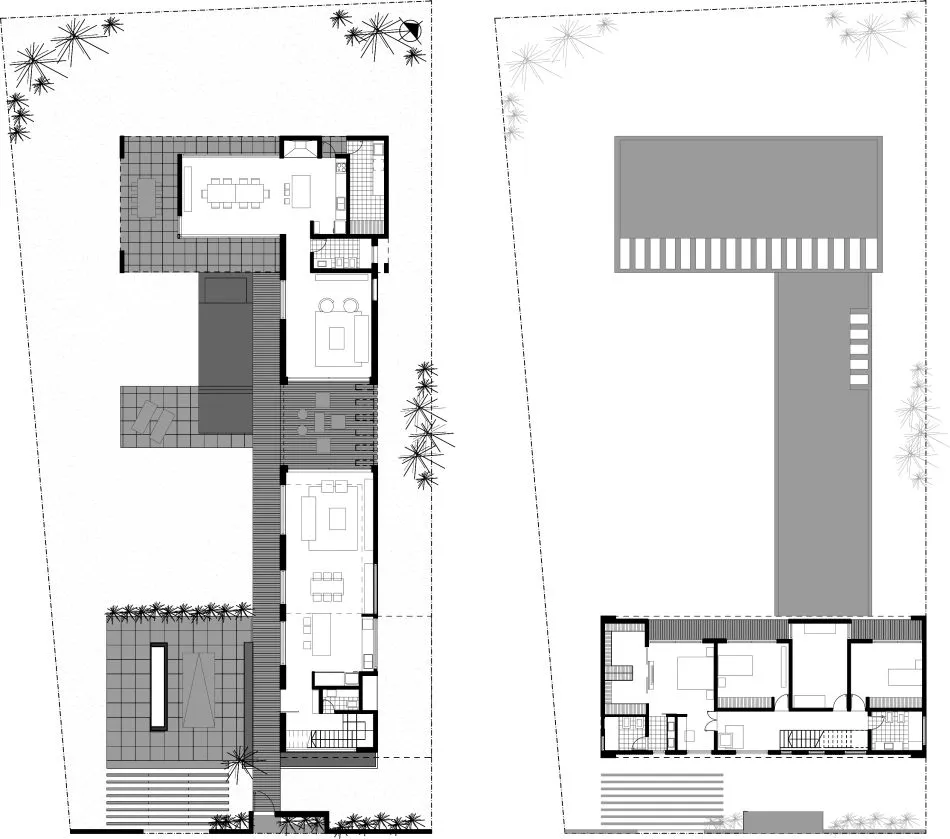
Entre el bosque y el lago, una casa-puente que une generaciones, naturaleza y vida social.




Obra de los arquitectos Lucía Cicchino y Quique Martínez para el estudio QMLC, esta residencia de líneas rectas y volúmenes puros se erige sobre un imponente terreno de 1100 m².
Como una invitación permanente al bienestar, esta obra se nutre de una sensación de libertad que se transmite en los espacios interiores y exteriores de la vivienda (306 m² de superficie cubierta y los 180 m² de semicubierta).
Pensada para una pareja joven con niños, la casa se erige en un tranquilo barrio de Gonnet. Volúmenes puros y bien definidos se emplazaron en este terreno para permitir la sucesión de llenos y vacíos.
Así, la bienvenida se resuelve de manera impactante. Volumétricamente, la vivienda se materializa en tres paquetes bien definidos, vinculados por un camino de madera que los recorre y antecede.
Gracias a la disposición de los volúmenes y de los espacios, y apostando a materiales que logran armonía y equilibrio con el entorno, el interior se confunde en muchas oportunidades con el exterior en este proyecto; los espacios semicubiertos logran vincular los cubiertos y el resto del terreno, generando una idea de continuidad espacial y de circulación que atraviesa la obra.



































Entre el bosque y el lago, una casa-puente que une generaciones, naturaleza y vida social.

Una vivienda de Fran Silvestre Arquitectos que convierte la sombra en refugio y la luz en paisaje.

La casa diseñada por MORA HUGHES arquitectos en Mendoza combina estética nórdica, la calidez de la madera y la música que marca el pulso de cada encuentro.

Estuvimos con la Arq Carolina Esnaola recorriendo una obra que realizó en el Quimilar. Un patio interno que divide el ambiente principal y llena de luz la casa.







Un recubrimiento acrílico antideslizante, versátil y resistente, pensado para prevenir accidentes.

Invertir en infraestructura es clave para la productividad, la equidad social y el crecimiento del país. Extracto de la entrevista a Martín Russo, de LFR Constructora.

Distribuidora Galuss, firma especializada en soluciones lumínicas para proyectos profesionales, anuncia la incorporación de dos marcas icónicas del diseño internacional: Luceplan y Artemide.

Tendencias, tecnologías e Innovación en Real Estate y Arquitectura. Jornada de capacitación para desarrollador, inmobiliarios y arquitectos.

El mercado inmobiliario argentino comienza a dar señales nítidas de reactivación tras años de volatilidad. La nueva fase se explica por la convergencia de cuatro vectores macroeconómicos: baja de tasas, dólar estable, riesgo país en descenso y financiamiento más accesible para el sector público y las empresas. Este “combo” no sólo mejora las expectativas: abarata el costo del capital, sanea balances y vuelve a poner en marcha la inversión privada.










