



La casa exhibe las señas reconocibles de Cosasmínimas: líneas puras, materiales nobles, una relación amigable con el entorno y una decoración que, como anticipa el nombre del estudio, invita a apreciar lo sencillo.
La impronta contemporánea se ve en el trazo y en la fachada de vidrio, madera, piedra y hormigón revestido en un blanco apenas degradado, lo suficiente para reforzar la calidez cedida por la madera. El muro de piedra afirma la solidez de la cúbica construcción de dos plantas mientras que las grandes porciones de vidrio y la baranda transparente que resguarda la terraza apuntan, en cambio, a conferirle cierto aire ingrávido. El importante retiro de calle impide que la privacidad de los moradores se vea perjudicada por el protagonismo de este material y al mismo tiempo otorga una luminosidad incomparable a la vivienda. La terraza del piso superior se apoya en el muro de piedra generando en la planta baja un espacio cubierto para guardar los autos. Trasponiéndolo, ya a cielo abierto, con el pasto relevando el adoquinado, se encuentra el visitante con la puerta de entrada principal.






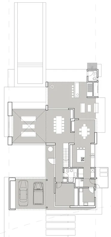
Hay que destacar la efectividad del recurso, elegante como una teoría matemática, porque es gracias a esta especie de patio interno que los arquitectos consiguen cumplir con los deseos de los propietarios: ambientes luminosos, amplios e integrados entre sí y con el afuera, adecuados a la intensa vida social de sus moradores–una pareja con hijos- por lo cual la circulación debía ser fluida. La casa además debía contar con cómodas áreas semicubiertas con sus respectivos servicios a los efectos de disfrutar del dilatado parque con familia y amigos.
Es así que el patio interno funciona como fuelle entre el acceso y el estar y, a su vez, éste y las restantes áreas sociales principales de la casa –comedor y living- se integran en forma pasante en una línea que queda como sumergida en el verde. Tal efecto es refrendado por la doble altura vidriada a ambos lados del estar.
La cocina –también considerada esencial por la familia- desemboca en una pérgola que funciona a la vez como espacio de reunión, de descanso y de lectura.
El comedor se extiende en un semicubierto en el que se ha dado lugar a una verdadera zona de parrilla.






La parte posterior de la casa queda mirando el verde del parque y la piscina.
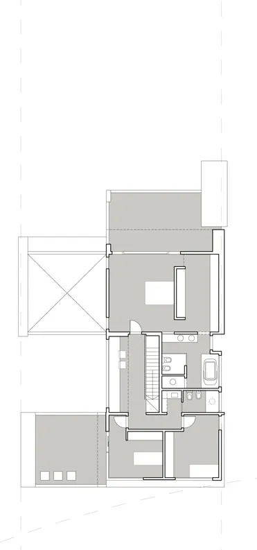
Una escalera de madera con baranda transparente conduce a la planta superior que, generada en forma lineal y transversal a la planta baja, ha sido destinada a las habitaciones de padres e hijos.
Es este un sector totalmente íntimo, definido en dos alas: la reservada para el matrimonio en la que luce el dormitorio en suite con su vestidor es la que se expande en la terraza que da al frente; la otra es la que aloja los dormitorios de los niños. En medio de ellas, reforzando la privacidad, un espacio distribuidor de múltiples usos que balconea sobre el estar conectando verticalmente la vivienda.






En cuanto a la decoración, podríamos decir que logra un equilibrio perfecto entre lo rústico y lo moderno, repartido según un criterio funcional. Así, las áreas más ligadas a la vida al aire libre, eximidas de ornamentaciones, han sido amobladas con sólidos muebles de madera que evocan en quien los mire reminiscencias de antiguas estancias.
En la línea formada por las áreas sociales del interior, sobre un piso único de porcelanato blanco –que se expande hacia el afuera para unificar- pueden verse en cambio muebles que por su diseño pertenecen a lo más clásico de lo moderno. El color rojo juega un papel preponderante confiriendo calidez al conjunto formado por la amplitud de los espacios y la sobriedad del mobiliario.
En la planta alta domina la madera, y cada cuarto ha sido pensado con arreglo a la personalidad de su usuario.
Claridad, fluidez, continuidad, son los conceptos de los que se valieron los arquitectos de Cosasmínimas para trazar esta línea continua.
Fotos: Leandro Arévalo
Texto: Soledad Franco
[ INFORMACIÓN ]
Tipo de obra: Vivienda unifamiliar
Ubicación: Fincas de Iraola II
Año de obra: 2013
Sup. cubierta: 340 m²
Sup. del terreno: 889,86 m²
[ PROYECTO ]
Cosasminimas. Arquitectura - diseño interior
Arqs. Diego Ameal - Mariana Gizzi
Tel: (02229) 45 5662
[email protected]
www.cosasminimas.com.ar


























EGGER presenta su Colección Decorativa 26+, un espacio para nuevas sensaciones.

Se inauguró la 20° edición de Estilo Pilar con su nueva propuesta Boutique









































