
La Casa sobre el Arroyo



Conocida comúnmente como Casa del Puente, el Museo Casa Sobre El Arroyo ubicado en las calles Quintana y Funes de la ciudad de Mar del Plata, es una joya de la arquitectura diseñada por el prestigioso arquitecto Amancio Williams. Para muchos, esta casa es la más clara expresión del Movimiento Moderno argentino y una de las casas más notables del siglo XX, que por su originalidad y perfección constructiva es estudiada a nivel internacional y permitió identificar a Mar del Plata en el mundo.
Declarada Interés Patrimonial, Cultural, Natural por parte del Municipio de General Pueyrredón, y Monumento Histórico Artístico Nacional (1997) y Patrimonio Cultural, Histórico, Arquitectónico y Ambiental de la Provincia de Buenos Aires, la Casa sobre el Arroyo es, desde enero de 2013, un museo abierto al público.
La casa fue diseñada y llevada a cabo bajo la estricta supervisión del arquitecto Amancio Williams, con la colaboración de su esposa Delfina Gálvez Bunge (también arquitecta), respondiendo al pedido de su padre, el compositor y pianista Alberto Williams: una vivienda/estudio musical que llevó dos años de inspección y 120 viajes de ida y vuelta entre Buenos Aires y Mar del Plata, además de centenares de planos.
Las edificaciones que se construyeron (además de la vivienda se incluyó un pabellón de servicio/casa de huéspedes y garaje) se emplazan en un contexto excepcional, un terreno cruzado por la cuenca del arroyo Las Chacras, dividiéndolo en dos.






La Casa sobre el Arroyo concreta la unión de los dos márgenes de dicho arroyo, localizándose sobre el rasgo protagónico del sitio. El parque posee un robledal de más de 100 años y otras muchas especies vegetales como eucaliptos, arces, etc. Es justamente este contexto natural el que le da sentido y carácter a esta emblemática construcción.
Esta vivienda fue pensada, precisamente, como un conjunto de unidad indisoluble, donde la arquitectura se proyectó de manera tal que pudiera incorporarse a la naturaleza, sin hacerlo en forma intrusiva, sin anularla. La forma de la casa es al mismo tiempo, en su totalidad, estructura, que se muestra al desnudo en su calidad auténtica: el hormigón que la constituye está a la vista, martelinado y tratado químicamente. Forma, estructura y calidad son una sola cosa en esta vivienda que proyectó Williams.
La estructura de esta obra escultórica, planteada en tres dimensiones, es netamente espacial; se sintetiza en formas geométricas y una estructura tridimensional que trabaja como un conjunto armónico integral y no como un grupo de piezas yuxtapuestas.
Respecto a los materiales, como ya se mencionó, y a partir de su experiencia como ingeniero, Amancio Williams eligió el hormigón armado como principal material, constituyendo el 94% de la obra. Se deja a la vista la riqueza de la superficie.






También se habló mucho de la visión criolla de Alberto Williams sobre el valor de la cultura de la música autóctona argentina, y cómo eso tiene un equivalente en la visión de su hijo en relación a la arquitectura. En este caso, el interior de esta obra es de tipología lineal y sus ambientes se disponen haciendo referencia a la típica “casa chorizo”, vivienda tradicional de nuestro país.
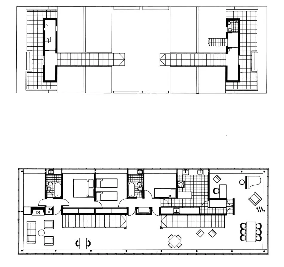
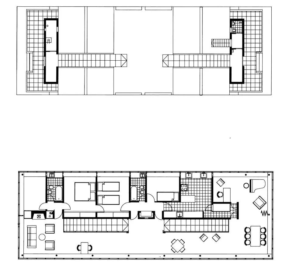
Morfológicamente, la Casa del Puente se presenta como un prisma transparente de 27 metros de largo, 9 de ancho y 4 de alto que se encuentra suspendido sobre una lámina curva delgada de hormigón; sobre los puntos de apoyo de este arco se ubican las entradas.
En cuanto a su disposición, el espacio habitable de la planta principal se encuentra elevado a la altura de la copa de los árboles que la circundan, vinculándose al exterior a través de un ventanal continuo que permite visuales en los 360°, invitando a la naturaleza a todos los rincones de la casa/estudio musical.
En este sentido, el espacio interior está compuesto por un volumen central que longitudinalmente separa en mitades a la vivienda, dividiéndola en espacios sociales por un lado, y por el otro los espacios privados. Dicho volumen se va transformando, ya que por un lado es el contendor del hogar a leña en la sala de estar, pasando a ser los placares de los dormitorios, mueble de cocina y tabique divisor en el área de la galería.
Entre los espacios sociales nos encontramos con la sala de estar, lugar de encuentro y vivencia, decorado con sencillez y con tabiques de madera que aportan calidez; el estudio musical (semipúblico), ubicado estratégicamente en una esquina de la vivienda; junto a él, el comedor, separado por una puerta plegadiza.
Del otro lado del volumen, además del estudio musical, nos encontramos con los dormitorios, sencillamente decorados, con iluminación cenital proveniente de las lucarnas.
La Casa sobre el Arroyo o la Casa del Puente, como se elija llamarla, es una de las obras más importantes del prestigioso arquitecto Amancio Williams. Lo cierto es que, desde su construcción., se ha convertido en ícono de la arquitectura argentina, venerada por artistas de todo el mundo, y atracción turística indiscutida del patrimonio cultural marplatense.
Fuente y fotos cedidas por: Rosario Fandiño del Museo Casa sobre el Arroyo
[ INFORMACIÓN ]
Museo Casa sobre el Arroyo. Secretaría de Cultura
Municipalidad de General Pueyrredón. Mar del Plata | Batán
Quintana Nº 3998 esquina Funes. 7600. Mar del Plata. Argentina
Tel (54) 223 473 8290
























EGGER presenta su Colección Decorativa 26+, un espacio para nuevas sensaciones.

Se inauguró la 20° edición de Estilo Pilar con su nueva propuesta Boutique





































