
Entre el bosque y el lago, una casa-puente que une generaciones, naturaleza y vida social.
**cariló. el desafío de integrarse a lo que la rodea, el espíritu inquieto ycreativo del estudio; todo se materializa en cada rincón de esta vivienda.
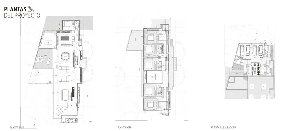
Casas05 de enero de 2017 Espacio&Confort



Esta vivienda, obra del Estudio Ravier, expresa en sus 716 m², las características de la arquitectura moderna, luciéndose y destacándose pero sabiendo que no debe competir con el entorno.
La fuerte impronta verde del lugar, dominado por altos árboles que generan una atmósfera de luces, sombras, sonidos y suaves movimientos, disparó la idea de la obra. Una “cinta” de hormigón a la vista se extiende en el terreno de manera horizontal “flotando” inmersa entre los árboles y enmarcando el imponente entorno natural. De esta manera, va envolviendo y conformando los distintos espacios de la vivienda.
La vivienda se desarrolla en un eje longitudinal que se extiende a lo largo del terreno, de manera que se distribuye en una secuencia de sucesivos espacios interiores que se abren hacia el imponente paisaje y la buena orientación. La distribución de los espacios responde a una concepción más clásica: los ambientes más públicos, en planta baja; los privados, en planta alta.



























Entre el bosque y el lago, una casa-puente que une generaciones, naturaleza y vida social.

Una vivienda de Fran Silvestre Arquitectos que convierte la sombra en refugio y la luz en paisaje.

La casa diseñada por MORA HUGHES arquitectos en Mendoza combina estética nórdica, la calidez de la madera y la música que marca el pulso de cada encuentro.

Estuvimos con la Arq Carolina Esnaola recorriendo una obra que realizó en el Quimilar. Un patio interno que divide el ambiente principal y llena de luz la casa.







En tiempos de vacas flacas, la estrategia no es salir a comprar más vacas, sino aprender a engordar las que ya tenemos.

Un recubrimiento acrílico antideslizante, versátil y resistente, pensado para prevenir accidentes.

Invertir en infraestructura es clave para la productividad, la equidad social y el crecimiento del país. Extracto de la entrevista a Martín Russo, de LFR Constructora.

Distribuidora Galuss, firma especializada en soluciones lumínicas para proyectos profesionales, anuncia la incorporación de dos marcas icónicas del diseño internacional: Luceplan y Artemide.

Tendencias, tecnologías e Innovación en Real Estate y Arquitectura. Jornada de capacitación para desarrollador, inmobiliarios y arquitectos.










