
Entre el bosque y el lago, una casa-puente que une generaciones, naturaleza y vida social.
**provincia de buenos aires. en un barrio privado se erige esta imponentevivienda que se destaca por su volumetría, equilibrio y transparencia.
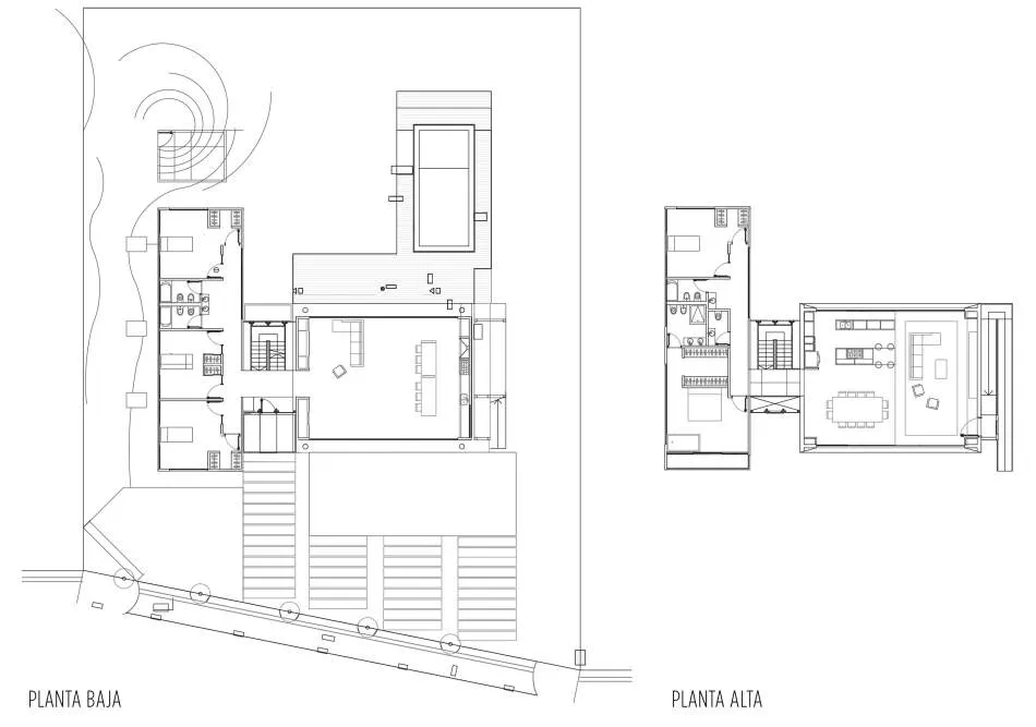
Casas05 de mayo de 2017 Espacio&Confort



Obra dirigida por la Arq. Micaela Busetto, este proyecto de la Arq. Guadalupe Pereyra surgió con la idea de maximizar las ventajas dadas por el entorno y la ubicación. Logrando un equilibrio perfecto entre diseño y confort, esta vivienda moderna y funcional revela sus cualidades a primera vista: entre la volumetría, la transparencia y el equilibrio, la arquitectura y la ambientación se encuentran en una evidente armonía.
Además de lo señalado, entre las premisas constructivas se privilegió, pensando en la implantación de la vivienda, el máximo aprovechamiento del sol, la ventilación cruzada, la doble visual y la sustentabilidad de los materiales.
De esta manera, la distribución de los ambientes revela su propia impronta; se optó por ubicar el área social en la planta alta, dado que por la orientación del terreno, el living comedor recibiría el sol de la tarde en forma plena. Paralelamente a esta decisión, la casa, ubicada frente a un cul de sac, se abre hacia la vía pública del barrio privado pero aprovecha el amparo de la copa de los árboles para evitar perder intimidad.



























Entre el bosque y el lago, una casa-puente que une generaciones, naturaleza y vida social.

Una vivienda de Fran Silvestre Arquitectos que convierte la sombra en refugio y la luz en paisaje.

La casa diseñada por MORA HUGHES arquitectos en Mendoza combina estética nórdica, la calidez de la madera y la música que marca el pulso de cada encuentro.

Estuvimos con la Arq Carolina Esnaola recorriendo una obra que realizó en el Quimilar. Un patio interno que divide el ambiente principal y llena de luz la casa.







Invertir en infraestructura es clave para la productividad, la equidad social y el crecimiento del país. Extracto de la entrevista a Martín Russo, de LFR Constructora.

Distribuidora Galuss, firma especializada en soluciones lumínicas para proyectos profesionales, anuncia la incorporación de dos marcas icónicas del diseño internacional: Luceplan y Artemide.

Tendencias, tecnologías e Innovación en Real Estate y Arquitectura. Jornada de capacitación para desarrollador, inmobiliarios y arquitectos.

El mercado inmobiliario argentino comienza a dar señales nítidas de reactivación tras años de volatilidad. La nueva fase se explica por la convergencia de cuatro vectores macroeconómicos: baja de tasas, dólar estable, riesgo país en descenso y financiamiento más accesible para el sector público y las empresas. Este “combo” no sólo mejora las expectativas: abarata el costo del capital, sanea balances y vuelve a poner en marcha la inversión privada.

En noviembre, la celebración del diseño continuó con la apertura de la tradicional muestra de arquitectura y diseño en sus ediciones Casa FOA Uruguay, Carrasco Boating y Casa FOA Chile, edición Zoco.










