
Entre el bosque y el lago, una casa-puente que une generaciones, naturaleza y vida social.
**espacios flexibles, cálidos y amplios que se expanden hacia el exterior,definen la forma de habitar en esta formidable casa del estudio v2arquitectos.
Casas23 de noviembre de 2021 Espacio&Confort



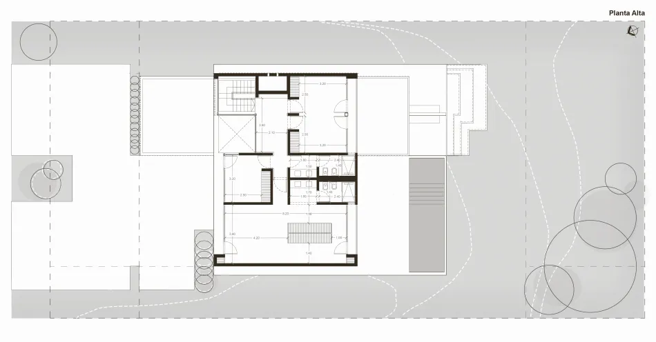
Esta vivienda unifamiliar de 230 m² está ubicada en un barrio cerrado de City Bell, La Plata, sobre una parcela de 800 m².
El proyecto se basó en tres premisas concretas: flexibilidad espacial, amplios ambientes y una fluida relación con el exterior.
La conformación morfológica de la vivienda está dada por un gran prisma de hormigón visto de 13 m x 9 m, que contiene las áreas privadas de la casa.
La estructura portante de planta baja se disimula y retranquea enfatizando de esta manera la idea de suspensión del prisma de la planta superior.





















Entre el bosque y el lago, una casa-puente que une generaciones, naturaleza y vida social.

Una vivienda de Fran Silvestre Arquitectos que convierte la sombra en refugio y la luz en paisaje.

La casa diseñada por MORA HUGHES arquitectos en Mendoza combina estética nórdica, la calidez de la madera y la música que marca el pulso de cada encuentro.

Estuvimos con la Arq Carolina Esnaola recorriendo una obra que realizó en el Quimilar. Un patio interno que divide el ambiente principal y llena de luz la casa.







En tiempos de vacas flacas, la estrategia no es salir a comprar más vacas, sino aprender a engordar las que ya tenemos.

Un recubrimiento acrílico antideslizante, versátil y resistente, pensado para prevenir accidentes.

Invertir en infraestructura es clave para la productividad, la equidad social y el crecimiento del país. Extracto de la entrevista a Martín Russo, de LFR Constructora.

Distribuidora Galuss, firma especializada en soluciones lumínicas para proyectos profesionales, anuncia la incorporación de dos marcas icónicas del diseño internacional: Luceplan y Artemide.

Tendencias, tecnologías e Innovación en Real Estate y Arquitectura. Jornada de capacitación para desarrollador, inmobiliarios y arquitectos.










