
Diseño espejado y materiales con memoria: arquitectura que conecta con lo cotidiano.
Ambientes flexibles y luminosos integrados al espacio exterior defin en aesta obra con terminaciones de categoría.
Arquitectura26 de enero de 2022 Espacio&Confort



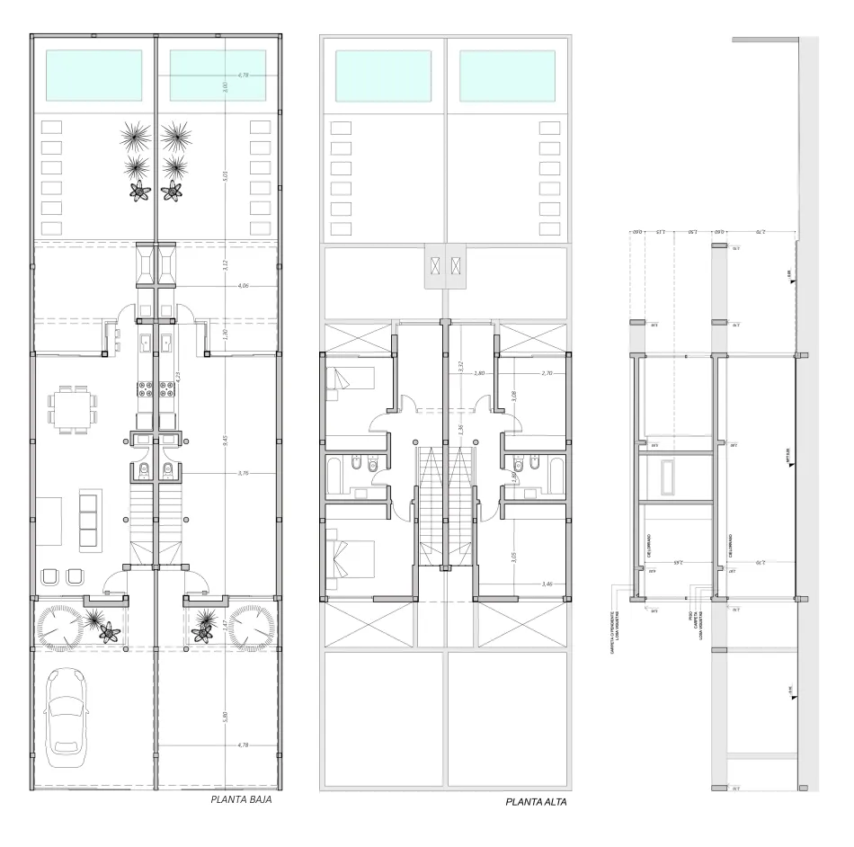
Ubicados en una zona residencial consolidada de la localidad de City Bell, se desarrollan dos viviendas en dúplex de tres dormitorios implantadas sobre un lote 300 m².
Dúplex City Bell fue proyectado teniendo como premisas fundamentales el aprovechamiento de toda la longitud del terreno, para favorecer así el uso de la luz natural y la ventilación cruzada.
Las viviendas fueron diseñadas de manera que sean independientes, disponiendo cada una de ellas de un lote propio de 5 metros de frente por 30 m de fondo.



Delimitadas de la calle por un frente semipermeable y proyectadas en espejo, cada unidad funcional dispone de acceso vehicular y peatonal independiente, estando el garaje con posibilidad de techar y la galería del patio posterior retirados de las líneas de fachadas dando lugar a espacios verdes y huecos de aire entre las carpinterías y las cubiertas de los mismos, generando una excelente habitabilidad interior con espacios llenos de luz natural. El patio se complementa con parrilla, lavadero, jardín y piscina como remate del fondo del lote.
Una vez en el interior de las viviendas el programa en planta baja propone un espacio abierto en el que se desarrolla el amplio estar comedor y la cocina integrada, aprovechando el bajo escalera para la ubicación del baño social y la baulera. En planta alta en cambio, los espacios privados se conforman por dos dormitorios con placard, un tercer dormitorio o estudio y el baño completo.
De carácter premium Dúplex City Bell se desarrolló como una propuesta comercial para aquellas familias que buscan una construcción de primera calidad con terminaciones de categoría y ambientes flexibles y luminosos integrados al espacio exterior.
Fotos: Helena Studio
PROYECTO
Arq. Martin Mumbru
www.martinmumbru.com
+54 9 221 6402477
COMERCIALIZA
Mariano Costa Bienes Raíces
[email protected]
+54 9 2392 624509







Diseño espejado y materiales con memoria: arquitectura que conecta con lo cotidiano.

Un edificio de vivienda en La Plata que se apoya en la claridad estructural, la calidez material y la integración urbana.

Cada decisión en este proyecto fue concebida bajo un mismo enfoque: HitzigMilitello Arquitectos buscó crear un oasis botánico emplazado en pleno caos urbano. Esta línea rectora marcó un norte que determinó cada una de las definiciones proyectuales, desde lo espacial arquitectónico, pasando por la elección de materiales, equipamiento, recursos gráficos y, principalmente, las intervenciones paisajísticas.

Una obra pensada para aprender, investigar y conectar: la nueva sede universitaria que conjuga tecnología, sustentabilidad y comunidad.







Un recubrimiento acrílico antideslizante, versátil y resistente, pensado para prevenir accidentes.

Invertir en infraestructura es clave para la productividad, la equidad social y el crecimiento del país. Extracto de la entrevista a Martín Russo, de LFR Constructora.

Distribuidora Galuss, firma especializada en soluciones lumínicas para proyectos profesionales, anuncia la incorporación de dos marcas icónicas del diseño internacional: Luceplan y Artemide.

Tendencias, tecnologías e Innovación en Real Estate y Arquitectura. Jornada de capacitación para desarrollador, inmobiliarios y arquitectos.

El mercado inmobiliario argentino comienza a dar señales nítidas de reactivación tras años de volatilidad. La nueva fase se explica por la convergencia de cuatro vectores macroeconómicos: baja de tasas, dólar estable, riesgo país en descenso y financiamiento más accesible para el sector público y las empresas. Este “combo” no sólo mejora las expectativas: abarata el costo del capital, sanea balances y vuelve a poner en marcha la inversión privada.










