
Entre el bosque y el lago, una casa-puente que une generaciones, naturaleza y vida social.
**hudson. volúmenes, color, funcionalidad y líneas puras dan forma alsingular carácter y estilo de esta casa, obra de la arq. marcela romiti**.
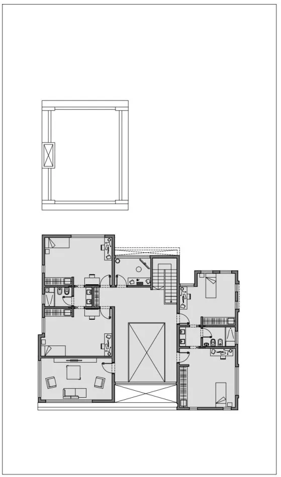
Casas25 de abril de 2019 Espacio&Confort



Esta vivienda se emplaza en el barrio privado Las Golondrinas, un emprendimiento con corredores verdes que garantizan privacidad y tranquilidad.La casa pertenece a una familia compuesta por seis integrantes. Los requerimientos de los propietarios fueron simples y precisos: ellos querían la suite matrimonial en planta baja y los dormitorios de sus cuatro hijos adolescentes en planta alta. Como son dos mujeres y dos varones, se proyectaron los espacios en dos bloques, compuestos cada uno por dos dormitorios y un baño en semisuite, brindándole así independencia a los padres y a cada uno de los hijos.























Entre el bosque y el lago, una casa-puente que une generaciones, naturaleza y vida social.

Una vivienda de Fran Silvestre Arquitectos que convierte la sombra en refugio y la luz en paisaje.

La casa diseñada por MORA HUGHES arquitectos en Mendoza combina estética nórdica, la calidez de la madera y la música que marca el pulso de cada encuentro.

Estuvimos con la Arq Carolina Esnaola recorriendo una obra que realizó en el Quimilar. Un patio interno que divide el ambiente principal y llena de luz la casa.







Un recubrimiento acrílico antideslizante, versátil y resistente, pensado para prevenir accidentes.

Invertir en infraestructura es clave para la productividad, la equidad social y el crecimiento del país. Extracto de la entrevista a Martín Russo, de LFR Constructora.

Distribuidora Galuss, firma especializada en soluciones lumínicas para proyectos profesionales, anuncia la incorporación de dos marcas icónicas del diseño internacional: Luceplan y Artemide.

Tendencias, tecnologías e Innovación en Real Estate y Arquitectura. Jornada de capacitación para desarrollador, inmobiliarios y arquitectos.

El mercado inmobiliario argentino comienza a dar señales nítidas de reactivación tras años de volatilidad. La nueva fase se explica por la convergencia de cuatro vectores macroeconómicos: baja de tasas, dólar estable, riesgo país en descenso y financiamiento más accesible para el sector público y las empresas. Este “combo” no sólo mejora las expectativas: abarata el costo del capital, sanea balances y vuelve a poner en marcha la inversión privada.










