
Entre el bosque y el lago, una casa-puente que une generaciones, naturaleza y vida social.
**brandsen. esta casa diseñada y construida por carrera construye fueconcebida desde un concepto arquitectónico minimalista. calidez,funcionalidad, líneas simples y volúmenes puros son las premisas que lamaterializan.
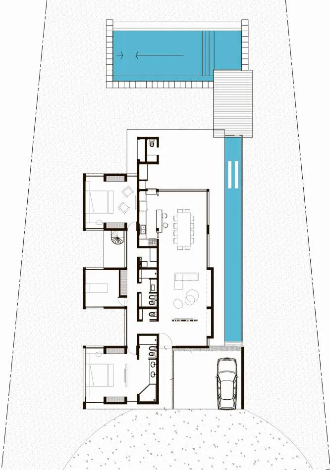
Casas15 de octubre de 2019 Espacio&Confort



Esta vivienda ubicada en el club de campo Haras del Sur III invita a conectarse con la naturaleza. Se trata de una propuesta que conjuga materiales nobles, una relación amigable con el entorno y una impronta contemporánea que se materializa en sus líneas y en su fachada.
Ubicada sobre un lote de 1000 m², la casa se desarrollada en una planta, con una superficie cubierta de 240 m² y 40 m² semi cubiertos.
Priorizando un diseño de vanguardia a medida, la propuesta fue seguir los requerimientos del cliente en cuanto a las formas de habitar la casa, sin perder de vista la identidad del estudio Carrera Construye.





















Entre el bosque y el lago, una casa-puente que une generaciones, naturaleza y vida social.

Una vivienda de Fran Silvestre Arquitectos que convierte la sombra en refugio y la luz en paisaje.

La casa diseñada por MORA HUGHES arquitectos en Mendoza combina estética nórdica, la calidez de la madera y la música que marca el pulso de cada encuentro.

Estuvimos con la Arq Carolina Esnaola recorriendo una obra que realizó en el Quimilar. Un patio interno que divide el ambiente principal y llena de luz la casa.







Invertir en infraestructura es clave para la productividad, la equidad social y el crecimiento del país. Extracto de la entrevista a Martín Russo, de LFR Constructora.

Distribuidora Galuss, firma especializada en soluciones lumínicas para proyectos profesionales, anuncia la incorporación de dos marcas icónicas del diseño internacional: Luceplan y Artemide.

Tendencias, tecnologías e Innovación en Real Estate y Arquitectura. Jornada de capacitación para desarrollador, inmobiliarios y arquitectos.

El mercado inmobiliario argentino comienza a dar señales nítidas de reactivación tras años de volatilidad. La nueva fase se explica por la convergencia de cuatro vectores macroeconómicos: baja de tasas, dólar estable, riesgo país en descenso y financiamiento más accesible para el sector público y las empresas. Este “combo” no sólo mejora las expectativas: abarata el costo del capital, sanea balances y vuelve a poner en marcha la inversión privada.

En noviembre, la celebración del diseño continuó con la apertura de la tradicional muestra de arquitectura y diseño en sus ediciones Casa FOA Uruguay, Carrasco Boating y Casa FOA Chile, edición Zoco.










