
Más que un diseño técnico, la Casa Tao en Puerto Vallarta de HW STUDIO nace de la memoria, la filosofía y el deseo de habitar el mundo con atención, convirtiendo la sombra en un refugio emocional inspirado en la estética japonesa.
**c. a. b. a. el estudio machelett arquitectos fue quien proyectó esta obra deremodelación que se realizó en un tradicional ph, ubicado en el centro de santelmo, que mantuvo la magia de las antiguas casas chorizo.
Casas27 de septiembre de 2019 Espacio&Confort



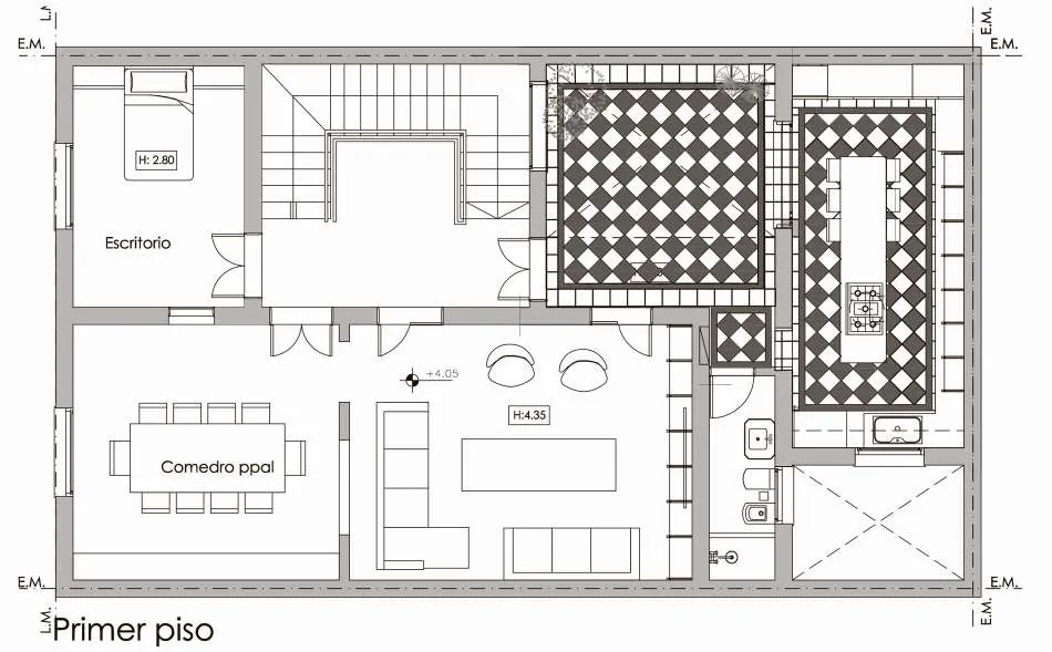
La vivienda está ubicada en un primer piso, sobre un local que da a la calle, melliza espejada del PH donde vivió Tita Merello. Antes de remodelarse se utilizaba como Galería de Arte.
El estudio Machelett Arquitectos fue el responsable de esta obra de remodelación, donde se propuso enfatizar el concepto del trascurso del tiempo, respetando la historia de la vivienda y mostrando los cambios que había sufrido. Se dejaron así las modernas instalaciones que contrastan con la delicadeza de los ebanistas que construyeron la casa. De la misma forma, fueron transformando la planta de la casa; respetando los antiguos elementos que le dan riqueza a este tipo de vivienda, pero los adaptaron a la forma contemporánea de vida potenciando las funciones y unificando los ambientes.
Al ingresar a la vivienda, el palier cuenta con mayólicas verdes, frisos y molduras que fueron cuidadosamente restaurados.






















Más que un diseño técnico, la Casa Tao en Puerto Vallarta de HW STUDIO nace de la memoria, la filosofía y el deseo de habitar el mundo con atención, convirtiendo la sombra en un refugio emocional inspirado en la estética japonesa.

En esta vivienda de fin de semana, la Arq. Gisele Baldoni de Galuss convierte la iluminación en un lenguaje: menos luz, pero mejor pensada, para crear atmósferas que hablan.

Un hogar diseñado a medida, donde la herencia familiar convive con el espíritu relajado del mar y la creatividad.

Entre el bosque y el lago, una casa-puente que une generaciones, naturaleza y vida social.







Todo es para ayer. Llegamos al fin de año. Esta columna también atravesó la deadline , la fecha de cierre, pero se abrió camino con la contagiosa energía de nuestro querido amigo Damián Garbarini.

La empresa líder en carpinterías y productos arquitectónicos de PVC anuncia a los ganadores de una de las tres categorías participantes del viaje y estadía a la feria VETECO 2026 en España.

En Lomas de Zamora, a solo 15 cuadras de la estación, Gini S.A. se posiciona como una empresa en constante crecimiento, dedicada a brindar materiales para la construcción que combinan calidad, variedad y precios accesibles.

Las cubiertas exteriores también pueden convivir armoniosamente con lo natural.

Tecnología nacional y accesible que facilita el mantenimiento de piscinas y que le aporta valor a todo proyecto.










