
Entre el bosque y el lago, una casa-puente que une generaciones, naturaleza y vida social.
Hudson. Obra del estudio byb arquitectas y del Arq. Marcos P. Rutigliano,esta vivienda fue remodelada bajo la premisa de abrir los espacios, apostandoa la funcionalidad y a la modernidad.
Casas28 de noviembre de 2019 Espacio&Confort



Situada en el Club de Campo Abril, con vistas al golf, esta casa existente de 500 m² fue remodelada en su totalidad para lograr espacios abiertos, luminosos y modernos. Solo se dejó la estructura original y se adaptó a las nuevas necesidades. El proyecto estuvo a cargo de las arquitectas Analía Bigliardi y Mariel Basirico, y del Arq. Marcos P. Rutigliano.
La casa, diseñada en dos plantas, se destaca por sus líneas rectas y formas puras. La reforma integral que se realizó aportó modernidad y dinamismo, y tuvo como eje la transparencia de los espacios, sobre todo en el contrafrente, donde amplios paños vidriados se destacan conectando los espacios interiores con el exterior.
Allí, un amplio jardín con una piscina con deck se vincula a la vivienda a través de un galería vidriada que funciona como quincho totalmente equipado para el máximo disfrute en cualquier estación del año.





Las dos plantas de la casa están plácidamente conectadas por una escalera interior y otra en el exterior que conduce a una terraza, sin perder de vista la práctica separación entre las áreas de uso compartido y las que exigen más privacidad.
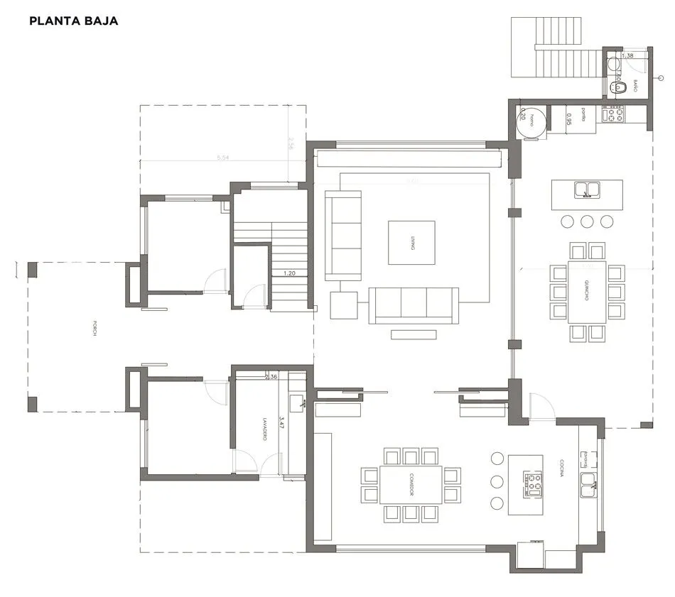
De este modo, en la planta baja se priorizó la ubicación de un living amplio que con el aporte de la domótica se convierte en un espacio multifuncional, y tomando el eje central se articuló con un ambiente cocina comedor integrado que a su vez conecta con el sector de quincho con su parrilla y horno de barro.
En ese espacio de la planta baja, una gran cava para vinos se destaca y separa el comedor del living.
En tanto, en la planta alta se destinó toda la orientación con vistas a la cancha de golf para desarrollar la suite principal, que cuenta con dormitorio, dos vestidores, baño, sauna seco, sauna húmedo, gym y la mencionada terraza con hidromasaje.
Por su parte, en lo que corresponde al sector del frente de la casa se ubicaron dos dormitorios, ambos en suite.




















Entre el bosque y el lago, una casa-puente que une generaciones, naturaleza y vida social.

Una vivienda de Fran Silvestre Arquitectos que convierte la sombra en refugio y la luz en paisaje.

La casa diseñada por MORA HUGHES arquitectos en Mendoza combina estética nórdica, la calidez de la madera y la música que marca el pulso de cada encuentro.

Estuvimos con la Arq Carolina Esnaola recorriendo una obra que realizó en el Quimilar. Un patio interno que divide el ambiente principal y llena de luz la casa.







Un recubrimiento acrílico antideslizante, versátil y resistente, pensado para prevenir accidentes.

Invertir en infraestructura es clave para la productividad, la equidad social y el crecimiento del país. Extracto de la entrevista a Martín Russo, de LFR Constructora.

Distribuidora Galuss, firma especializada en soluciones lumínicas para proyectos profesionales, anuncia la incorporación de dos marcas icónicas del diseño internacional: Luceplan y Artemide.

Tendencias, tecnologías e Innovación en Real Estate y Arquitectura. Jornada de capacitación para desarrollador, inmobiliarios y arquitectos.

El mercado inmobiliario argentino comienza a dar señales nítidas de reactivación tras años de volatilidad. La nueva fase se explica por la convergencia de cuatro vectores macroeconómicos: baja de tasas, dólar estable, riesgo país en descenso y financiamiento más accesible para el sector público y las empresas. Este “combo” no sólo mejora las expectativas: abarata el costo del capital, sanea balances y vuelve a poner en marcha la inversión privada.










