
Una casa pasiva en Buenos Aires
Espacio&Confort


La Ciudad de Buenos Aires tendrá la primera edificación con la certificación Low Energy Building de Passivhaus, un precedente innovador que marca el inicio de una nueva forma de concebir, diseñar y construir en la ciudad de manera eficiente, alcanzando un estándar que supera ampliamente la normativa de eficiencia energética vigente en Argentina.
Las viviendas Passivhaus, por definición casa pasiva, pueden reducir el consumo energético hasta en un 90% en comparación con una vivienda tradicional. Este ahorro se logra principalmente minimizando la demanda de calefacción y refrigeración, y mejorando la inercia térmica de la vivienda. Para esto, se proyectan estrategias bioclimáticas que permitan el ingreso de luz natural y calor en los meses fríos, reduciendo así la demanda de calefacción.
En los meses cálidos la demanda de climatización se controla limitando la incidencia solar durante el día y disipando las ganancias térmicas durante la noche mediante ventilación cruzada natural.En este sentido, es fundamental lograr cerramientos altamente aislados y libres de puentes térmicos, y una envolvente hermética que minimice el intercambio indeseado de aire entre el interior y el exterior. Para ello, se deben utilizar materiales eficientes como las aberturas de altas prestaciones, con baja transmitancia y un alto grado de hermeticidad. 



Gracias a estos principios, no solo se logra un ahorro energético significativo, sino también un alto nivel de confort y calidad del aire en el interior de la vivienda.
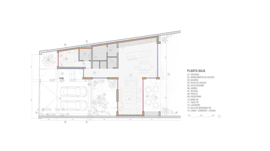
El estudio BerdesYudchak Iriarte lleva adelante en el barrio de Belgrano R, el proyecto ESTOMBA, una vivienda de 330 m² pionera en la ciudad ya que fue concebida bajo los estándaresPassivhaus con materiales de origen renovable, y cuando obtenga la certificación, se convertirá en el primer edificio Low-EnergyBuilding de la Ciudad Autónoma de Buenos Aires.
El arquitecto a cargo del diseño y dirección de obra, Joaquín Berdes del estudio BerdesYudchak Iriarte explica que permite renovar el aire sin modificar la temperatura interior. De esta forma, se logran niveles óptimos de humedad, oxígeno, CO2, y se eliminan las partículas en suspensión. A su vez, el proyecto cuenta con un sistema de recuperación de agua de lluvia para riego, un sistema complementario de aire acondicionado por VRF de alta eficiencia, un calentador solar de agua y una biopiscina natural que no requiere productos químicos para su mantenimiento. Sumado a la posibilidad de incorporar paneles solares que puedan abastecer los requerimientos energéticos de la vivienda y devolver energía a la red.
Un eje central en el diseño bioclimático es la aislación. Tanto la envolvente como las aberturas deben garantizar, en viviendas Passivhaus, la minimización del intercambio indeseado de aire entre el interior y el exterior y así alcanzar un ahorro energético significativo.
En este sentido, los comitentes Mariano y Shirly, asesorado por el Estudio a cargo, eligieron las carpinterías de PVC de Muchtek por su excelente prestación térmica, su alta hermeticidad y resistencia, ya que cuentan con valores de transmitancia muy bajos y mínima permeabilidad al aire (Clase 4). Al ser de PVC no generan puentes térmicos y contribuyen significativamente a minimizar la demanda de climatización.
El Arq. Berdes asegura, “al ser una empresa nacional, Muchtek ofrece soluciones competitivas tanto en calidad como en costo. En nuestro caso, se utilizaron aberturas de paños fijos, hojas oscilobatientes de las líneas Efficient y aberturas corredizas de la Línea Evolution de grandes dimensiones foliadas en el color Turner Oak. En este proyecto tan desafiante, el asesoramiento brindado por el equipo técnico de la empresa fue fundamental para cumplir con las exigencias del estándar. Los perfiles de Muchtek para los diferentes sistemas de aberturas fabricadas por Kloss, junto con los DVH de Climanet con vidrios templados y laminados de baja emisividad, y espaciadores warmedge, con cámara de argón, han sido la solución adecuada para poder aspirar a conseguir la primer certificación Low Energy Building de Passivhaus de la Ciudad de Buenos Aires.”
Por su parte la arquitecta Adriana López, Jefa de grandes proyectos, experta en Eficiencia Energética y Passivhaus Designer de Muchtek confía en que esta experiencia virtuosa va a marcar un hito en la arquitectura de nuestro país. “Existen muy pocos proyectos en Argentina diseñados bajo los estándares de Passivhaus, el arquitecto Berdes ya estuvo a cargo de otra obra que obtuvo esta certificación en Argentina y para nosotros es un gran orgullo haber sido elegidos para formar parte de este proyecto innovador y desafiante para el cual nuestras carpinterías se sometieron a múltiples ensayos para alcanzar el nivel 4 requerido y logramos estar a la altura de las exigencias del proyecto y los estándares solicitados”.
En lo que a exigencias y desafíos requiere diseñar y construir bajo los estándares de Passivhaus en nuestro país, el arquitecto Joaquín Berdes cuenta que “lo más desafiante es trabajar con la rigurosidad técnica del proceso de proyecto bajo el estándar Passivhaus y la necesidad de precisión en la ejecución de la obra con técnicas novedosas, que son muy diferentes de las soluciones constructivas tradicionales. También al tratarse de proyectos poco convencionales en Argentina, encontrar proveedores, productos, y mano de obra calificada puede ser desafiante”.
El deseo de habitar viviendas con un gran confort interior y un consumo energético mínimo, es factible de alcanzar gracias a estas certificaciones que permitirán disfrutar de viviendas sostenibles, saludables y eficientes.•
+ Info: www.muchtek.com




SET Office: el primer edificio corporativo de City Bell






























