
Entre el bosque y el lago, una casa-puente que une generaciones, naturaleza y vida social.
Una obra de la Arq. Bárbara Berson que fluye entre árboles centenarios, entrelazando el paisaje y la vida cotidiana.
Casas25 de octubre de 2024
Espacio&Confort



Al arribar al terreno, fue sorprendente encontrarnos ante la presencia de tres majestuosos árboles emplazados en el lugar central. En ese instante imaginé que la casa debería arropar aquellas monumentales coníferas. Estas serían las encargadas de estructurar la arquitectura y dotarla del factor “tiempo”, a través de las arrugas de su corteza, de sus transformaciones a través de las estaciones, de su vaivén con el viento.
La casa respeta la tierra donde se posa a través de pilotes que apenas la perforan y deja correr por debajo las enormes raíces existentes.







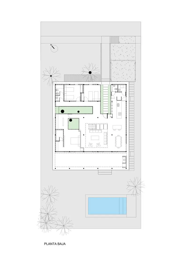
El espacio es concebido como una plataforma de sombras, donde luego comienza un proceso de vaciado y aparece la luz en el interior a través de tres patios.
Desde el exterior observamos una serie de velos de piezas oxidadas que envuelven el cuerpo de la arquitectura. Los espacios aparecen sugeridos a través de las opacidades y transparencias. Otorgan privacidad y permiten desarrollar una vida familiar plena.
El espacio fue concebido como una grilla de columnas moduladas y continuas. Este sistema surge de la exploración para la conectividad entre los espacios domésticos y el medio natural. Interior y exterior se confunden mediante tres patios que son los encargados de conformar y dar privacidad a los diferentes ambientes.
El primer patio se descubre a través de la ceremonia de acceso al espacio íntimo. Un fuelle natural incentiva dejar atrás el ruido de la ciudad y nos prepara para ingresar al mundo de lo privado en busca de la autoconstrucción.
Los otros dos patios median entre las partes públicas y privadas, alojando los arboles existentes en su interior. La luz, la vegetación, el entorno penetra por el diafragma exterior hasta el interior de lo doméstico. La lluvia, el sol, los pájaros, las hojas que caen participan de lo cotidiano del habitar.
Los tabiques que separan los ambientes son livianos, lo que permite al sistema desmontarlos y montarlos con gran facilidad, permitiendo una gran adaptabilidad de uso y flexibilidad en los espacios para ser redefinidos a lo largo del tiempo.
La pérgola actúa como pliegue entre la casa y el jardín, genera un lugar fresco para el encuentro de la familia los días de verano.
Sobre el espacio del estar existe una caja vidriada en doble altura, lugar donde se aloja el estudio de pintura. Desde este sitio se contempla la extensión vertical de los arboles con su culminación en la frondosidad de la copa.
Sobre la totalidad de la casa se desarrolla una terraza para el disfrute de sus habitantes en dialogo con los árboles. Esta tendrá un uso activo dentro del funcionamiento de la vivienda. Será la encargada de recuperar el agua de lluvia para riego y a través de una capa de sustrato y vegetación actuara como aislación térmica para lograr un mayor confort.
En este lugar descubrimos una terraza inesperada, intima, que recupera la tierra donde se posa. Sorteamos caminos bordeados por pastizales pampeanos para llegar a claros de vegetación nativa que atrae a mariposas y colibríes. Desde aquí se contemplan atardeceres y noches de luna llena.•
Fotos: @javieragustinrojas
PROYECTO
Barbara Berson
Dirección de obra: Fernando Brocca
INFORMACIÓN
Ubicación: Cardales, Buenos Aires, Argentina
Año: 2016
Sup. terreno: 700 m2 | Sup.Cubierta: 230 m2



Entre el bosque y el lago, una casa-puente que une generaciones, naturaleza y vida social.

Una vivienda de Fran Silvestre Arquitectos que convierte la sombra en refugio y la luz en paisaje.

La casa diseñada por MORA HUGHES arquitectos en Mendoza combina estética nórdica, la calidez de la madera y la música que marca el pulso de cada encuentro.

Estuvimos con la Arq Carolina Esnaola recorriendo una obra que realizó en el Quimilar. Un patio interno que divide el ambiente principal y llena de luz la casa.







Un recubrimiento acrílico antideslizante, versátil y resistente, pensado para prevenir accidentes.

Invertir en infraestructura es clave para la productividad, la equidad social y el crecimiento del país. Extracto de la entrevista a Martín Russo, de LFR Constructora.

Distribuidora Galuss, firma especializada en soluciones lumínicas para proyectos profesionales, anuncia la incorporación de dos marcas icónicas del diseño internacional: Luceplan y Artemide.

Tendencias, tecnologías e Innovación en Real Estate y Arquitectura. Jornada de capacitación para desarrollador, inmobiliarios y arquitectos.

El mercado inmobiliario argentino comienza a dar señales nítidas de reactivación tras años de volatilidad. La nueva fase se explica por la convergencia de cuatro vectores macroeconómicos: baja de tasas, dólar estable, riesgo país en descenso y financiamiento más accesible para el sector público y las empresas. Este “combo” no sólo mejora las expectativas: abarata el costo del capital, sanea balances y vuelve a poner en marcha la inversión privada.










