
En tono de grises



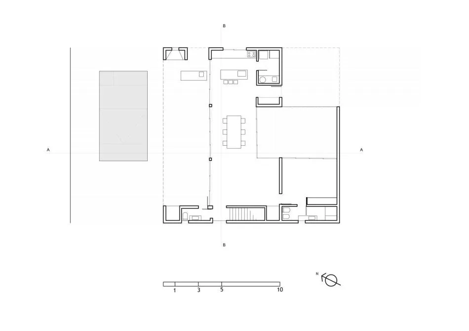
Las dos familias hicieron especial énfasis en los espacios de convivencia, de compartir, la áreas comunes. La casa busca generar un espacio único, fluido y amplio de uso común. Incorporar el exterior y la pileta existente, de modo de liberar al máximo la planta baja.
La vivienda acentúa la relación con el entorno. Es decir, desde adentro hacia fuera. Se muestra compacta y privada desde el acceso exterior mientras que abierta y luminosa desde el interior.








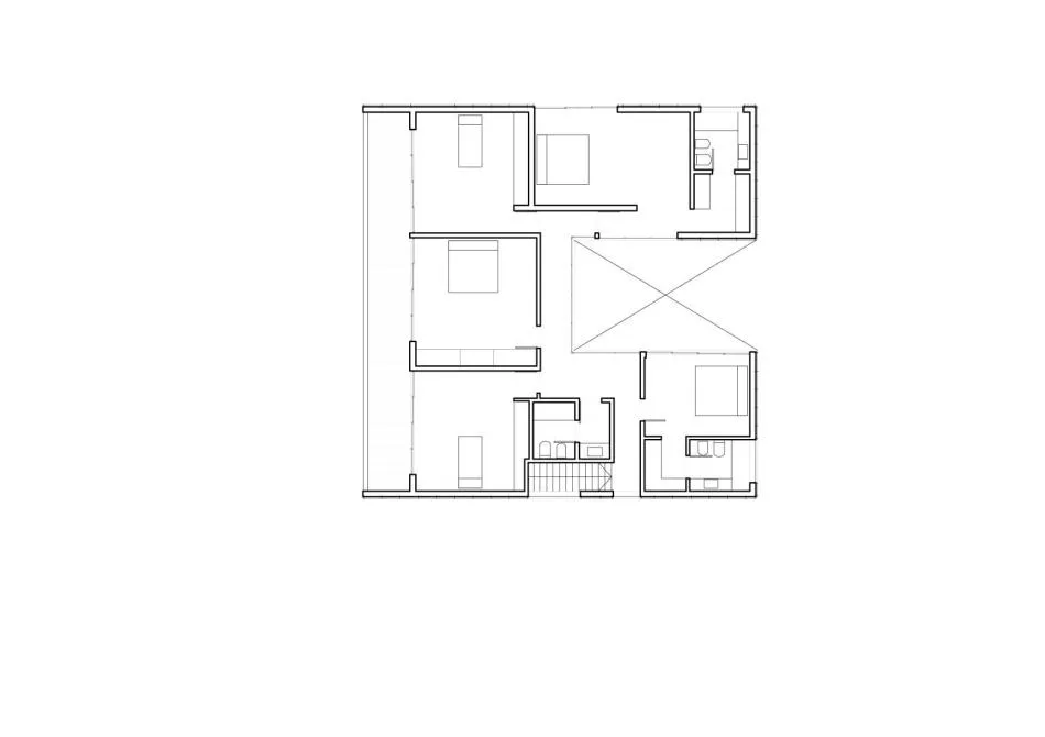
Un patio como corazón del proyecto conforma el acceso, sirve de articulador al recorrido de la vivienda y de uso, fresco en verano, gracias a la sombra arrojada por la proyección de la casa. El mismo en planta baja permite una buena ventilación cruzada en el área de comedor, como también el resto de los programas que lo rodean. En la planta alta el patio genera el recorrido hacia los dormitorios favoreciendo una correcta ventilación e iluminación de los dormitorios principales.
Los servicios y la escalera, en planta baja, se llevaron hacia los bordes este y oeste, favoreciendo la generación de una planta baja libre con clara expansión norte. La losa de hormigón encofrada en madera de pino acentúa la relación e integración del estar-comedor-cocina a la vez que se liberan los bordes laterales norte-sur. La casa se proyecta y se protege hacia el lado del recorrido del sol.






El sector de galería, que protege del sol en verano, es aprovechado como quincho. Es contiguo a las áreas comunes de la casa, favoreciendo la incorporación de esta área con el espacio interior.
La materialidad de la casa busca simplicidad constructiva con un lenguaje austero y contemporáneo. Chapa, hormigón visto y revoques, todo en tono de grises.
PROYECTO
Además arquitectura
www.ademasarquitectura.com
Instagram: @ademasarq
[email protected]
INFORMACIÓN
Nombre del Proyecto:
GZ. Vivienda de fin de semana para dos familias
Ubicación del Proyecto:
Guernica, Buenos Aires, Argentina


















EGGER presenta su Colección Decorativa 26+, un espacio para nuevas sensaciones.

Se inauguró la 20° edición de Estilo Pilar con su nueva propuesta Boutique





















