
Con la vista en la sierra



Ubicada en un barrio en las sierras de Córdoba, sobre un terreno de grandes dimensiones, el estudio buscó diseñar una vivienda unifamiliar que se adapte a las necesidades del cliente.
El proyecto se implanta en una superficie con desnivel, por lo que una de las principales premisas de diseño fue no interrumpir las visuales generales del barrio con la construcción.
Además, se aprovechó la acentuada pendiente para implantar la casa de manera que permita enmarcar las visuales hacia las sierras cordobesas y su abundante vegetación.
Una de los espacios destacados de este proyecto es la terraza jardín que se genera sobre la cochera, ya que se crea, con un diseño moderno y actual, una invasión del terreno natural sobre la construcción.
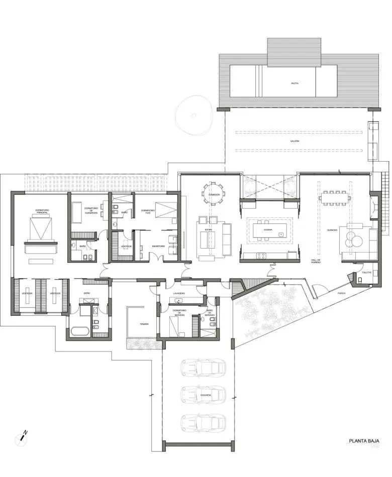
Funcionalmente, la vivienda se divide en dos partes. En primer lugar, la zona privada, que se encuentra en el extremo de la planta, priorizando que todas las habitaciones tengan la visual hacia la montaña. 





































En segundo lugar, la zona pública, que está compuesta por el living/quincho, la cocina y el estar diario.
El principal objetivo al proyectar esta casa fue lograr la máxima flexibilidad espacial posible. Así se decidió ubicar la cocina en el centro del proyecto, como configuradora del resto de los espacios, buscando priorizar e integrar la cocina en el área social, ya que el estudio está convencido que es un espacio que ha cobrado gran importancia a lo largo de los años, sobrepasando su función inicial, que era únicamente de almacenamiento y lugar de cocción, a transformarse en un espacio de reunión e interacción.
Los tres ambientes, living/quincho, cocina y el estar diario, están vinculados entre sí. Entre ellos se genera un gran y único espacio social, de reunión, con la posibilidad de cerrar las puertas de la cocina y dejar que cada espacio funcione independientemente. Además, los tres espacios se vinculan con una amplia galería.
Podemos ver como el cielo raso de hormigón visto unifica, a través de la materialidad, todos los espacios interiores y exteriores de la vivienda.
Por otro lado, en planta alta, tenemos un quincho con acceso únicamente exterior, para reuniones más privadas.
La organización de los espacios en esta construcción permite que los usuarios tengan la capacidad de utilizar la casa de manera súper flexible y en base al uso que cada uno de ellos le quiera dar.
Fotos: Arq. Gonzalo Viramonte
PROYECTO
Estudio Herbera | www.estudioherbera.com
Interiorismo:The Atar | www.theatar.com.ar


















EGGER presenta su Colección Decorativa 26+, un espacio para nuevas sensaciones.

Se inauguró la 20° edición de Estilo Pilar con su nueva propuesta Boutique





















