
Más que un diseño técnico, la Casa Tao en Puerto Vallarta de HW STUDIO nace de la memoria, la filosofía y el deseo de habitar el mundo con atención, convirtiendo la sombra en un refugio emocional inspirado en la estética japonesa.
Una obra del estudio PM Arquitectura que logra espacios luminosos y confortables que pueden ser usados durante todo el año.
Casas26 de noviembre de 2022 Espacio&Confort



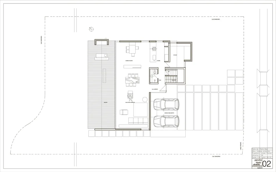
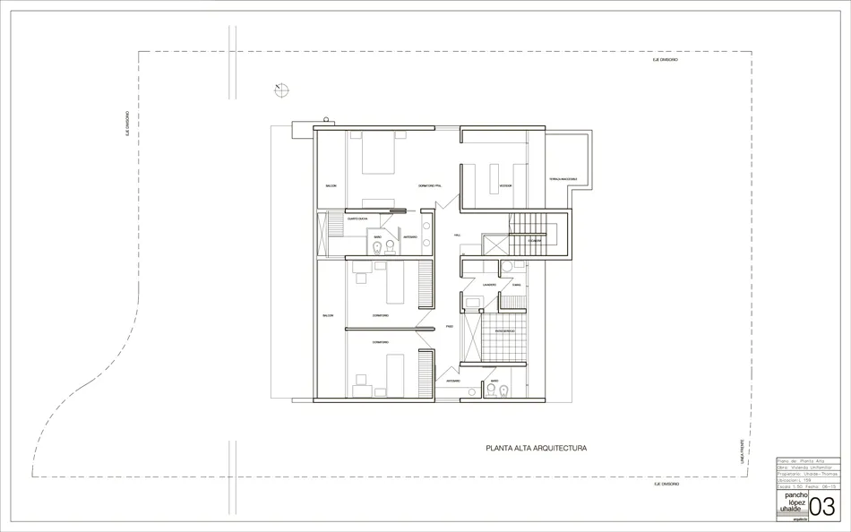
Esta casa para una familia conformada por un matrimonio y sus dos hijas, se armó en dos niveles con la separación de usos tradicional, la parte social en la planta baja y la parte privada en la planta alta, pero con una variación: se decidió ubicar en ella al lavadero y una zona de colgado de ropa además de los 3 dormitorios y sus respectivos baños. Esta opción cada vez gana más adeptos en las viviendas de dos niveles por su practicidad ya que, si pensamos en el “circuito de la ropa”, resulta lo más lógico. Uno se saca la ropa en el baño o el dormitorio, se ducha y lleva la ropa al lavadero. Una vez seca la guarda en los placares del dormitorio. Si el lavadero y lugar de tendido se encuentran en la planta baja el recorrido para hacer esto es mayor demandando más trabajo.
En la planta baja, la parte social de la casa, se encuentran el estar – comedor que forman un gran espacio y la cocina. Esta última, al retranquearse logra una cierta privacidad en relación al gran ambiente.








Completan este nivel un estudio para las tareas profesionales del matrimonio y una galería con parrilla sobre la que los interiores se expanden, abriendo la casa hacia el fondo e incorporando el verde y la pileta, gracias a sus grandes ventanales.
Con la galería se logró un espacio de transición que funciona de fuelle entre el interior y el exterior. Conformada por parasoles metálicos en óxido se consiguió una buena climatización dentro de la casa reforzada por las aberturas en aluminio con dvh.










Para su materialidad se utilizaron todos materiales nobles y de fácil manutención, dejándolos a la vista para que se luzcan tal y como son. Hierro oxidado, mucho hormigón y vidrio, y ladrillos de molde dan un matiz diferente a los diferentes sectores de la casa.
En el interior también se continuó con la idea de usar materiales nobles. Así aparecen mucha madera, el mármol y el vidrio, material fundamental para lograr la relación entre el interior y el exterior que se buscó en esta casa suburbana.
Hacia la calle, la casa se cierra a través de parasoles metálicos evitando las vistas ajenas y se abre hacia el fondo aprovechando la mejor orientación y las vistas hacia el parque.
Fotos: Lean Arlo
PROYECTO
Estudio PM Arquitectura
Arq. Manuel Martínez Quintana
Arq. Pancho López Uhalde
IG: @pm.arquitectura / 221 463 1909 / 463 7721
INFORMACIÓN
Superficie cubierta: 233 m²
Sup. Semicubierta: 74 m²





Más que un diseño técnico, la Casa Tao en Puerto Vallarta de HW STUDIO nace de la memoria, la filosofía y el deseo de habitar el mundo con atención, convirtiendo la sombra en un refugio emocional inspirado en la estética japonesa.

En esta vivienda de fin de semana, la Arq. Gisele Baldoni de Galuss convierte la iluminación en un lenguaje: menos luz, pero mejor pensada, para crear atmósferas que hablan.

Un hogar diseñado a medida, donde la herencia familiar convive con el espíritu relajado del mar y la creatividad.

Entre el bosque y el lago, una casa-puente que une generaciones, naturaleza y vida social.







En esta vivienda de fin de semana, la Arq. Gisele Baldoni de Galuss convierte la iluminación en un lenguaje: menos luz, pero mejor pensada, para crear atmósferas que hablan.

Un café donde supo haber una histórica panadería, un lugar lleno de recuerdos entrelazados con las narraciones de Julio Verne. Funcionalidad, estética y memoria en este espacio que es una pieza de diseño.

El verano reúne factores que lo convierten en una óptima temporada para encarar una obra o reforma: clima propicio, mayor flexibilidad en los tiempos y muchas oportunidades. Porcelanato 45 aporta variedad, asesoramiento y precios que acompañan cada proyecto.

Con base en Hudson, Moderna M3 S.A. se consolida como una empresa constructora referente en el diseño y la ejecución de viviendas unifamiliares, obras en barrios privados y desarrollos residenciales en la zona sur del Gran Buenos Aires.

Faranda inaugura su nueva sucursal en Av. 44 e/149 y 150, San Carlos, acompañada por una renovación completa de su identidad: nueva imagen, propuesta de valor actualizada y una experiencia diseñada para conectar emocionalmente con cada visitante.










