
Lenguaje atemporal



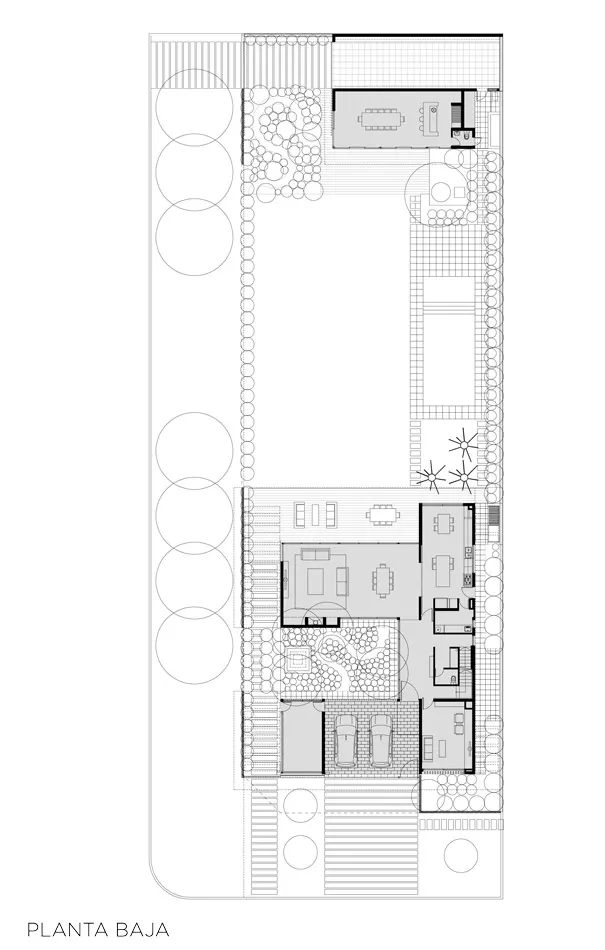
Situada en un barrio en las afueras de la ciudad de La Plata, esta vivienda unifamiliar está construida sobre un lote en esquina de 20 mts x 60 mts.
El Código de Ordenamiento Urbano de la zona en la que se encuentra, exige retiros tanto de los ejes medianeros como de las líneas municipales de ambas calles.
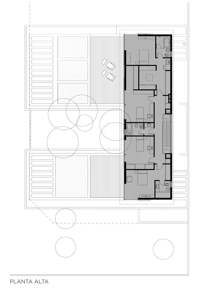
El programa de necesidades de los propietarios constaba de una vivienda de 4 dormitorios desarrollada en 2 plantas, que haga especial hincapié en la flexibilidad de uso de los espacios públicos cubiertos (estar comedor – cocina) y descubiertos (patio central y galería) y su relación con los espacios exteriores.
Con estas premisas de proyecto el estudio desarrolló una planta baja en “U” en torno a un patio central, permitiendo transparencias visuales cruzadas en todo el predio, donde se desarrollan los sectores sociales; y una planta alta compacta como contenedor de la zona privada de la vivienda.






















La materialidad se define con la utilización de distintas texturas de hormigón visto en losas y tabiques, muros blancos, carpintería exterior de PVC y parasoles fijos y móviles, como elementos de control solar y cerramiento.
En esta vivienda se mantuvieron ciertas pautas proyectuales que se han desarrollado en otras obras del estudio, como ser la búsqueda de continuidad y flexibilidad espacial interior-exterior a través de grandes paños vidriados y amplias galerías; la resolución estructural-constructiva como eje del diseño; y el desarrollo exhaustivo del proyecto ejecutivo como elemento fundamental del proceso de diseño.
En el proyecto de esta vivienda los arquitectos trataron de sintetizar los diferentes principios que definen su accionar arquitectónico: La volumetría simple, sencilla y de líneas puras; el lenguaje atemporal y de sobrio diseño; el desarrollo del detalle, guardando correlación entre el todo y las partes; y la cuidada elección y utilización de materiales, colores y texturas.
Fotos: Luis Barandiarán
PROYECTO
Gianserra + Lima Arquitectos
Arqs. Fernando Gianserra, Luis Gonzalo Lima
www.v2arquitectos.com
INFORMACIÓN
Ubicación: La Plata. Pcia Buenos Aires.
Año de construcción: 2017
Superficie construida: 400 m2












































