
Casa Box



El principal desafío fue construir una casa de esquina, con dos fachadas recostadas en los vecinos, que aprovechara al máximo el terreno y la luz natural, preservando la privacidad desde la calle y, al mismo tiempo, dialogando con la volumetría de la manzana existente. Así, la casa Box establece tres tipos de relación con el entorno inmediato.
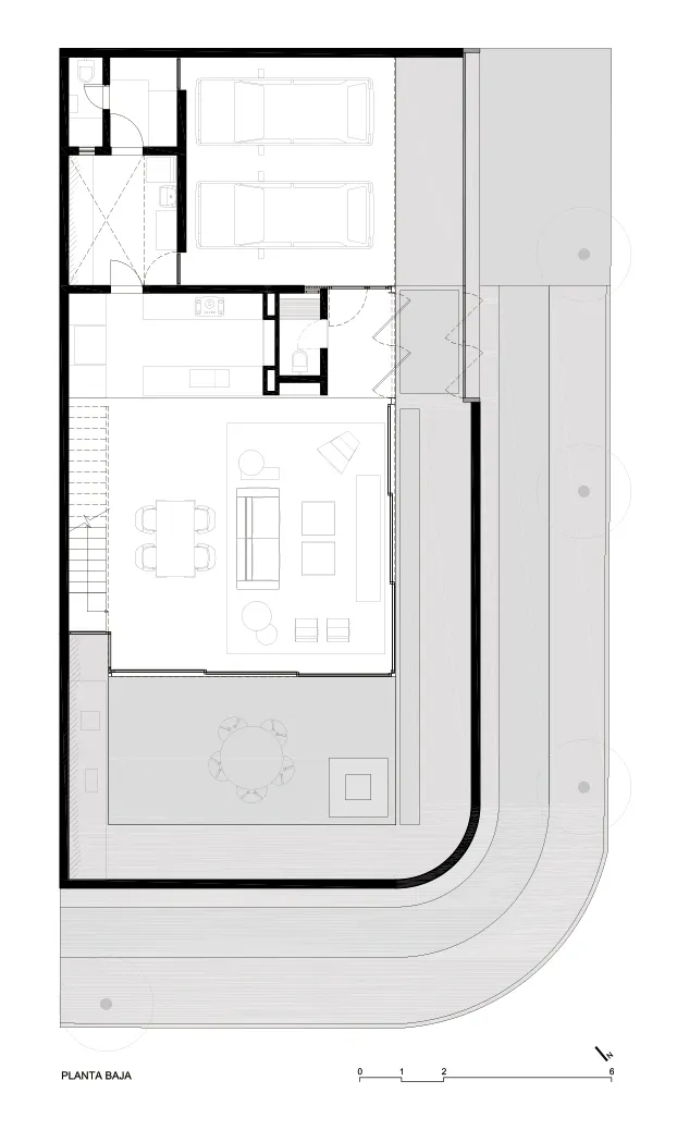
La planta baja puede abrirse completamente para que el paisajismo tropical del terreno de 10x20m se integre al espacio interno, donde el límite entre dentro y fuera es diluido. El equilibrio se alcanza a partir del momento en que el acero industrializado encuentra la vegetación orgánica en controladas proporciones. Es importante resaltar que esta planta es toda libre, con excepción de la cocina y lavabo que funcionan como una "isla funcional", y sirven para separar las áreas de estar y de servicio.























En el primer piso, ocurre casi lo opuesto. La mutabilidad de la fachada permite cerrarla totalmente o abrirla a través de puertas de acero que bloquean la incidencia solar directa, garantizan la privacidad de las miradas provenientes de la calle pública, potencian la seguridad y aíslan acústicamente el área íntima de los ruidos de la calle y también del aeropuerto que está cerca. El material se justifica por su resistencia y gran durabilidad, (acero con pintura electrostática) sin perjudicar la sostenibilidad del proyecto y garantizando una intensa ventilación natural interna.
El techo jardín, en el tercer piso, funciona como un mirador urbano, pues permite la observación del nacer / puesta del sol y el entorno a partir del punto alto en un barrio compuesto sólo por casas bajas.
La determinación de la volumetría fue casi como un "encaje" en la manzana existente, pues se ha tenido en cuenta las alturas de los vecinos y sus retrocesos para evitar medianeras y se demostró respeto al entorno. Se partió del perímetro máximo permitido por ley y subrayamos el patio interior, la circulación vertical y los lucernarios. Así, garantizamos iluminación y ventilación natural a todos los ambientes de la casa, sin excepción, a pesar de tener dos de sus fachadas pegadas a los vecinos y sin aberturas.
Las escaleras sirven de intervalo entre la propia casa y uno de los vecinos. La intensa luz que viene de la cubierta de vidrio y de la fachada retranqueada, hace de fuelle entre las dos casas, apreciando los espacios de permanencia en todos los pisos. Fue el artificio adoptado para suavizar el inevitable toque entre las dos construcciones y, de una forma respetuosa, manejar el existente. En todos los demás puntos de contacto con el vecino, se crearon jardines verticales.

















La estructura de la casa es metálica, con excepción de las losas en hormigón, por la esbeltez dimensional y la rapidez constructiva. El arquitecto / morador quiso acortar el período de obra, pues tenía prisa para mudarse. Este hecho todavía fue potenciado por la adopción de elementos prefabricados, aunque sólo el 5% de las residencias en Brasil usen esa técnica.
Es importante resaltar los dos pilares metálicos que componen los principales vértices de la casa, los pilares cruciformes. Esta forma suaviza su presencia, pues transforman la masa visual común de un pilar, en líneas esbeltas verticales. Y esto se ve reforzado por la integración que tiene con la carpintería de la casa.
La funcionalidad de la casa está basada en los conceptos de la arquitectura moderna. Para una posible transformación en el futuro, la casa ya contiene la infraestructura necesaria para la conversión de la sala superior en dos suites completas. Así, los dos lucernarios existentes, serían responsables por la iluminación y ventilación de estos dos posibles baños. La tercera apertura, sobre las duchas de la suite, permite la salida del vapor y la entrada de luz solar al espacio. Cada una de ellas está "orientada" de forma distinta, haciendo que la intensidad solar sea distinta en cada una y eso va cambiando a lo largo del día.
Los materiales son sinceros. El vidrio, madera y acero se muestran en su esencia, sin intermediarios. La decoración de interiores también fue propuesta por el mismo arquitecto y establece un diálogo armonioso con la propia arquitectura que propuso.
El techo jardín y piso elevado contribuyen a la sostenibilidad de la residencia, pues refrescan todo el piso superior, importante en un país de intenso verano. El calentamiento del agua ocurre a través de la energía solar, el sistema de ventilación es cruzado, las grandes aberturas y el abundante paisaje propuesto internamente al terreno, externamente en la acera pública y jardines verticales hacen que la casa Box esté equilibrada energéticamente en su contexto.
Esta casa es, sin dudarlo, una propuesta contemporánea discreta a las miradas públicas, que respeta el lugar, el clima y aprovecha de las creencias del arquitecto / morador para definir espacios.
Fotos: Pedro Kok
PROYECTO
Diseño de Arquitectura, lumiotecnica y diseño de interiores: FCStudio
www.fcstudio.com.br
Paisajismo: Rossin + Tramontina






























































