
Diseño espejado y materiales con memoria: arquitectura que conecta con lo cotidiano.
**identidad, contacto con el verde y privacidad son las premisas de esteproyecto. un conjunto de viviendas, obra de los arquitectos marcos alessio yromina stoichevich.
Arquitectura07 de julio de 2015 Espacio&Confort



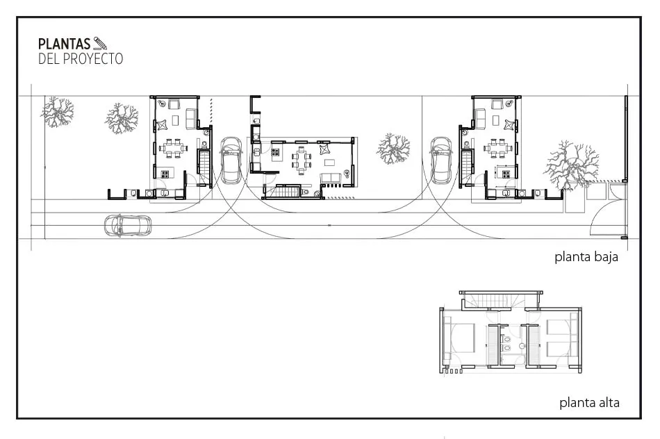
Este conjunto de viviendas responde a las nobles premisas constructivas que erigen la filosofía del estudio Alessio Stoichevich Arquitectos. Un proyecto que edifica junto a su contexto un todo, “como un cuerpo que funciona con buena salud”, como argumentan los profesionales de este estudio: “Nos ocupamos tanto del escenario de la arquitectura, porque admiramos la visión de quienes van más allá de lo que construyen y se preocupan por la convivencia con el lugar, quienes sucumben a la emocionante perfección del paisaje natural y casi armoniosamente, lo respetan y lo cuidan”.
Como una declaración de principios, en esta obra de los arquitectos Marcos Alessio y Romina Stoichevich que se alza en City Bell, las premisas señaladas se hacen presentes en cada detalle del diseño.
Así, este conjunto de viviendas de 300 m² se erige en un barrio residencial caracterizado por sus grandes superficies de verde y casas aisladas, en las afueras de la Ciudad de La Plata; sobre un lote ubicado estratégicamente, apenas a una cuadra del Camino Centenario y a una decena del centro de la localidad, dotado de una forestación añeja invaluable que dan cobijo e identidad particular a cada una de las tres unidades que integran este conjunto.












Fotos: Arq. Heber Guruciaga
[ INFORMACIÓN ]
Tipo de proyecto: Vivienda multifamiliar
Ubicación: City Bell,
Realización: 2014/2015
Superficie construida: 270 m
[ PROYECTO ]
ESTUDIO ALESSIO STOICHEVICH
Arq. Marcos Alessio
Arq. Romina Stoichevich
www.as-arquitectos.com.ar















Diseño espejado y materiales con memoria: arquitectura que conecta con lo cotidiano.

Un edificio de vivienda en La Plata que se apoya en la claridad estructural, la calidez material y la integración urbana.

Cada decisión en este proyecto fue concebida bajo un mismo enfoque: HitzigMilitello Arquitectos buscó crear un oasis botánico emplazado en pleno caos urbano. Esta línea rectora marcó un norte que determinó cada una de las definiciones proyectuales, desde lo espacial arquitectónico, pasando por la elección de materiales, equipamiento, recursos gráficos y, principalmente, las intervenciones paisajísticas.

Una obra pensada para aprender, investigar y conectar: la nueva sede universitaria que conjuga tecnología, sustentabilidad y comunidad.







Un recubrimiento acrílico antideslizante, versátil y resistente, pensado para prevenir accidentes.

Invertir en infraestructura es clave para la productividad, la equidad social y el crecimiento del país. Extracto de la entrevista a Martín Russo, de LFR Constructora.

Distribuidora Galuss, firma especializada en soluciones lumínicas para proyectos profesionales, anuncia la incorporación de dos marcas icónicas del diseño internacional: Luceplan y Artemide.

Tendencias, tecnologías e Innovación en Real Estate y Arquitectura. Jornada de capacitación para desarrollador, inmobiliarios y arquitectos.

El mercado inmobiliario argentino comienza a dar señales nítidas de reactivación tras años de volatilidad. La nueva fase se explica por la convergencia de cuatro vectores macroeconómicos: baja de tasas, dólar estable, riesgo país en descenso y financiamiento más accesible para el sector público y las empresas. Este “combo” no sólo mejora las expectativas: abarata el costo del capital, sanea balances y vuelve a poner en marcha la inversión privada.










