
Más que un diseño técnico, la Casa Tao en Puerto Vallarta de HW STUDIO nace de la memoria, la filosofía y el deseo de habitar el mundo con atención, convirtiendo la sombra en un refugio emocional inspirado en la estética japonesa.
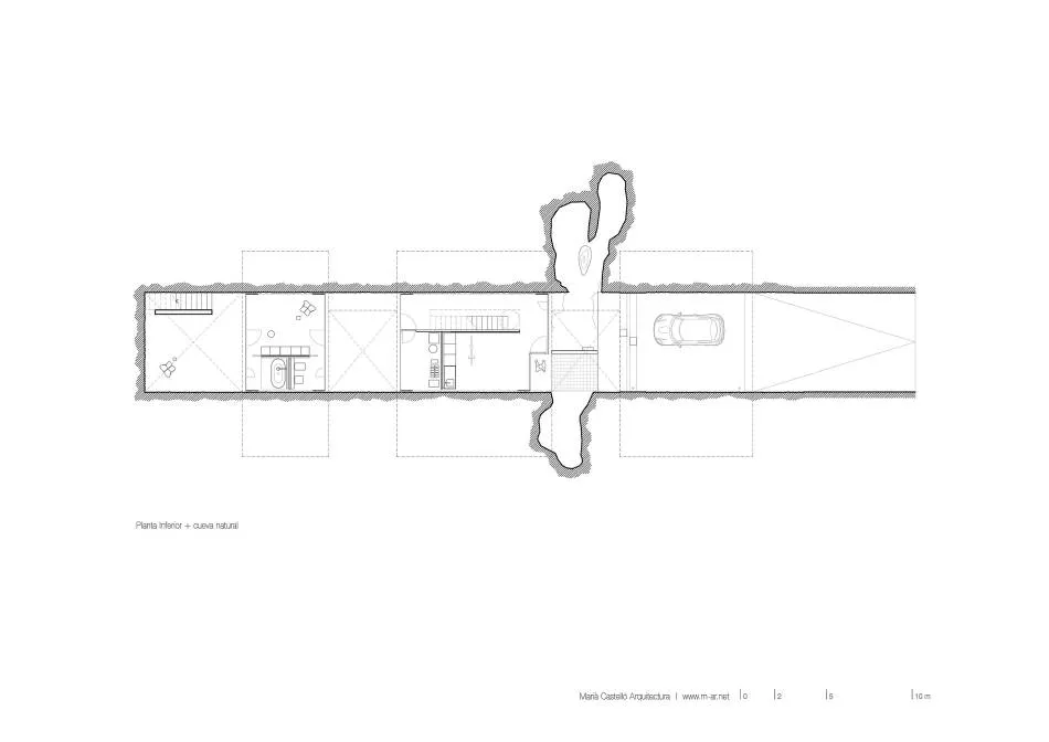
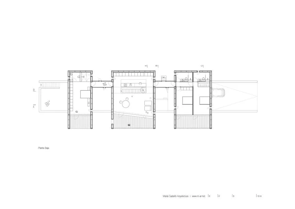
**formentera, españa. una vivienda esculpida en la roca junto al mar por elgran arquitecto español marià castelló martínez.
Casas11 de julio de 2023 Espacio&Confort



Bosc d’en Pep Ferrer es el topónimo tradicional de una parcela de gran extensión ubicada junto a la playa de Migjorn, en la costa Sur de la isla de Formentera. En ella hay una lugar que desata el deseo de habitar una onírica panorámica donde el horizonte solo queda recortado por la bella silueta de la Torre des Pi des Català, erigida en 1763.
El proyecto se gesta en la dualidad entre lo telúrico y lo tectónico. Lo pesado y lo ligero. Tierra y aire. Lo artesanal y lo tecnológico. Esfuerzo a compresión y resistencia a tracción.
La roca, que aflora superficialmente en el lugar elegido, se ha esculpido como si de una escultura se tratase, ofreciendo un vacío que recuerda a las canteras de piedra de ‘marès’. Una espacio materializado con una sola piedra. Monolítico. Megalítico. Estereotómico.






















Más que un diseño técnico, la Casa Tao en Puerto Vallarta de HW STUDIO nace de la memoria, la filosofía y el deseo de habitar el mundo con atención, convirtiendo la sombra en un refugio emocional inspirado en la estética japonesa.

En esta vivienda de fin de semana, la Arq. Gisele Baldoni de Galuss convierte la iluminación en un lenguaje: menos luz, pero mejor pensada, para crear atmósferas que hablan.

Un hogar diseñado a medida, donde la herencia familiar convive con el espíritu relajado del mar y la creatividad.

Entre el bosque y el lago, una casa-puente que une generaciones, naturaleza y vida social.







En Lomas de Zamora, a solo 15 cuadras de la estación, Gini S.A. se posiciona como una empresa en constante crecimiento, dedicada a brindar materiales para la construcción que combinan calidad, variedad y precios accesibles.

Con base en Hudson, Moderna M3 S.A. se consolida como una empresa constructora referente en el diseño y la ejecución de viviendas unifamiliares, obras en barrios privados y desarrollos residenciales en la zona sur del Gran Buenos Aires.

Las cubiertas exteriores también pueden convivir armoniosamente con lo natural.

Faranda inaugura su nueva sucursal en Av. 44 e/149 y 150, San Carlos, acompañada por una renovación completa de su identidad: nueva imagen, propuesta de valor actualizada y una experiencia diseñada para conectar emocionalmente con cada visitante.

Tecnología nacional y accesible que facilita el mantenimiento de piscinas y que le aporta valor a todo proyecto.










