
Mirando más allá
Espacio&Confort


Esta vivienda pensada para alquiler temporal, se ubica en la provincia de Córdoba, en un barrio cerrado de la ciudad de Alta Gracia, en el Valle de Paravachasca. Cerros bajos que lo rodean, vegetación nativa propia del bosque serrano, un arroyo que lo atraviesa y la cancha de golf, describen paisajísticamente al barrio.







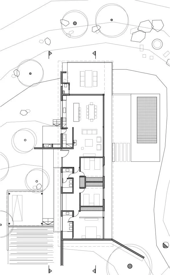
El sitio, al estar ubicado en el sector más alto del loteo, tiene mayor cercanía a los cerros, y al arroyo.De dos mil metros cuadrados, con un desnivel de siete metros en sentido norte sur y de forma irregular, el lote recibe a la arquitectura, la cual se acomoda según la pendiente, sin interrumpir las visuales desde el acceso. Las funciones se resuelven a través de una volumetría simple materializada en dos planos; un plano inclinado, de estructura liviana, que se abre hacia los cerros y uno de piso materializado en un único material, hormigón alisado; ambos planos rematan en voladizo hacia la pendiente, permitiendo que la vivienda balconee sobre las copas de los árboles y se acerque al sonido del arroyo.





2

Esta vivienda de planta rectangular, ubicada en sentido norte sur, de 9 metros de ancho por 30 metros de longitud, de programa sencillo, se organiza sobre un eje de circulación lineal al cual se llega, por una rampa descendiendo a modo de recorrido. Desde dentro de la vivienda, nos encontramos con un imponente paisaje de cerros, pasturas y vegetación achaparrada.
Un muro de piedra, con aventanamiento horizontal, contiene el área de servicio; dejando galería, estar, comedor y dormitorios hacia las mejores visuales, esta fachada se resuelve a través de grandes planos vidriados.
El sistema constructivo utilizado es tradicional de mampostería de ladrillo cerámicos, con una cubierta liviana de estructura metálica conformada principalmente por dos perfiles W paralelos, cielorraso de durlock en su interior y madera de kiri en voladizos y galería. Algunos planos se resolvieron en hormigón visto y otros fueron trabajados con piedras de la zona.
Fotos: Arq. Gonzalo Viramonte | Ig:@gonzaloviramonte
PROYECTO
AP arquitectos, Altamira M. Laura,Paschetta Aldo
Ig: @arquitectos.ap
INFORMACIÓN
Superficie construida: 303.00m2
Ubicación: Alta Gracia, Provincia de Córdoba, Argentina.






































