
Lujo y felicidad



Ya lo dijo Jorge Luis Borges: “El lujo es el comentario visible de una felicidad”, y no otra cosa que hacer visible la felicidad de quienes habitan esta imponente vivienda fue lo que lograron los arquitectos a cargo de su diseño. El medio fue el detalle. Esto se vuelve incluso más cierto en la medida en que también los propietarios participaron de manera activa en el proyecto. La iluminación, por ejemplo, estuvo enteramente a cargo de ellos.
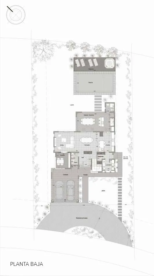
La casa se encuentra, como se menciona arriba, en Terralagos, uno de los barrios cerrados de mayor crecimiento de Canning, Ezeiza, cuyo merecido renombre se apoya en parte en que su paisaje es beneficiado por la presencia de la laguna artificial Cristal Lagoon, de gran extensión. Fue proyectada en el Barrio House, -a poca distancia de los accesos y con una fabulosa vista a la laguna- sobre un lote de 22 metros de frente por 42 metros de fondo.





La vivienda cuenta con dos plantas y algo más de 250 m² cubiertos y 50 m² semicubiertos. Sus líneas rectas y una volumetría resaltada por la alternancia de revestimientos (piedra y hormigón en nude) sumadas a la considerable proporción de vidrio, la inscriben dentro de lo más granado del estilo contemporáneo.
Guardando el retiro de calle consensuado, una rotonda de adoquines que insinúa un aire apenas francés refrendado por el techo y las barandas, conduce hacia el garaje apto para dos autos que, economizando espacio, corresponde a la terraza de la suite del piso superior.
El garaje está cerrado en vidrio y plantado a la izquierda de la construcción; hacia el centro, se encuentra el acceso peatonal que comunica con el hall distribuidor en doble altura del que pende una araña de generosas proporciones traída por el propietario especialmente desde China.





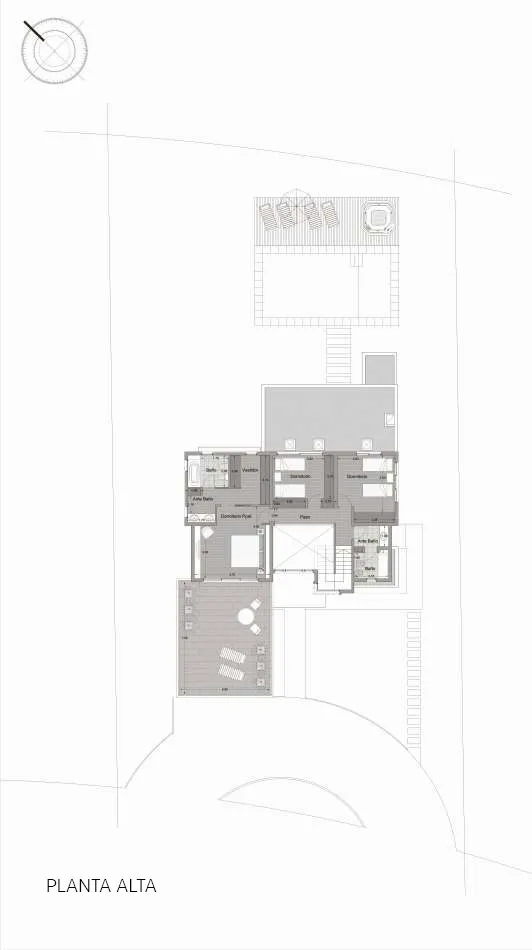
Cabe aclarar aquí que la división entre ambas plantas es clásica: hace sistema con la idea funcional que reserva los altos a las habitaciones y baños; la conexión con el ras para las áreas de uso más social.
Una amplia nave compuesta por un estar-comedor y una cocina separada de ellos por barra, dependencias de servicio y escritorio completan el área cubierta de la planta baja. Hacia atrás, se destaca la galería quincho que se incorpora a la casa. La pileta de natación está estratégicamente ubicada para que el solárium sea la expansión del living.
En la planta alta se ubicaron los 3 dormitorios. La suite es la que cuenta con la gran terraza que da lugar al garaje y desde la cual se visualiza la laguna; también tiene un amplio vestidor y baño privado.





Los revestimientos en piedra, barandas y frente de parrilla en acero inoxidable son sólo algunos de los detalles que se destacan de la casa.
El amoblamiento acorde a las dimensiones y estilos de cada ambiente, los materiales, la iluminación, pero sobre todo lo plácido del diseño, hacen pensar que esta casa se hizo con lujo de imaginación y felicidad.
Fotos: Leandro Arévalo
Texto: Soledad Franco
[ INFORMACIÓN ]
Tipo de proyecto: Vivienda unifamiliar
Ubicación: Canning, Ezeiza
Año: 2014 – 2015
Sup. construida: 250 m²/ 50m² semicubiertos.
[ PROYECTO ]
Estudio Juárez Ocampo.
13 Nro 99 Esq. 34 Of. 101. La Plata.
0221-425-3722
www.juarezocampo.com.ar




























EGGER presenta su Colección Decorativa 26+, un espacio para nuevas sensaciones.

Se inauguró la 20° edición de Estilo Pilar con su nueva propuesta Boutique

























