
Entre el bosque y el lago, una casa-puente que une generaciones, naturaleza y vida social.
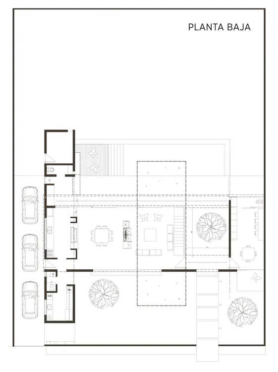
**gorina. la obra del estudio lescano-puente se encuentra a 10 km del centrode la ciudad de la plata. su construcción contuvo un doble desafío: conectarel espacio doméstico con el de trabajo y lograr que esa conexión funcione comofrontera.
Casas01 de noviembre de 2017 Espacio&Confort



Sobre un terreno de 25 por 33 metros, rodeada de pinos y casas bajas, se sitúa la obra realizada por los arquitectos Juan Manuel Puente y Martín Lescano. Líneas rectas, hormigón y tablas de guayubira, una combinación moderna y minimalista que hacen de esta casa-estudio de dos cuerpos, un espacio óptimo para el trabajo y el disfrute.
Desde su ingreso, a través de un acceso peatonal ubicado debajo de un patio semi-cubierto, se puede ver -sin interrupciones- el fondo del lote. Los vidrios, aquí, cumplen un rol fundamental; podría afirmarse que son los protagonistas, ya que toda la planta baja goza de una gran amplitud y luminosidad gracias a ellos. Tal es así que, vista desde el fondo del jardín, la casa pareciera diluirse en el verde.



























Entre el bosque y el lago, una casa-puente que une generaciones, naturaleza y vida social.

Una vivienda de Fran Silvestre Arquitectos que convierte la sombra en refugio y la luz en paisaje.

La casa diseñada por MORA HUGHES arquitectos en Mendoza combina estética nórdica, la calidez de la madera y la música que marca el pulso de cada encuentro.

Estuvimos con la Arq Carolina Esnaola recorriendo una obra que realizó en el Quimilar. Un patio interno que divide el ambiente principal y llena de luz la casa.







Un recubrimiento acrílico antideslizante, versátil y resistente, pensado para prevenir accidentes.

Invertir en infraestructura es clave para la productividad, la equidad social y el crecimiento del país. Extracto de la entrevista a Martín Russo, de LFR Constructora.

Distribuidora Galuss, firma especializada en soluciones lumínicas para proyectos profesionales, anuncia la incorporación de dos marcas icónicas del diseño internacional: Luceplan y Artemide.

Tendencias, tecnologías e Innovación en Real Estate y Arquitectura. Jornada de capacitación para desarrollador, inmobiliarios y arquitectos.

El mercado inmobiliario argentino comienza a dar señales nítidas de reactivación tras años de volatilidad. La nueva fase se explica por la convergencia de cuatro vectores macroeconómicos: baja de tasas, dólar estable, riesgo país en descenso y financiamiento más accesible para el sector público y las empresas. Este “combo” no sólo mejora las expectativas: abarata el costo del capital, sanea balances y vuelve a poner en marcha la inversión privada.










