
Entre el bosque y el lago, una casa-puente que une generaciones, naturaleza y vida social.
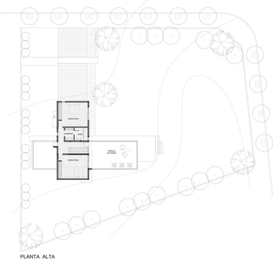
Mina Clavero, Córdoba. Esta casa del Estudio Di-AM Arquitectura separa suuso en dos niveles: la planta baja para sus moradores y la alta para sushuéspedes.
Casas22 de febrero de 2021 Espacio&Confort



Enmarcada en el imponente paisaje de las altas cumbres, en el maravilloso Valle de Traslasierra, la ciudad de Mina Clavero conforma uno de los mayores atractivos turísticos de la provincia de Córdoba, valorada y apreciada por las excelentes cualidades naturales de sus ríos y sus sierras.
En ese contexto de fuerte predominio natural, y en un entorno urbano de incipiente desarrollo, se localiza el lote, caracterizado por su forma irregular, con una topografía con suave pendiente y con la presencia de vegetales autóctonos a preservar.


























Entre el bosque y el lago, una casa-puente que une generaciones, naturaleza y vida social.

Una vivienda de Fran Silvestre Arquitectos que convierte la sombra en refugio y la luz en paisaje.

La casa diseñada por MORA HUGHES arquitectos en Mendoza combina estética nórdica, la calidez de la madera y la música que marca el pulso de cada encuentro.

Estuvimos con la Arq Carolina Esnaola recorriendo una obra que realizó en el Quimilar. Un patio interno que divide el ambiente principal y llena de luz la casa.







Un recubrimiento acrílico antideslizante, versátil y resistente, pensado para prevenir accidentes.

Invertir en infraestructura es clave para la productividad, la equidad social y el crecimiento del país. Extracto de la entrevista a Martín Russo, de LFR Constructora.

Distribuidora Galuss, firma especializada en soluciones lumínicas para proyectos profesionales, anuncia la incorporación de dos marcas icónicas del diseño internacional: Luceplan y Artemide.

Tendencias, tecnologías e Innovación en Real Estate y Arquitectura. Jornada de capacitación para desarrollador, inmobiliarios y arquitectos.

El mercado inmobiliario argentino comienza a dar señales nítidas de reactivación tras años de volatilidad. La nueva fase se explica por la convergencia de cuatro vectores macroeconómicos: baja de tasas, dólar estable, riesgo país en descenso y financiamiento más accesible para el sector público y las empresas. Este “combo” no sólo mejora las expectativas: abarata el costo del capital, sanea balances y vuelve a poner en marcha la inversión privada.










