
Entre el bosque y el lago, una casa-puente que une generaciones, naturaleza y vida social.
**la plata. el estudio alessio stoichevich es el responsable de esta obra deremodelación que priorizó la creación de ambientes conectados con el entorno yel ingreso de la luz natural a la vivienda.
Casas18 de junio de 2019 Espacio&Confort



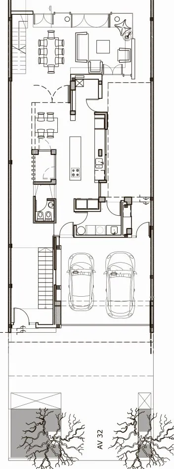
Una reforma siempre supone un desafío donde los arquitectos a cargo de la obra deben lograr capitalizar las demandas de los moradores vinculadas a nuevas formas de sentir, transitar y habitar una vivienda.
En esta nota compartimos una obra de refacción y ampliación que se llevó a cabo en una vivienda urbana entre medianeras. La propuesta se basó en una transformación de la casa, buscando como objetivos la relación visual con el entorno y un parque propio, por un lado. La otra de las premisas fue lograr la iluminación natural de todos los ambientes, que fue logrado a través de propuestas arquitectónicas modernas como patios internos, y resoluciones como diferencias de alturas en cubiertas.















[ PROYECTO ]
Estudio Alessio Stoichevich
Arq. Marcos Alessio - Arq. Romina Stoichevich
www.as-arquitectos.com.ar
221-154553202
[ INFORMACIÓN ]
Tipo de proyecto: Vivienda unifamiliar
Ubicación: La Plata
Sup. de la casa: 370m²








Entre el bosque y el lago, una casa-puente que une generaciones, naturaleza y vida social.

Una vivienda de Fran Silvestre Arquitectos que convierte la sombra en refugio y la luz en paisaje.

La casa diseñada por MORA HUGHES arquitectos en Mendoza combina estética nórdica, la calidez de la madera y la música que marca el pulso de cada encuentro.

Estuvimos con la Arq Carolina Esnaola recorriendo una obra que realizó en el Quimilar. Un patio interno que divide el ambiente principal y llena de luz la casa.







Un recubrimiento acrílico antideslizante, versátil y resistente, pensado para prevenir accidentes.

Invertir en infraestructura es clave para la productividad, la equidad social y el crecimiento del país. Extracto de la entrevista a Martín Russo, de LFR Constructora.

Distribuidora Galuss, firma especializada en soluciones lumínicas para proyectos profesionales, anuncia la incorporación de dos marcas icónicas del diseño internacional: Luceplan y Artemide.

Tendencias, tecnologías e Innovación en Real Estate y Arquitectura. Jornada de capacitación para desarrollador, inmobiliarios y arquitectos.

El mercado inmobiliario argentino comienza a dar señales nítidas de reactivación tras años de volatilidad. La nueva fase se explica por la convergencia de cuatro vectores macroeconómicos: baja de tasas, dólar estable, riesgo país en descenso y financiamiento más accesible para el sector público y las empresas. Este “combo” no sólo mejora las expectativas: abarata el costo del capital, sanea balances y vuelve a poner en marcha la inversión privada.










