
Entre el bosque y el lago, una casa-puente que une generaciones, naturaleza y vida social.
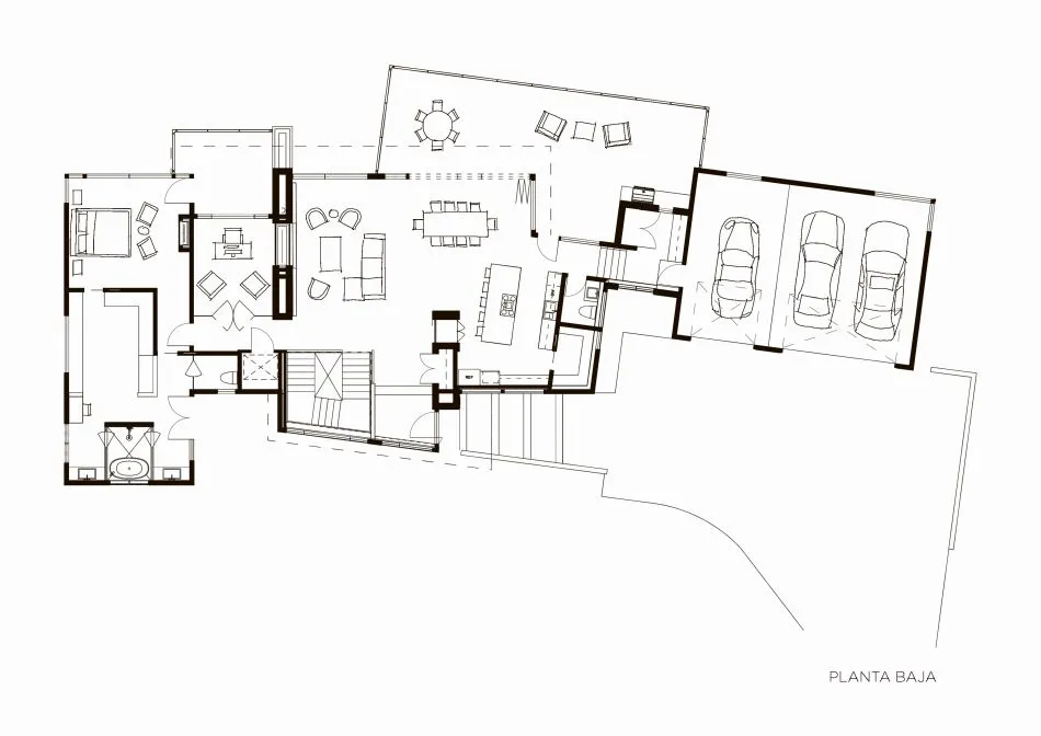
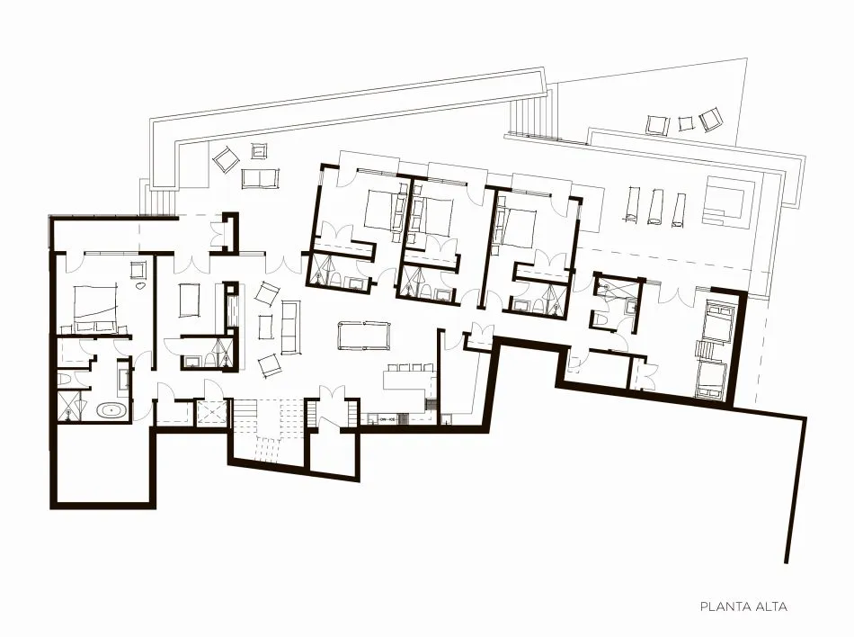
**estados unidos. ubicada sobre la base del cerro two creeks en la ciudad desnowmass village, a las afueras de aspen, colorado, esta residencia de ski-iny ski-out es un paraíso para los amantes de las actividades al aire libre.
Casas01 de agosto de 2019 Espacio&Confort



Snowmass Village es un pueblo ubicado en el condado de Pitkin en el estado de Colorado. Allí se emplaza esta vivienda, obra del estudio Ka Designworks. Bajo la filosofía “nuestras vidas toman forma por los espacios que habitamos”, los arquitectos proponen soluciones inteligentes, ya sea en el diseño arquitectónico como de interiores.



























Entre el bosque y el lago, una casa-puente que une generaciones, naturaleza y vida social.

Una vivienda de Fran Silvestre Arquitectos que convierte la sombra en refugio y la luz en paisaje.

La casa diseñada por MORA HUGHES arquitectos en Mendoza combina estética nórdica, la calidez de la madera y la música que marca el pulso de cada encuentro.

Estuvimos con la Arq Carolina Esnaola recorriendo una obra que realizó en el Quimilar. Un patio interno que divide el ambiente principal y llena de luz la casa.







Un recubrimiento acrílico antideslizante, versátil y resistente, pensado para prevenir accidentes.

Invertir en infraestructura es clave para la productividad, la equidad social y el crecimiento del país. Extracto de la entrevista a Martín Russo, de LFR Constructora.

Distribuidora Galuss, firma especializada en soluciones lumínicas para proyectos profesionales, anuncia la incorporación de dos marcas icónicas del diseño internacional: Luceplan y Artemide.

Tendencias, tecnologías e Innovación en Real Estate y Arquitectura. Jornada de capacitación para desarrollador, inmobiliarios y arquitectos.

El mercado inmobiliario argentino comienza a dar señales nítidas de reactivación tras años de volatilidad. La nueva fase se explica por la convergencia de cuatro vectores macroeconómicos: baja de tasas, dólar estable, riesgo país en descenso y financiamiento más accesible para el sector público y las empresas. Este “combo” no sólo mejora las expectativas: abarata el costo del capital, sanea balances y vuelve a poner en marcha la inversión privada.










