
Arquitectura brutalista
Espacio&Confort


Esta casa se encuentra en el exclusivo country Grand Bell, ubicado en City Bell, a pocos minutos de la ciudad de La Plata. Está asentada sobre un terreno de 1006 m2 y cuenta con un entorno paisajístico excepcional.
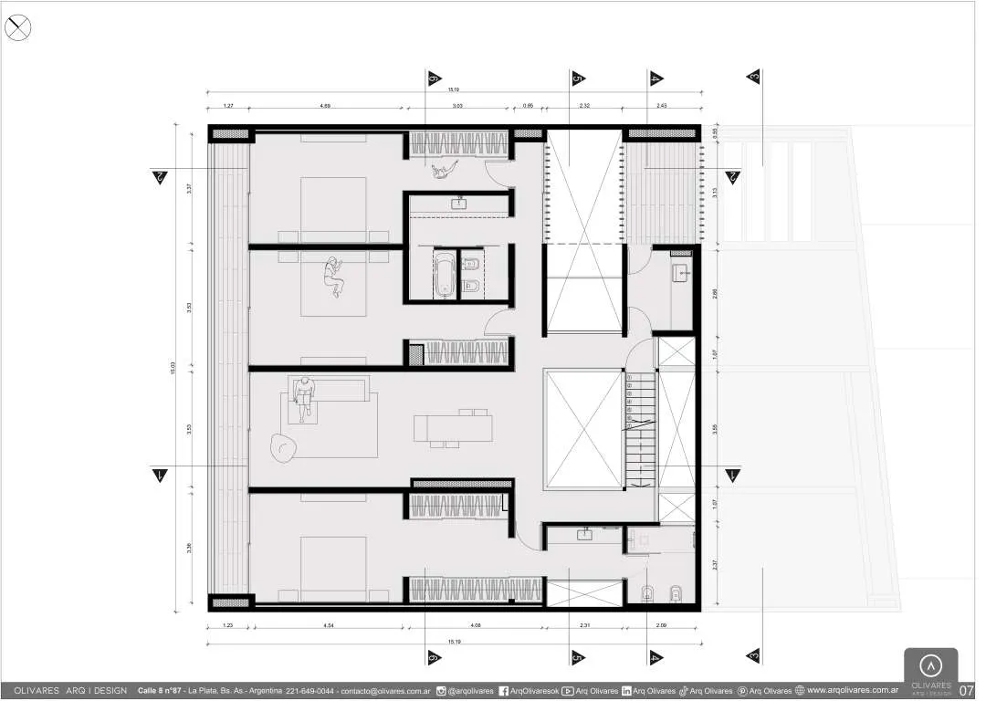
El diseño arquitectónico se basa en dos ejes principales. Uno de ellos marca el acceso principal, mientras que el otro actúa como un elemento verde que une las diferentes áreas de la vivienda. En la planta baja, se encuentran la cochera y el estudio hacia el frente, y las áreas de recreación diurna hacia la parte trasera del terreno.






En cuanto a su estructura, destaca un volumen de hormigón que compone la planta alta y parece flotar sobre una cinta de madera que marca la entrada. En esta planta se ubican los dormitorios y una sala de juegos, con perforaciones para permitir entrada natural de luz y potenciar la conexión con el patio interior.
Además, en uno de los laterales encontramos una cinta flotante que crea un mueble abrazando el área del salón y galería exterior. Las columnas metálicas soportan 40 toneladas con un diámetro seccional reducido para dar solidez a los planos vidriados en planta baja.
La propiedad cuenta con domótica para controlar música, televisores timbre e iluminación programada. Además posee parasoles para control solar y evitar sobrecalentamiento de la temporada estival.
Esta casa ofrece versatilidad espacial constante entre interiores exteriores gracias a su concepto principal: crear volúmenes flotantes mediante columnas metálicas sólidas presentes en toda su estructura. El uso predominante del hormigón, madera y vidrio realza sus dimensiones brutalistas; mientras que su patio central circundado por toda vivienda le brinda versatilidad espacial constante entre interiores exteriores.•
PROYECTO
OLIVARES ARQ DESIGN
Equipo: Arq. Olivares Juan Manuel Romero,
José Carlos Pulgar, Alan Gabriel Rodriguez Granados, OnaLihuen Manson, Agustina.
Estudio: Calle 8 nº87 - La Plata - Bs. As.
Tel:221 - 649 - 0044
Ig: @olivares.arqdesign
Web: www.olivaresarqdesign.ar













































