
Más que un diseño técnico, la Casa Tao en Puerto Vallarta de HW STUDIO nace de la memoria, la filosofía y el deseo de habitar el mundo con atención, convirtiendo la sombra en un refugio emocional inspirado en la estética japonesa.
Un proyecto de A4estudio en un barrio cerrado de Mendoza con una materialidad contundente que busca dialogar con su entorno natural.
Casas14 de septiembre de 2024
Espacio&Confort



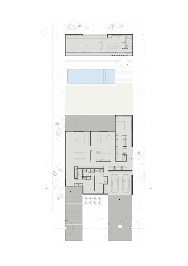
El proyecto está ubicado en un área suburbana de la ciudad de Mendoza dentro de un barrio cerrado en un terreno plano con vistas a la cordillera.
Es una vivienda de cuatro dormitorios que incorpora un quincho/ parrilla en la parte posterior del terreno y parte con la condición de lograr doble altura en los espacios principales forzándonos a partir desde un principio al límite de los factores de ocupación del terreno y llevándonos inevitablemente a la reflexión sobre un proyecto compacto en dos niveles.





La decisión es la cerrar el proyecto hacia la calle (sur) y situar en este punto espacios de servicio y apoyo. Abriendo los principales al norte logrando una doble altura en galería y estar comedor principal.
En la búsqueda de una necesaria regulación del asoleamiento del norte se resuelve una viga vieren del de 16 metros de largo que además de resolver los apoyos de la cubierta en este punto conforma una celosía vertical que regula el asoleamiento aportando luces y sombras de acuerdo al la época del año.
Esta apertura hacia el norte en planta baja tiene como complemento una apertura hacia el sur en planta alta. Apertura que en la búsqueda de intimidad se resuelve con una viga de igual dimensión pero en este caso de hormigón. El resultado es un patio donde se abren los espacios íntimos del a planta alta.
En términos de materialidad el proyecto se plantea como dos estratos de materialidades distintas. Un revestimiento asilado el estrato inferior colabora con la condición térmica de los espacios principales. Mientras domina el hormigón a la vista en el estrato superior. Esta estrategia tiene como finalidad regular la escala de la vivienda hacia el exterior y el interior de la misma.•
Fotos: Arq. Luis Abba
PROYECTO
A4estudio
Ubicación: Chacras de Coria / Luján /Mendoza
Año de proyecto/ obra: 2019/ 2023
Superficie: 510 m2
Empresa constructora: Jorge Estrada
Paisajismo: Elina Llaver





Más que un diseño técnico, la Casa Tao en Puerto Vallarta de HW STUDIO nace de la memoria, la filosofía y el deseo de habitar el mundo con atención, convirtiendo la sombra en un refugio emocional inspirado en la estética japonesa.

En esta vivienda de fin de semana, la Arq. Gisele Baldoni de Galuss convierte la iluminación en un lenguaje: menos luz, pero mejor pensada, para crear atmósferas que hablan.

Un hogar diseñado a medida, donde la herencia familiar convive con el espíritu relajado del mar y la creatividad.

Entre el bosque y el lago, una casa-puente que une generaciones, naturaleza y vida social.







En esta vivienda de fin de semana, la Arq. Gisele Baldoni de Galuss convierte la iluminación en un lenguaje: menos luz, pero mejor pensada, para crear atmósferas que hablan.

Un café donde supo haber una histórica panadería, un lugar lleno de recuerdos entrelazados con las narraciones de Julio Verne. Funcionalidad, estética y memoria en este espacio que es una pieza de diseño.

El verano reúne factores que lo convierten en una óptima temporada para encarar una obra o reforma: clima propicio, mayor flexibilidad en los tiempos y muchas oportunidades. Porcelanato 45 aporta variedad, asesoramiento y precios que acompañan cada proyecto.

Con base en Hudson, Moderna M3 S.A. se consolida como una empresa constructora referente en el diseño y la ejecución de viviendas unifamiliares, obras en barrios privados y desarrollos residenciales en la zona sur del Gran Buenos Aires.

Tecnología nacional y accesible que facilita el mantenimiento de piscinas y que le aporta valor a todo proyecto.










