
Más que un diseño técnico, la Casa Tao en Puerto Vallarta de HW STUDIO nace de la memoria, la filosofía y el deseo de habitar el mundo con atención, convirtiendo la sombra en un refugio emocional inspirado en la estética japonesa.
Noruega. una cabaña en las montañas, obra del estudio Mork-Ulnes Architects, que se separa del terreno natural para intervenirlo lo menos posible, permitir la vida por debajo y disfrutar al máximo de las vistas.
Casas09 de julio de 2020 Espacio&Confort



Cásper y Lexie Mork-Ulnes (arquitectos de Mork-Ulnes) han completado recientemente Skigard Hytte, una cabaña de montaña para ellos y sus hijos en Kvitfjell, un skiresort en Noruega que fue desarrollado para los Juegos Olímpicos de Invierno de 1994 en Lillehammer. Encaramado en el borde de una montaña empinada y enmarcando vistas panorámicas del valle y el río debajo, la cabaña se conecta al suelo ligeramente, protegiendo tanto el terreno natural como las ocasionales ovejas que se refugian del clima debajo del casa. Su arquitectura hace referencia a elementos de la tradición vernácula local, reinterpretándolos en un proyecto racional e inventivo. Skigard Hytte es el primer proyecto que Casper y Lexie Mork-Ulnesha han construido para su propia familia. Se conocieron hace 20 años en un viaje de esquí y siempre han compartido un amor por las montañas, la nieve y el esquí. Vivieron en San Francisco y se mudaron a Oslo en 2011, donde convirtieron una antigua sala de billar en un castillo en su residencia. Con dos hijos, Lucia (13) y Finn (11), y el perro Lupo, decidieron construirse una cabaña en las montañas donde puedan abrazar por completo el estilo de vida al aire libre de Noruega. Después de asegurar un sitio de 2,000 m² en la estación de esquí de Kvitfjell, con vistas panorámicas del valle, Casper y Lexie comenzaron a dar forma al retiro que siempre habían deseado para sí mismos: una vivienda principal con un anexo para invitados y con vistas para cada habitación. Para familiarizarse con las cualidades únicas del sitio, acamparon y se despertaron con vacas y ovejas en la puerta de su carpa. De ahí que los arquitectos decidieron darle a la casa una configuración inusual pero directa al levantarla sobre las delgadas patas de CLT (Madera Laminada Cruzada) y permitir que la hierba y las ovejas permanezcan debajo, a la vez que crearon una plataforma de observación elevada sobre la naturaleza. La ubicación de la cabaña le brinda a la familia la oportunidad de salir directamente en esquís para alcanzar las laderas o los talleres y restaurantes.
Fotos: Bruce Damonte














En medio de las pistas de esquí. Ubicado en el lado oeste de Kvitfjell, a 45 minutos al norte de Lillehammer, la cabaña diseñada por Mork-Ulnes Architects se encuentra a 943 metros de altura sobre el nivel del mar, casi en la cima de la montaña (1.039 metros). Su gran altitud significa que la cabina está expuesta a un clima invernal severo, a veces sumergido y otras flotando pacíficamente sobre las nubes en el valle de abajo. Desde noviembre hasta abril, uno puede ponerse los esquís cuesta abajo y llegar al mercado local para ir de compras, y regresar utilizando los ascensores. En los campos cruzados, uno puede conectarse a cientos de kilómetros de senderos, llegando a refugios rurales para descansar y calentarse. En el verano, es posible caminar desde la cabaña hasta la cima de Kvitfjell (que significa Montaña Blanca en noruego) en unos 20 minutos, o llegar a uno de los muchos arroyos y lagos para nadar y pescar. El proyecto es una respuesta específica del sitio al contexto y al paisaje cultural. Se presenta como un ejemplo de cómo la arquitectura puede transmitir el conocimiento pasado al presente, creando un vínculo afectivo con el paisaje construido. "Nos dedicamos al estudiar lo rural y analizar las tipologías locales de edificios y de a poco comprendimos lo que sus formas logran funcionalmente y cómo se llegó a la cultura arquitectónica local ", cuenta Casper Mork-Ulnes.
El revestimiento exterior de la cabina está hecho de skigard, un corte de cuarto de largo de 3 metros de largo que tradicionalmente los agricultores noruegos presentan en diagonal como cercado. Mientras hace referencia a la arquitectura rural, la fachada rugosa hace que la cabina encaje dentro del paisaje y vegetación boscosa. En el invierno, cuando las lagunas en el skigard siding se llenan de nieve, la casa recibe una expresión nueva y más suave. La parte superior de la cabaña también recuerda los techos de césped tradicionales, comunes en las casas de registro rural en Escandinavia hasta finales del siglo XIX. Catalogado por las regulaciones locales de planificación como uno de los pocos materiales permitidos para techos (además de pizarra o madera), la parte superior difusa, que se mueve con el viento, ayuda a suavizar la geometría rectilínea rígida de la cabina. La cabina tiene un plan regular: una envoltura que contiene una secuencia de habitaciones, siguiendo un corredor central. Vida adentro, vida debajo.
Fotos: Juan Benavides







Los arquitectos de Mork-Ulnes querían una casa que se conectara al suelo y dejara que el terreno natural quedara ligeramente debajo. “La tierra tenía un camino que los animales usaban para cruzar y acceder a la empinada ladera, que sigue siendo el camino a la casa. Ahora las ovejas permanecen en la casa durante los meses de verano para protegerse del clima ”, Lexie Mork-Ulnes
Aquí, decidieron levantar la cabina no solo para ganar cierta protección, sino que al mismo tiempo también maximizan la luz natural y las vistas, y además porque no querían arruinar el terreno con el movimiento de tierra requerido para una base convencional. Una característica notable de la casa es que cada superficie está revestida de madera. La rugosidad no convencional del revestimiento exterior del tronco de Skigard se combina con un espacio interior casi homogéneo donde los paneles de pino macizo ligero y liso crean una sensación íntima y acogedora, que ofrece pocas distracciones para quitar los ojos de la naturaleza exterior. Todos los gabinetes y muebles personalizados están hechos de láminas de pino laminado en cruz de tres capas. La materialidad totalmente de madera también crea una calidad de fábrica de madera única para la casa. “Dudamos de tener expuestos materiales no madereros, por lo que las paredes y pisos de la ducha, las placas de descarga del inodoro, las placas de ventilación, e incluso las manijas del refrigerador estaban hechas de madera (Furu o Pino noruego). El sauna está revestido de Osp (madera de Aspen)". 
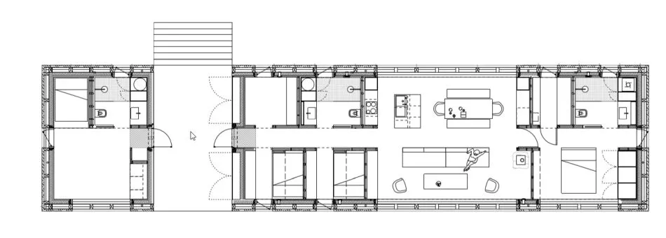
El programa consistía en tener una cabaña de tres habitaciones más sauna y un anexo que brindara a los huéspedes un espacio privado para retirarse.
En referencia al paisaje natural que lo rodea, Skigard Cabin se involucra al aire libre de una manera espectacular. Dos paredes de vidrio de piso a techo de 6 metros de largo dan una gran vista a la sala de estar, la cocina y el comedor de planta abierta, creando la experiencia de estar afuera, expuesto al paisaje siempre cambiante. La gran pared de vidrio orientada al sur permite que el sol invernal ilumine la casa durante el día. Además de las paredes de vidrio, una claraboya en el vértice del techo del canal de la luz canaliza la luz natural hacia las áreas de estar. El primer acercamiento a la casa es subir las escaleras hacia la veranda, donde uno experimenta la espectacular vista a través de un portal revestido de pino de corazón. Hay dos puertas a cada lado del portal que se abren a la casa principal (izquierda) o al anexo de invitado (derecha). Al ingresar a la casa principal, uno encuentra un pasillo con acceso directo a una sala de barro donde se puede quitar las capas externas de ropa y zapatos y entrar a la casa. Bajo el primer tragaluz, el pasillo de entrada también accede a las dos habitaciones compactas y al baño de los niños. Después de caminar a través de la compresión del espacio del pasillo, uno regresa a la naturaleza y encuentra una habitación compuesta por dos paredes de vidrio, con vistas al valle y las pistas de esquí a un lado y bosques y praderas al otro. La gran sala alberga el principal espacio comunitario que contiene cocina, salón y comedor. Al final de la gran sala se encuentra la suite principal, con baño y sauna.
En el otro lado, el anexo para invitados contiene un dormitorio, baño, un amplio salón y un altillo.
Esta cabaña en Noruega, con su extraordinaria racionalidad y su capacidad para redefinir la relación con los campos nevados y con la naturaleza, es otra muestra más de de la coherencia de las obras de Mork-Ulnes Architects. Sus diseños atestiguan las fuertes mentalidades biculturales de la oficina: una mezcla de practicidad directa escandinava y apertura californiana a la innovación. Casper y Lexie Mork-Ulnes demuestran una vez más su capacidad para diseñar proyectos donde las ideas del arquitecto y el diseñador de interiores se destilan y refinan en perfecto equilibrio. El proyecto SkigardHytte es testigo de esta cualidad donde una cuidadosa atención a los interiores se convierte en uno con la composición arquitectónica general.
PROYECTO
Mork-Ulnes Architects
www.morkulnes.com
Nombre del proyecto: Skigard Hytte
Ubicación: Kvitfjell Resort, Fåvang, Noruega



Más que un diseño técnico, la Casa Tao en Puerto Vallarta de HW STUDIO nace de la memoria, la filosofía y el deseo de habitar el mundo con atención, convirtiendo la sombra en un refugio emocional inspirado en la estética japonesa.

En esta vivienda de fin de semana, la Arq. Gisele Baldoni de Galuss convierte la iluminación en un lenguaje: menos luz, pero mejor pensada, para crear atmósferas que hablan.

Un hogar diseñado a medida, donde la herencia familiar convive con el espíritu relajado del mar y la creatividad.

Entre el bosque y el lago, una casa-puente que une generaciones, naturaleza y vida social.







En Lomas de Zamora, a solo 15 cuadras de la estación, Gini S.A. se posiciona como una empresa en constante crecimiento, dedicada a brindar materiales para la construcción que combinan calidad, variedad y precios accesibles.

Con base en Hudson, Moderna M3 S.A. se consolida como una empresa constructora referente en el diseño y la ejecución de viviendas unifamiliares, obras en barrios privados y desarrollos residenciales en la zona sur del Gran Buenos Aires.

Las cubiertas exteriores también pueden convivir armoniosamente con lo natural.

Faranda inaugura su nueva sucursal en Av. 44 e/149 y 150, San Carlos, acompañada por una renovación completa de su identidad: nueva imagen, propuesta de valor actualizada y una experiencia diseñada para conectar emocionalmente con cada visitante.

Tecnología nacional y accesible que facilita el mantenimiento de piscinas y que le aporta valor a todo proyecto.










