
Entre el bosque y el lago, una casa-puente que une generaciones, naturaleza y vida social.
**gonnet, la plata. una casa que se destaca por la flexibilidad de susespacios y usos, preparada para adaptarse al paso del tiempo.
Casas26 de noviembre de 2022 Espacio&Confort



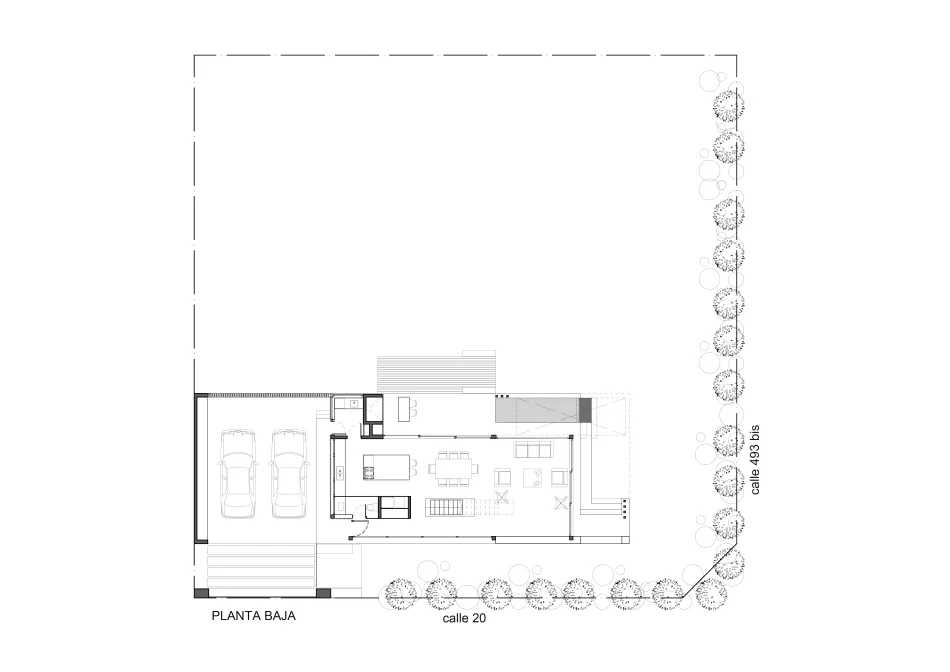
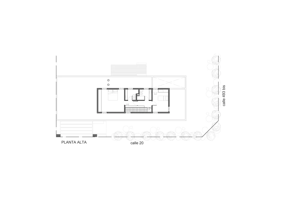
Ubicada en un terreno en esquina con una gran arboleda, este proyecto se adaptó a los requerimientos de una persona joven y su pequeña hija. Se decidió dividir la vivienda en 2 plantas para sacar el mayor provecho del terreno y poder contar con un cómodo jardín.
Al ingresar la casa se va descubriendo poco a poco. Luego del recibidor una escalera traslúcida con escalones que parecen volar nos deja entrever el gran espacio del living – comedor. La baranda de vidrio y el diseño de su estructura y escalones le otorgan una gran belleza transformándola en la protagonista de este gran espacio.









































































Entre el bosque y el lago, una casa-puente que une generaciones, naturaleza y vida social.

Una vivienda de Fran Silvestre Arquitectos que convierte la sombra en refugio y la luz en paisaje.

La casa diseñada por MORA HUGHES arquitectos en Mendoza combina estética nórdica, la calidez de la madera y la música que marca el pulso de cada encuentro.

Estuvimos con la Arq Carolina Esnaola recorriendo una obra que realizó en el Quimilar. Un patio interno que divide el ambiente principal y llena de luz la casa.







Un recubrimiento acrílico antideslizante, versátil y resistente, pensado para prevenir accidentes.

Invertir en infraestructura es clave para la productividad, la equidad social y el crecimiento del país. Extracto de la entrevista a Martín Russo, de LFR Constructora.

Distribuidora Galuss, firma especializada en soluciones lumínicas para proyectos profesionales, anuncia la incorporación de dos marcas icónicas del diseño internacional: Luceplan y Artemide.

Tendencias, tecnologías e Innovación en Real Estate y Arquitectura. Jornada de capacitación para desarrollador, inmobiliarios y arquitectos.

El mercado inmobiliario argentino comienza a dar señales nítidas de reactivación tras años de volatilidad. La nueva fase se explica por la convergencia de cuatro vectores macroeconómicos: baja de tasas, dólar estable, riesgo país en descenso y financiamiento más accesible para el sector público y las empresas. Este “combo” no sólo mejora las expectativas: abarata el costo del capital, sanea balances y vuelve a poner en marcha la inversión privada.










