
Entre el bosque y el lago, una casa-puente que une generaciones, naturaleza y vida social.
Toronto, Canadá. Una renovación de una casa de mediados del siglo pasadocon espacios interiores que pueden mutar fácilmente para distintos usos.
Casas15 de abril de 2021 Espacio&Confort



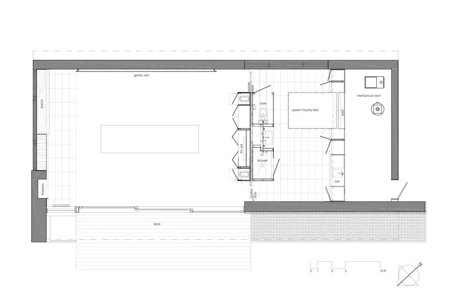
El estudio multidisciplinario + tongtong completó una renovación audaz y minimalista de una casa con piscina en Toronto. Diseñada para ser multifuncional, los interiores son espacios abiertos que pueden transformarse fácilmente de una casa de piscina a una casa de huéspedes, un espacio de entretenimiento, un estudio de trabajo y un espacio para eventos. Ubicada en el jardín de una gran casa tradicional, la casa de la piscina es una reliquia de mediados del siglo pasado. Pero a lo largo de los años, varias renovaciones enmascararon su diseño original. "Su verdadero potencial estaba realmente enterrado bajo muchas interpretaciones diferentes", dice el director John Tong. "Quería redefinir su modernidad mientras hacía un lugar cálido y lleno de tranquilidad".
















Entre el bosque y el lago, una casa-puente que une generaciones, naturaleza y vida social.

Una vivienda de Fran Silvestre Arquitectos que convierte la sombra en refugio y la luz en paisaje.

La casa diseñada por MORA HUGHES arquitectos en Mendoza combina estética nórdica, la calidez de la madera y la música que marca el pulso de cada encuentro.

Estuvimos con la Arq Carolina Esnaola recorriendo una obra que realizó en el Quimilar. Un patio interno que divide el ambiente principal y llena de luz la casa.







Invertir en infraestructura es clave para la productividad, la equidad social y el crecimiento del país. Extracto de la entrevista a Martín Russo, de LFR Constructora.

Distribuidora Galuss, firma especializada en soluciones lumínicas para proyectos profesionales, anuncia la incorporación de dos marcas icónicas del diseño internacional: Luceplan y Artemide.

Tendencias, tecnologías e Innovación en Real Estate y Arquitectura. Jornada de capacitación para desarrollador, inmobiliarios y arquitectos.

El mercado inmobiliario argentino comienza a dar señales nítidas de reactivación tras años de volatilidad. La nueva fase se explica por la convergencia de cuatro vectores macroeconómicos: baja de tasas, dólar estable, riesgo país en descenso y financiamiento más accesible para el sector público y las empresas. Este “combo” no sólo mejora las expectativas: abarata el costo del capital, sanea balances y vuelve a poner en marcha la inversión privada.

En noviembre, la celebración del diseño continuó con la apertura de la tradicional muestra de arquitectura y diseño en sus ediciones Casa FOA Uruguay, Carrasco Boating y Casa FOA Chile, edición Zoco.










