
Entre el bosque y el lago, una casa-puente que une generaciones, naturaleza y vida social.
**cariló, argentina. una casa de gianserra + lima arquitectos cuyo proyectopriorizó la flexibilidad de sus espacios públicos cubiertos y descubiertos.
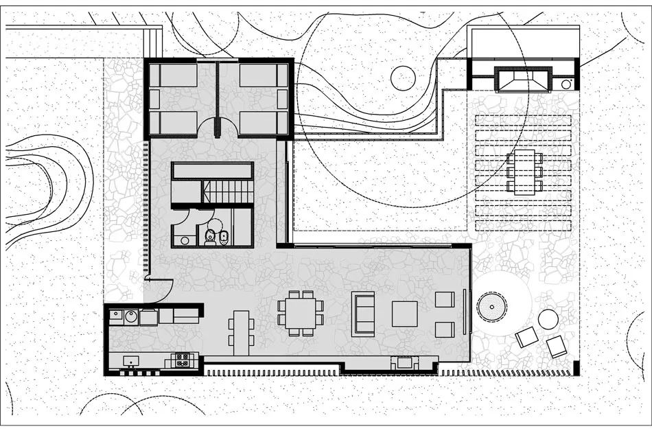
Casas14 de julio de 2021 Espacio&Confort



Esta casa de veraneo está situada en un lote de 20 x 50 en esquina en la ciudad balnearia de Cariló, partido de Pinamar.
El programa de necesidades constaba de una suite en planta alta para que funcione independientemente, y dos dormitorios en planta baja para los hijos y amigos de los dueños, haciendo especial hincapié en la flexibilidad de uso de los espacios públicos cubiertos (estar comedor – cocina) y descubiertos (patio central y galería) y su relación con los espacios exteriores, un pino añoso muy importante a mantener, y que la misma tenga el mínimo de mantenimiento.
























Entre el bosque y el lago, una casa-puente que une generaciones, naturaleza y vida social.

Una vivienda de Fran Silvestre Arquitectos que convierte la sombra en refugio y la luz en paisaje.

La casa diseñada por MORA HUGHES arquitectos en Mendoza combina estética nórdica, la calidez de la madera y la música que marca el pulso de cada encuentro.

Estuvimos con la Arq Carolina Esnaola recorriendo una obra que realizó en el Quimilar. Un patio interno que divide el ambiente principal y llena de luz la casa.







Un recubrimiento acrílico antideslizante, versátil y resistente, pensado para prevenir accidentes.

Invertir en infraestructura es clave para la productividad, la equidad social y el crecimiento del país. Extracto de la entrevista a Martín Russo, de LFR Constructora.

Distribuidora Galuss, firma especializada en soluciones lumínicas para proyectos profesionales, anuncia la incorporación de dos marcas icónicas del diseño internacional: Luceplan y Artemide.

Tendencias, tecnologías e Innovación en Real Estate y Arquitectura. Jornada de capacitación para desarrollador, inmobiliarios y arquitectos.

El mercado inmobiliario argentino comienza a dar señales nítidas de reactivación tras años de volatilidad. La nueva fase se explica por la convergencia de cuatro vectores macroeconómicos: baja de tasas, dólar estable, riesgo país en descenso y financiamiento más accesible para el sector público y las empresas. Este “combo” no sólo mejora las expectativas: abarata el costo del capital, sanea balances y vuelve a poner en marcha la inversión privada.










