
Entre el bosque y el lago, una casa-puente que une generaciones, naturaleza y vida social.
**una casa desarrollada alrededor de un patio central que hace permeable atodos sus ambientes y los dota de una abundante iluminación natural.
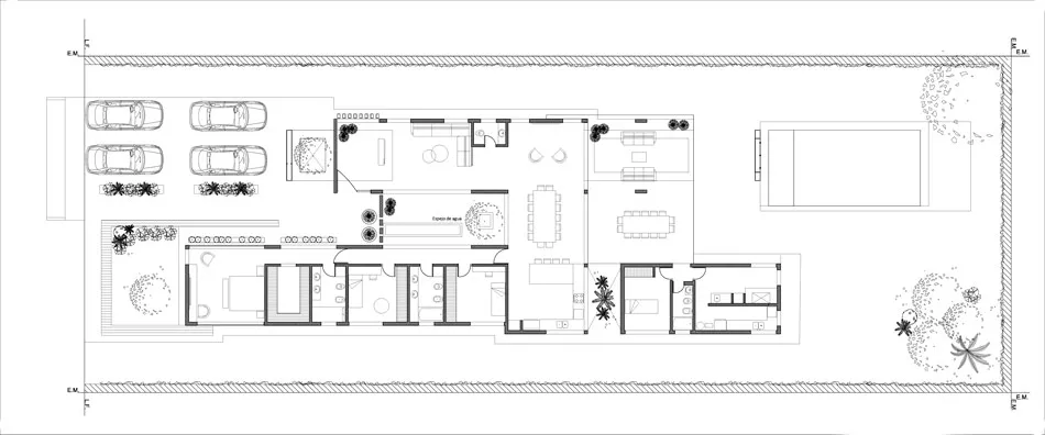
Casas16 de julio de 2021 Espacio&Confort



El proyecto de esta vivienda realizado por los arquitectos Daniel Mandaglio, Claudia Mandaglio y Lorena Len, y desarrollado por M2 group, se emplaza en un lote de 20 x 55m en un barrio privado de la zona norte de La Plata, en City Bell.
La idea de los arquitectos fue que la casa se armara alrededor de un patio central con un espejo de agua que se pueda disfrutar desde todos los interiores de la casa.
El desarrollo en una planta y este patio con grandes ventanales en todo su perímetro permitieron darles permeabilidad a los diferentes ambientes y dotarlos de una formidable entrada de luz natural, sin perder la privacidad hacia la calle.




































Entre el bosque y el lago, una casa-puente que une generaciones, naturaleza y vida social.

Una vivienda de Fran Silvestre Arquitectos que convierte la sombra en refugio y la luz en paisaje.

La casa diseñada por MORA HUGHES arquitectos en Mendoza combina estética nórdica, la calidez de la madera y la música que marca el pulso de cada encuentro.

Estuvimos con la Arq Carolina Esnaola recorriendo una obra que realizó en el Quimilar. Un patio interno que divide el ambiente principal y llena de luz la casa.







Un recubrimiento acrílico antideslizante, versátil y resistente, pensado para prevenir accidentes.

Invertir en infraestructura es clave para la productividad, la equidad social y el crecimiento del país. Extracto de la entrevista a Martín Russo, de LFR Constructora.

Distribuidora Galuss, firma especializada en soluciones lumínicas para proyectos profesionales, anuncia la incorporación de dos marcas icónicas del diseño internacional: Luceplan y Artemide.

Tendencias, tecnologías e Innovación en Real Estate y Arquitectura. Jornada de capacitación para desarrollador, inmobiliarios y arquitectos.

El mercado inmobiliario argentino comienza a dar señales nítidas de reactivación tras años de volatilidad. La nueva fase se explica por la convergencia de cuatro vectores macroeconómicos: baja de tasas, dólar estable, riesgo país en descenso y financiamiento más accesible para el sector público y las empresas. Este “combo” no sólo mejora las expectativas: abarata el costo del capital, sanea balances y vuelve a poner en marcha la inversión privada.










