
Entre el bosque y el lago, una casa-puente que une generaciones, naturaleza y vida social.
aprovechando las mejores orientaciones y rodeada de naturaleza, esta casade en obra arquitectos combina materiales de bajo mantenimiento y un diseñointegrado para crear un ambiente acogedor y funcional.
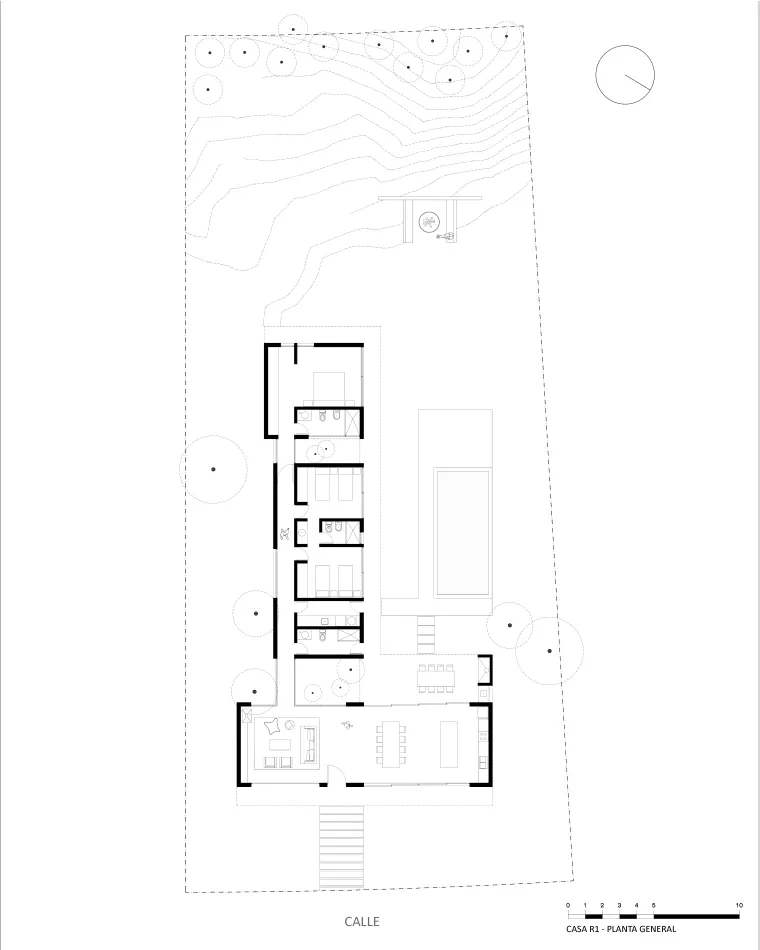
Casas01 de septiembre de 2023 Espacio&Confort



Sobre un lote rectangular en un barrio privado del Partido de la Costa, esta casa de verano se encuentra ubicada en forma de "L", aprovechando al máximo el terreno disponible. El lote mantiene un nivel llano hasta el fondo, donde se eleva un pronunciado médano con una importante pendiente. Alrededor del perímetro permitido de construcción dentro del lote, se encuentran pocos pero predominantes pinos, que posteriormente inspiraron la creación de patios interiores con una intervención paisajística que conecta y articula los espacios.





















Entre el bosque y el lago, una casa-puente que une generaciones, naturaleza y vida social.

Una vivienda de Fran Silvestre Arquitectos que convierte la sombra en refugio y la luz en paisaje.

La casa diseñada por MORA HUGHES arquitectos en Mendoza combina estética nórdica, la calidez de la madera y la música que marca el pulso de cada encuentro.

Estuvimos con la Arq Carolina Esnaola recorriendo una obra que realizó en el Quimilar. Un patio interno que divide el ambiente principal y llena de luz la casa.







Invertir en infraestructura es clave para la productividad, la equidad social y el crecimiento del país. Extracto de la entrevista a Martín Russo, de LFR Constructora.

Distribuidora Galuss, firma especializada en soluciones lumínicas para proyectos profesionales, anuncia la incorporación de dos marcas icónicas del diseño internacional: Luceplan y Artemide.

Tendencias, tecnologías e Innovación en Real Estate y Arquitectura. Jornada de capacitación para desarrollador, inmobiliarios y arquitectos.

El mercado inmobiliario argentino comienza a dar señales nítidas de reactivación tras años de volatilidad. La nueva fase se explica por la convergencia de cuatro vectores macroeconómicos: baja de tasas, dólar estable, riesgo país en descenso y financiamiento más accesible para el sector público y las empresas. Este “combo” no sólo mejora las expectativas: abarata el costo del capital, sanea balances y vuelve a poner en marcha la inversión privada.

En noviembre, la celebración del diseño continuó con la apertura de la tradicional muestra de arquitectura y diseño en sus ediciones Casa FOA Uruguay, Carrasco Boating y Casa FOA Chile, edición Zoco.










