
Diseño espejado y materiales con memoria: arquitectura que conecta con lo cotidiano.
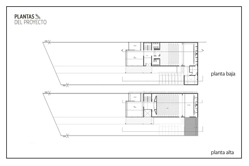
**el teatro de cámara fue desarrollado como un espacio multiuso para lapresentación de diversas expresiones artísticas.
Arquitectura08 de agosto de 2012 Espacio&Confort















Texto y Fotos: Leandro Arévalo
Fuente: www.lumenartis.org.ar
[ INFORMACIÓN ]
Ubicación: City Bell, Ciudad de La Plata.
Fecha de proyecto inicial: 2003
Fecha de ampliación: 2011
Superficie: 380 m²
[ PROYECTO ]
Arquitectos: Agustina De Francesco,
Manuel Cortés, Sebastian Cortés.
Tel. (221) 15 5797323
[email protected]















Diseño espejado y materiales con memoria: arquitectura que conecta con lo cotidiano.

Un edificio de vivienda en La Plata que se apoya en la claridad estructural, la calidez material y la integración urbana.

Cada decisión en este proyecto fue concebida bajo un mismo enfoque: HitzigMilitello Arquitectos buscó crear un oasis botánico emplazado en pleno caos urbano. Esta línea rectora marcó un norte que determinó cada una de las definiciones proyectuales, desde lo espacial arquitectónico, pasando por la elección de materiales, equipamiento, recursos gráficos y, principalmente, las intervenciones paisajísticas.

Una obra pensada para aprender, investigar y conectar: la nueva sede universitaria que conjuga tecnología, sustentabilidad y comunidad.







Invertir en infraestructura es clave para la productividad, la equidad social y el crecimiento del país. Extracto de la entrevista a Martín Russo, de LFR Constructora.

Distribuidora Galuss, firma especializada en soluciones lumínicas para proyectos profesionales, anuncia la incorporación de dos marcas icónicas del diseño internacional: Luceplan y Artemide.

Tendencias, tecnologías e Innovación en Real Estate y Arquitectura. Jornada de capacitación para desarrollador, inmobiliarios y arquitectos.

El mercado inmobiliario argentino comienza a dar señales nítidas de reactivación tras años de volatilidad. La nueva fase se explica por la convergencia de cuatro vectores macroeconómicos: baja de tasas, dólar estable, riesgo país en descenso y financiamiento más accesible para el sector público y las empresas. Este “combo” no sólo mejora las expectativas: abarata el costo del capital, sanea balances y vuelve a poner en marcha la inversión privada.

En noviembre, la celebración del diseño continuó con la apertura de la tradicional muestra de arquitectura y diseño en sus ediciones Casa FOA Uruguay, Carrasco Boating y Casa FOA Chile, edición Zoco.










