
En armonía con el entorno



Esta excepcional casa se convierte en realidad gracias a la colaboración de dos destacados arquitectos. Silvia Cavalotti, una arquitecta radicada en España, fue la mente creativa detrás del diseño, mientras que Rubén Mochi, en Argentina, llevó a cabo la ejecución de esta fascinante obra. Juntos, lograron superar la distancia del océano y unir sus talentos y experiencia, dando vida a este proyecto único.
Los clientes desempeñaron un papel activo en el proceso, planteando su deseo de una vivienda con amplios espacios, llenos de luz y con una estrecha relación con el entorno. Así se dio forma a un proyecto de carácter extrovertido, donde se gestionó cuidadosamente la transparencia, otorgando mayor opacidad hacia el sur, donde se ubican los servicios, y manteniendo una fachada principal equilibrada que salvaguarda la privacidad.












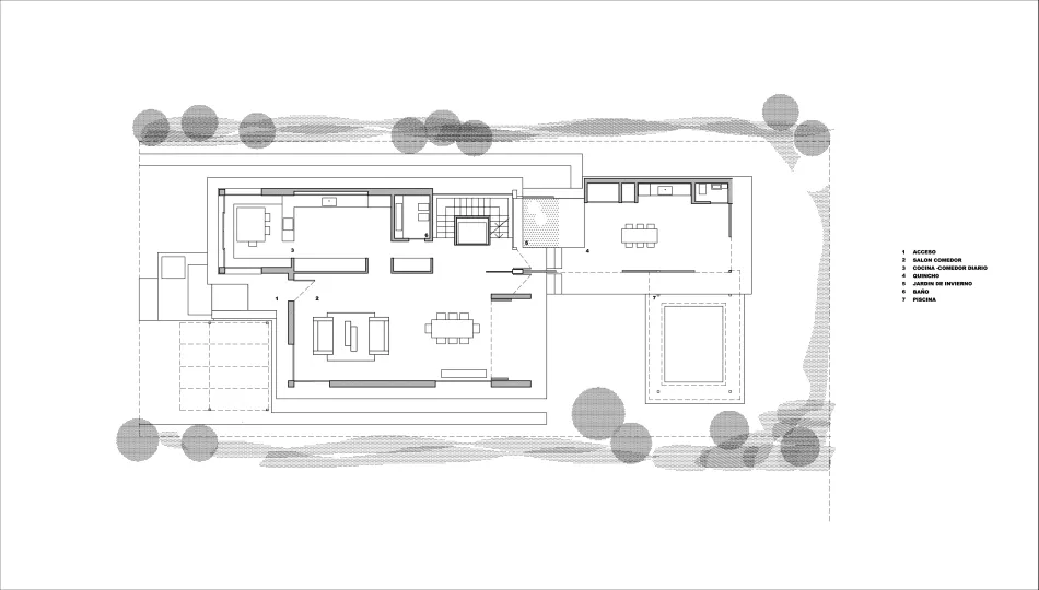
A medida que avanzamos hacia la parte trasera, las transparencias aumentan, difuminando los límites entre el interior y el exterior. Allí, un hermoso patio en forma de "U" se compone del volumen principal de la vivienda, el comedor de verano y el quincho acristalado, junto con el área semicubierta de la piscina. Este acogedor patio permite explorar tanto el interior como el exterior, bajo las galerías que conforman los semicubiertos de los amplios forjados, característica distintiva de esta residencia.
Al ingresar a la casa, somos recibidos por un amplio salón-comedor que se integra armoniosamente con la cocina y el comedor diario, brindando una funcionalidad cómoda a la zona diurna. Al subir las escaleras, descubrimos dos dormitorios en suite, cada uno con su propio vestidor, en el área privada de la vivienda.
La aspiración de los propietarios de estar rodeados por completo de vegetación se cumple en cada rincón de la casa, que ofrece vistas increíbles desde todos los ambientes.
La volumetría de la casa se destaca por sus grandes paneles horizontales, que flotan sin apoyarse en elementos verticales, creando una cinta acristalada perimetral. En el interior, esta característica captura la trayectoria solar y juega con luces, sombras, reflejos y visuales en constante cambio y movimiento.
En cuanto al diseño interior, se emplearon muebles en tonos neutros para no competir con la rica paleta de colores de la vegetación circundante. Además, se utilizó madera para aportar calidez al conjunto, creando un ambiente acogedor y sofisticado.
Fotos: Lean Arló
PROYECTO
Proyecto: Arq. Silvia Cavalotti
Ejecución: Arq. Rubén Mochi








































