
Más que un diseño técnico, la Casa Tao en Puerto Vallarta de HW STUDIO nace de la memoria, la filosofía y el deseo de habitar el mundo con atención, convirtiendo la sombra en un refugio emocional inspirado en la estética japonesa.
Un oasis de descanso, un refugio natural en lo alto de un cerro boscoso, diseño de la firma mexicana LAX Arquitectura.
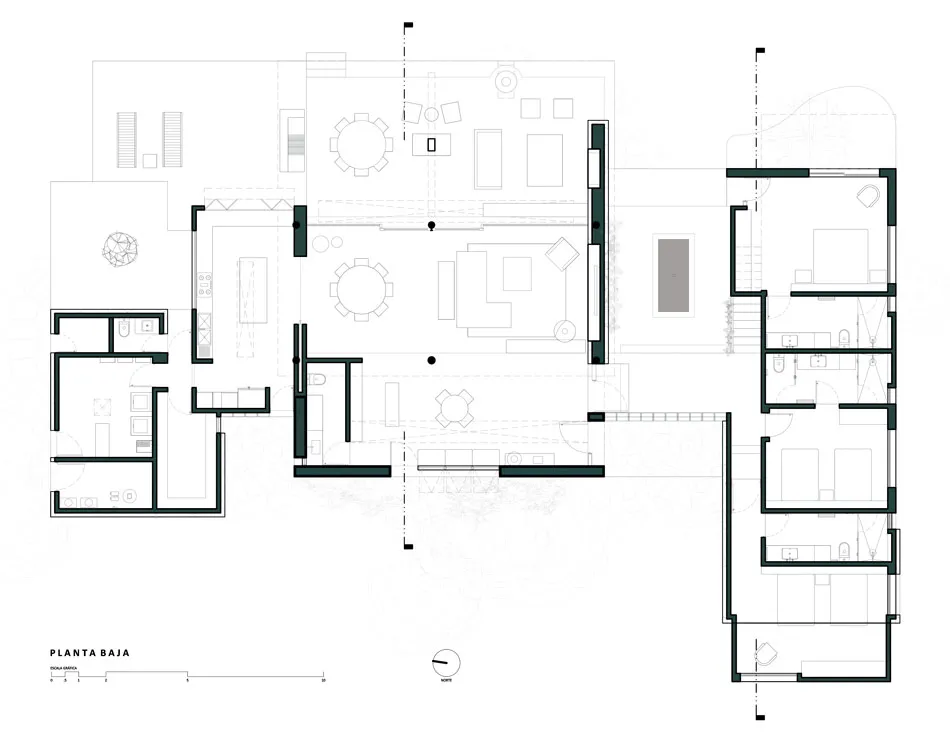
Casas09 de junio de 2023 Espacio&Confort



Diseñada como un espacio de descanso y trabajo, ubicada en lo alto de un cerro boscoso en la zona sur del lago de Valle de Bravo, México, esta casa aprovecha la orientación del proyecto para proporcionar iluminación y ventilación adecuada a los espacios desde el amanecer hasta el atardecer.










Las áreas públicas y privadas interactúan a través de un patio que articula las funciones principales de la casa. Terrazas cubiertas, semicubiertas y descubiertas rodeadas de naturaleza constituyenlas áreas comunes de la casa. Construida en un entorno rústico y rodeada de frondosa vegetación, esta interacción permite que las vistas sean espectaculares.
Preservar la naturaleza del lugar fue una prioridad para establecer el concepto de diseño arquitectónico del proyecto, cuya arquitectura y materiales fueron elegidos cuidadosamente para lograr una propuesta coherente.
PROYECTO
LAX Arquitectura
www.laxarquitectura.com
Instagram @lax_arquitectura
INFORMACIÓN
Ubicación:
Valle de Bravo, México
Fecha de realización: 2020




Más que un diseño técnico, la Casa Tao en Puerto Vallarta de HW STUDIO nace de la memoria, la filosofía y el deseo de habitar el mundo con atención, convirtiendo la sombra en un refugio emocional inspirado en la estética japonesa.

En esta vivienda de fin de semana, la Arq. Gisele Baldoni de Galuss convierte la iluminación en un lenguaje: menos luz, pero mejor pensada, para crear atmósferas que hablan.

Un hogar diseñado a medida, donde la herencia familiar convive con el espíritu relajado del mar y la creatividad.

Entre el bosque y el lago, una casa-puente que une generaciones, naturaleza y vida social.







En Lomas de Zamora, a solo 15 cuadras de la estación, Gini S.A. se posiciona como una empresa en constante crecimiento, dedicada a brindar materiales para la construcción que combinan calidad, variedad y precios accesibles.

Con base en Hudson, Moderna M3 S.A. se consolida como una empresa constructora referente en el diseño y la ejecución de viviendas unifamiliares, obras en barrios privados y desarrollos residenciales en la zona sur del Gran Buenos Aires.

Las cubiertas exteriores también pueden convivir armoniosamente con lo natural.

Faranda inaugura su nueva sucursal en Av. 44 e/149 y 150, San Carlos, acompañada por una renovación completa de su identidad: nueva imagen, propuesta de valor actualizada y una experiencia diseñada para conectar emocionalmente con cada visitante.

Tecnología nacional y accesible que facilita el mantenimiento de piscinas y que le aporta valor a todo proyecto.










