
Entre el bosque y el lago, una casa-puente que une generaciones, naturaleza y vida social.
Jevnaker County, Noruega. Mork-Ulnes Architects es el estudio a cargo de esta vivienda, que propone una forma diferente, moderna y funcional de interpretar la típica cabaña noruega.
Casas29 de junio de 2018 Espacio&Confort



Los arquitectos de Mork-Ulnes son los autores de Mylla Hytte, una cabaña compacta pero expansiva al norte de Oslo en el bosque noruego. Un retiro para un geólogo y su familia, de 84 m², que se asienta firmemente en la cima de una colina y está formado por las fuerzas del paisaje que lo rodea. Mylla rompe el plan de construcción de cabaña rectangular tradicional en un molinete que se irradia en el paisaje para enmarcar cuatro vistas distintas - Mylla Lake, la ladera ondulada, el cielo y un bosque imponente - y forma patios al aire libre protegidos del viento y la nieve . El revestimiento de pino sin tratar es simple y honesto, y registra las estaciones del año en su exterior.
Los clientes. Scott Young y Christine Griffin Young son una pareja estadounidense de 42 años con dos niños pequeños. El trabajo de Scott como geólogo empujó a la familia a mudarse a Oslo hace siete años, donde han adoptado plenamente el estilo de vida al aire libre de Noruega.
El lugar. El sitio está ubicado en el extremo norte de Nordmarka, que es un vasto desierto a solo una hora al norte de donde vive la familia en Oslo. Aunque el paisaje todavía es salvaje, se puede llegar fácilmente en automóvil, bicicleta o esquí desde la ciudad. La ubicación fue elegida por su proximidad a Oslo y su fácil acceso al esquí de fondo y la pesca, que se puede hacer en el lago Mylla.





El resumen del proyecto. Las “comodidades” que los Young solicitaron al principio fueron: tres dormitorios, incluido un litera para niños; dos baños tan eficientes como pequeños; un pequeño anexo para encerar esquíes y guardar bicicletas, y una sauna para dos personas, con conexión desde adentro hacia afuera.
Una interpretación distinta de la tipología hytte local: Hytte es la palabra noruega para cabaña. Las Hytter (cabañas) son una gran parte de la cultura del país; más de una cuarta parte de todos los noruegos poseen al menos uno. El hytte noruego tradicional es pequeño y primitivo, y tiene un propósito utilitario simple de refugio, a menudo con un baño al aire libre y sin agua corriente. El interior típico es estrecho, compartimentado y desconectado, con habitaciones cargadas en un pasillo estrecho. Las habitaciones son generalmente oscuras con paredes revestidas de pino, ventanas pequeñas y techos bajos.
El desafío del diseño era volver a trabajar la construcción del hytte tradicional manteniendo su carácter utilitario: compacto, eficiente y funcional, pero relacionando el edificio con el paisaje y creando un interior más expansivo y generoso, incluyendo tres dormitorios y dos completos (aunque pequeños) baños en 84 m².
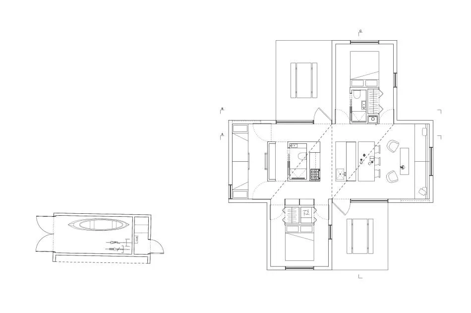
Aunque las regulaciones de planificación requerían un techo a dos aguas, los arquitectos pudieron dividir el frontón a la mitad para crear cuatro techos de cobertizo. Esto produjo una planta con dos espacios al aire libre protegidos: el porche de la mañana y el porche de la tarde que captura el sol y está protegido del viento y de la nieve del techo.




El programa: En lugar de dividir la planta en una serie de habitaciones separadas, el interior de la cabina de 84 m² está diseñado como un paisaje de flujo libre. Los techos abovedados de 2,4 metros a 4,3 metros de altura son continuos. Debajo del dosel hay tres núcleos funcionales, uno para la cocina, armario y baño, otro para baño y almacenamiento, y otro para almacenamiento y equipamiento mecánico que dirigen el flujo interior y crean zonas privadas en el interior.
Los detalles: La atención cercana al detalle aumenta la sensación de apertura y privacidad. Por ejemplo, cada habitación tiene dos puertas de acceso para no crear un callejón sin salida. Cuando están abiertas, estas puertas hechas en madera contrachapada como las paredes y el techo, se ocultan completamente dentro de una cavidad de la pared para que desaparezcan. Encima de cada puerta un vidrio transparente reduce la transmisión del sonido y al mismo tiempo permite que el techo se expanda sin interrupción en el interior.
Un espacio interior cálido y eficiente: Para crear un interior cálido y luminoso, los arquitectos utilizaron madera de pino tratada con lejía y aceite blanco para terminar el interior de la cabaña. Se han incluido muebles de madera contrachapada personalizados, marcos de cama, literas, sillones, mesas de comedor, bancos y estantes. “Queríamos crear un interior limpio y simple, así que usamos solo dos materiales para interiores: contrachapado de pino y concreto”, explica Lexie Mork-Ulnes.
Las paredes, el techo y todos los muebles son de madera contrachapada con bordes expuestos, y los pisos, las encimeras y las paredes del baño son de concreto. El diseño personalizado de los muebles de la cabaña crea un ambiente acogedor para la familia y sus invitados, añadiendo toques suaves del bosque con fieltro verde de lana para las piezas internas tapizadas.
Según sus creadores, Mylla Hytte es una respuesta directa a su contexto, mientras que al mismo tiempo genera una experiencia habitacional única.
Fotos: Bruce Damonte cedidas por Mork-Ulnes
[ INFORMACÓN MYLLA HYTTE ]
Ubicación: Noruega
Superficie del terreno: 868 m2
Superficie de la contrucción: 84 m2
[ PROYECTO ]
Mork-Ulnes Architects
www.morkulnes.com






Entre el bosque y el lago, una casa-puente que une generaciones, naturaleza y vida social.

Una vivienda de Fran Silvestre Arquitectos que convierte la sombra en refugio y la luz en paisaje.

La casa diseñada por MORA HUGHES arquitectos en Mendoza combina estética nórdica, la calidez de la madera y la música que marca el pulso de cada encuentro.

Estuvimos con la Arq Carolina Esnaola recorriendo una obra que realizó en el Quimilar. Un patio interno que divide el ambiente principal y llena de luz la casa.







Un recubrimiento acrílico antideslizante, versátil y resistente, pensado para prevenir accidentes.

Invertir en infraestructura es clave para la productividad, la equidad social y el crecimiento del país. Extracto de la entrevista a Martín Russo, de LFR Constructora.

Distribuidora Galuss, firma especializada en soluciones lumínicas para proyectos profesionales, anuncia la incorporación de dos marcas icónicas del diseño internacional: Luceplan y Artemide.

Tendencias, tecnologías e Innovación en Real Estate y Arquitectura. Jornada de capacitación para desarrollador, inmobiliarios y arquitectos.

El mercado inmobiliario argentino comienza a dar señales nítidas de reactivación tras años de volatilidad. La nueva fase se explica por la convergencia de cuatro vectores macroeconómicos: baja de tasas, dólar estable, riesgo país en descenso y financiamiento más accesible para el sector público y las empresas. Este “combo” no sólo mejora las expectativas: abarata el costo del capital, sanea balances y vuelve a poner en marcha la inversión privada.










